(1) (1)
  • Fisherton

Venta

Local

Precio

Buscar solo avisos en moneda:

Dorm|Amb

Más filtros Más filtros

Características

Superficie total

Nombre de calle y altura

Expensas

$

Tipo de urbanización

Plantas

Servicios

Tipos de ambientes

Estado de obra

Tipo de anunciante

51 Locales en Venta en Fisherton

1/9
Visto

1

USD 220.000

Av General de Division Pujato al 7800

Local en Venta en Fisherton, Rosario

INVESTA PROPIEDADES

Local Comercial con Deposito en Fisherton

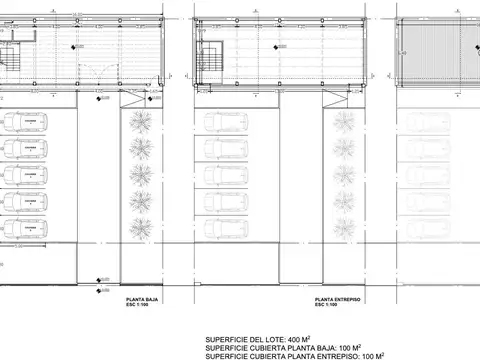
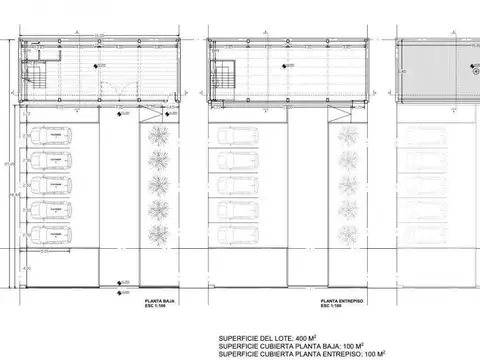
Fisherton work barrio comercial proyecto: fisherton work es un nuevo desarrollo comercial con un perfil exclusivo para negocios, oficinas y depósitos. En su primera etapa, contará con 43 lotes ya construidos y listos para habitar. El barrio ofrecerá un diseño industrial moderno con unidades de 200 m2 cubiertos en lotes de 400 m2, con posibilidad de unificación para ampliar y conectar superficies. Cada inversor será propietario de un lote con local / depósito perimetrado con portón automático, incluyendo sector de parking privado para visitas. Ubicación: este proyecto se encuentra ubicado en av. Gral. De división hernán pujato 7893, contando con acceso rápido a av. Newbery y circunvalación. Ficha técnica: características de los locales comerciales: - altura total de 10 metros estimados. - Planta baja con salón vidriera y depósito - primer piso con espacio para oficinas o uso a necesidad. - Adaptabilidad de uso: local comercial, oficina, showroom o depósito especificaciones técnicas: - planta baja: hormigón llaneado - altura planta baja: 6 metros - altura entrepiso: 2,5 metros - vidriera al frente con aberturas exteriores de aluminio - cubierta metálica con entrepiso metálico - ingreso con portón corredizo de herrería - medianeras en ladrillo común y tejido romboidal en ingreso - ingreso con llave electrónica y vigilancia con dos cámaras cada unidad ofrecerá: - estacionamiento privado - local / depósito en planta baja - pre instalación para baño/toilette - pre instalación p/kitchenette - pre instalación p/ aires acondicionados. - Espacio para oficina en planta alta - agua - elecrticidad observaciones: este desarrollo es ideal para varios tipos de empresas, entre ellas: empresas de logística y distribución, empresas de e-commerce, estudios profesionales y oficinas corporativas, showrooms y tiendas especializadas, empresas de servicios fecha de entrega: 2026. Manuel de marco c.I 2506

Contactar
1/4
Visto

1

USD 148.000

Av Bernheim y suinda

Local en Venta en Fisherton, Rosario

INVESTA PROPIEDADES
  • 145 m² Total
  • 1 planta

Lote comercial en Mercado del Paso Fisherton

Local comercial en mercado del paso - fisherton proyecto: 21 locales comerciales ubicados en una zona estratégica de fisherton. Ingresos por av. Bernheim y suindá. Paseo comercial con estacionamiento ideal para comodidad y confort. Ficha técnica: - cubierta:estructura en correas c prepintadas negras y chapas arneg con terminacion interior color blanco. - Piso interior de hormigón llaneado. Aberturas línea a40 en frente de locales y modena en paños sobre la calle bernheim. Dvh3+3/12/3+3. Cortina de enrollar exterior metálica. - Dimensiones ventanal del frente 5.00x3.00m de altura. - Terminación exterior en ladrillos semivistos. Muro medianero exterior terminado en pintura impermeable. - Terminación interior en revoque fino pintado en latex blanco. - Se deja prevista la instalación de 1 aire acondicionado por local comercial. - Se deja prevista la instalación eléctrica hasta el tablero de cada local. No se contempla distribución interior. - Se deja prevista la preinstalación agua y cloaca en el sector destinado a baños. No se proveen griferias ni sanitarios. Fecha de entrega: junio 2027. Financiación: entrega del 30% y resto en hasta 30 cuotas observaciones: - la iluminación y vegetación de los renders son a modo ilustrativo. - Los canteros en los renders son ilustrativos. Manuel de marco c.I 2506

Contactar
1/8
Visto

1

USD 250.000

Av General de División Hernán Pujato

Local en Venta en Fisherton, Rosario

INMOBILIARIA SUSANA IPPOLITI
  • 200 m² Total
  • 2 plantas
  • A Estrenar

Local comercial con deposito para usos mixtos en Fisherton

Naves industriales/comerciales de 200 m2 para usos mixtos en fisherton ubicación estratégica sobre la zona: se encuentra en una ubicación de alto potencial, sobre la calle av. General de división hernán pujato, entre las calles lago puelo y sánchez de loria bis. Su cercanía con la av. Circunvalación y av. Jorge newbery garantiza un acceso rápido y directo a las principales arterias de la ciudad, brindando una conexión ágil a otros puntos clave de rosario y la región. Sobre el inmueble: cada unidad cuenta con 200 m2 está diseñado para usos mixtos, adaptándose a diversas necesidades comerciales o industriales. Se distribuye en dos niveles y cuenta con: -estacionamiento privado y portón corredizo -planta baja con amplio depósito ideal para almacenamiento o área de trabajo. -Baño/toilette y kitchenette para optimizar las tareas diarias. -Oficina en planta alta, con vistas a la zona de trabajo. -4 cocheras disponibles para empleados o visitantes. Financiación: 30% de anticipo y el saldo financiado en 24 cuotas. Entrega: se estima para el año 2025, brindando tiempo para la planificación y adecuación del espacio según las necesidades del comprador. Una oportunidad única para empresas que buscan posicionarse en una zona estratégica, con excelente conectividad y un diseño funcional. Contáctanos para más detalles o para agendar una visita!

Contactar
1/12
Visto

1

USD 97.000 + $111.111 expensas

Fisherton Plaza Shopping Local Comercial

Local en Venta en Fisherton, Rosario

GRUPO AMBITO SRL
  • 65 m² Total
  • 1 planta
  • 7 años

Venta Local en Fisherton Plaza Shopping Mall Funes Rosario Aeropuerto Ideal Inversion Renta

Magnifico local con una exclente ubicacion dentro del shopping fisherton plaza actualmente alquilado con importante renta (superior al 8% anual ) cuenta con una ubicada privilegiada dentro del ya consolidado shopping fisherton plaza chic mall excelente diseño estado impecable. Aires frío/calor. Amplia vidriera. Este centro comercial se encuentra estrategicamente ubicado frente al aeropuerto de rosario y limite entre funesy fisherton. Más de 65 locales comerciales, servicios y una amplia oferta gastronómica para disfrutar en familia o con amigos, todos los días del año. Locales comerciales y de servicios a cielo abierto: sanatorio privado, supermercado, farmacia, cajeros links y banelco, banco macro, seguridad, estacionamiento y más.. Abierto todos los días. Horarios: retail y servicios de 10 a 20hs. Gastronomía de 8 a 23:30hs. Alberto j. Paz 1065 bis rosario, santa fe, argentina si te interesa conocer el inmueble, no dudes en comunicarte y agendamos una visita. Queres realizar una permuta, o entregar otro inmueble en parte de pago? Nos interesa tasamos tu inmueble en 24hs. Llamanos o escribinos! Si tenés amigo que le pueda interesar este tipo de inmueble, compartile esta publicación ! *Toda la información y medidas provistas son aproximadas y deberán ratificarse con la documentación pertinente y no compromete contractualmente a nuestra empresa. * Los gastos (expensas, api, tgi, aguas, etc.) Expresados, refieren a la última información recabada y deberán confirmarse. * Las imágenes y fotografías publicadas no son vinculantes ni contractuales y no es permitida su utilización comercial. Nota: las medidas y superficies expuestas son estimativas y a corroborar con sus respectivos planos y títulos. La publicación de este inmueble es a solo título informativo, la venta de la propiedad está supeditada a que el propietario cumplimente el trámite ante la afip para la obtención del número de coti correspondiente. La información no es contractual.

Contactar
1/12
Visto

1

USD 97.000 + $111.111 expensas

Fisherton Plaza Shopping Local Comercial

Local en Venta en Fisherton, Rosario

GRUPO AMBITO SRL
  • 50 m² Total
  • 1 planta
  • 7 años

Venta Local en Fisherton Plaza Shopping Mall Funes Rosario Aeropuerto Ideal Inversion Renta

Local con estrategica ubicacion dentro del shopping fisherton plaza actualmente alquilado con exclente renta (mayor al 8% anual ) cuenta con una ubicada privilegiada dentro del ya consolidado shopping fisherton plaza chic mall muy luminoso y en excelente estado. Aires frío/calor. Amplias vidrieras. Este centro comercial se encuentra estrategicamente ubicado frente al aeropuerto de rosario y limite entre funesy fisherton. Más de 65 locales comerciales, servicios y una amplia oferta gastronómica para disfrutar en familia o con amigos, todos los días del año. Locales comerciales y de servicios a cielo abierto: sanatorio privado, supermercado, farmacia, cajeros links y banelco, banco macro, seguridad, estacionamiento y más.. Abierto todos los días. Horarios: retail y servicios de 10 a 20hs. Gastronomía de 8 a 23:30hs. Alberto j. Paz 1065 bis rosario, santa fe, argentina si te interesa conocer el inmueble, no dudes en comunicarte y agendamos una visita. Queres realizar una permuta, o entregar otro inmueble en parte de pago? Nos interesa tasamos tu inmueble en 24hs. Llamanos o escribinos! Si tenés amigo que le pueda interesar este tipo de inmueble, compartile esta publicación ! *Toda la información y medidas provistas son aproximadas y deberán ratificarse con la documentación pertinente y no compromete contractualmente a nuestra empresa. * Los gastos (expensas, api, tgi, aguas, etc.) Expresados, refieren a la última información recabada y deberán confirmarse. * Las imágenes y fotografías publicadas no son vinculantes ni contractuales y no es permitida su utilización comercial. Nota: las medidas y superficies expuestas son estimativas y a corroborar con sus respectivos planos y títulos. La publicación de este inmueble es a solo título informativo, la venta de la propiedad está supeditada a que el propietario cumplimente el trámite ante la afip para la obtención del número de coti correspondiente. La información no es contractual.

Contactar
1/12
Visto

1

USD 97.000 + $111.111 expensas

Fisherton Plaza Shopping Local Comercial

Local en Venta en Fisherton, Rosario

GRUPO AMBITO SRL
  • 65 m² Total
  • 1 planta
  • 7 años

Venta Local en Fisherton Plaza Shopping Mall Funes Rosario Aeropuerto Ideal Inversion Renta

Magnifico local con una exclente ubicacion dentro del shopping fisherton plaza actualmente alquilado con importante renta (superior al 8% anual ) cuenta con una ubicada privilegiada dentro del ya consolidado shopping fisherton plaza chic mall excelente diseño estado impecable. Aires frío/calor. Amplia vidriera. Este centro comercial se encuentra estrategicamente ubicado frente al aeropuerto de rosario y limite entre funesy fisherton. Más de 65 locales comerciales, servicios y una amplia oferta gastronómica para disfrutar en familia o con amigos, todos los días del año. Locales comerciales y de servicios a cielo abierto: sanatorio privado, supermercado, farmacia, cajeros links y banelco, banco macro, seguridad, estacionamiento y más.. Abierto todos los días. Horarios: retail y servicios de 10 a 20hs. Gastronomía de 8 a 23:30hs. Alberto j. Paz 1065 bis rosario, santa fe, argentina si te interesa conocer el inmueble, no dudes en comunicarte y agendamos una visita. Queres realizar una permuta, o entregar otro inmueble en parte de pago? Nos interesa tasamos tu inmueble en 24hs. Llamanos o escribinos! Si tenés amigo que le pueda interesar este tipo de inmueble, compartile esta publicación ! *Toda la información y medidas provistas son aproximadas y deberán ratificarse con la documentación pertinente y no compromete contractualmente a nuestra empresa. * Los gastos (expensas, api, tgi, aguas, etc.) Expresados, refieren a la última información recabada y deberán confirmarse. * Las imágenes y fotografías publicadas no son vinculantes ni contractuales y no es permitida su utilización comercial. Nota: las medidas y superficies expuestas son estimativas y a corroborar con sus respectivos planos y títulos. La publicación de este inmueble es a solo título informativo, la venta de la propiedad está supeditada a que el propietario cumplimente el trámite ante la afip para la obtención del número de coti correspondiente. La información no es contractual.

Contactar