(1) (1)
  • Santa Ana

Venta

Terreno

Precio

Buscar solo avisos en moneda:

Dorm|Amb

Más filtros Más filtros

Características

Superficie total

Nombre de calle y altura

Tipo de urbanización

Fot

Servicios

Tipo de anunciante

14 Terrenos en Venta en Santa Ana

1/48
Visto

1

USD 112.500

ArribeÑos 1611

Terreno en Venta en Santa Ana, Countries y Barrios Cerrados en Tigre

Paula Nicolotti
  • 543 m² Total

TERRENO EN VILLANUEVA, BARRIO SANTA ANA

[Solucionip-3375] el barrio santa ana, dentro del complejo villanueva, es un enclave residencial traquilo y familiar, muy cerca de nordelta. Con casas modernas, áreas verdes y seguridad 24 horas, es ideal para quienes buscan un entorno apacible sin alejarse de la ciudad. Una opción de gran categoría para vivir con comodidad y en familia. Otros servicios: alambrado perimetral importante: ventas: el aviso publicado es al mero efecto informativo y no constituye una oferta ni solicitud de oferta o compra, ni una recomendación de inversión, y se entiende que presenta información resumida, preliminar y no definitiva de un inmueble o negocio. Si el aviso contuviera estimaciones o proyecciones, se entenderá que las mismas son solo opiniones que reflejan expectativas de buena fe. Imágenes no contractuales. Todas las medidas son aproximadas, y debe entenderse que toda operación se realizará ad-corpus. Los montos y porcentajes son valores de referencia y pueden variar sin previo aviso. En caso de locación, los valores expresados no incluyen iva. Las locaciones residenciales para persona física que alquila para sí misma están exentas de iva. En caso de venta, operación sujeta a la tramitación del código de oferta de transferencia de inmuebles (coti) por parte del propietario. Solicitar citas con anticipación. Alquileres: "para los casos de alquiler de vivienda, el monto máximo de comisión que se le puede requerir a los propietarios será el equivalente al cuatro con quince centésimos por ciento (4,15%) del valor total del respectivo contrato. Se encuentra prohibido cobrar a los inquilinos que sean personas físicas comisiones inmobiliarias y gastos de gestoría de informes".-

Contactar
1/15
Visto

1

USD 112.000

Barrio Santa Ana, Villanueva

Terreno en Venta en Santa Ana, Countries y Barrios Cerrados en Tigre

Vinelli Inmobiliaria
  • 537 m² Total
  • 322 m² constr.
  • 60

Lote venta Villanueva Barrio Santa Ana perimetral

[Vinelli-3562] lote perimetral en venta en el barrio cerrado santa ana, con una superficie de 537 m2 y orientación sudeste. Caracteristicas: lote en cul de sac, calle tranquila con menor circulación de autos. Frente calle: 16 m, laterales / profundidad: 33 m, fondo: 16 m. Superficie según plancheta barrio: 537 m2 fondo orientado al sudeste. Indicadores urbanísticos según reglamento interno del barrio: fos 45% para construcciones de una planta y 30% para dos plantas, fot 60%, superficie mínima: 120 m2. Retiros laterales: 3 m en un lateral y 1,5 m en otro; retiro de frente: 4 m y retiro de fondo: 6 m. Barrio: santa ana es uno de los barrios mas nuevos de villanueva y esta en pleno crecimiento, además, es el primer barrio de villanueva viniendo de tigre centro y linda con casas de santa ana, santa ana joven y san isidro labrador. Se puede acceder por la av. Italia o por la calle j. M. Loreto, villa la ñata ubicacion: está a 10 minutos del centro comercial nordelta, que cuenta con centro medico, supermercado, restaurantes, locales de diferentes rubros y estación de servicio. A 2 km de la panamericana ramal escobar y a 35 km de capital federal. Tiene acceso por panamericana, a través de la calle la bota; por la calle dean funes o por acceso tigre, tomando el camino de los remeros, luego ruta 27 hasta la calle italia, desembocando en el boulevard principal de todos los santos. Cerca de los clubes pueyrredón, newman, san andrés y delta. Las medidas son aproximadas, las reales y los datos consignados serán verificados contra la cesión de boleto de fideicomiso. Servicios: cloacas, gas otros servicios: alambrado perimetral comercializan martilleros y corredores públicos: lic. Y mart. Matías vinelli, cucicba nº 2557 arq. Y mart. Federico vinelli, cmcpsi nº 6652

Contactar
1/7
Visto

1

USD 130.000

Barrio Santa Ana, Villanueva

Terreno en Venta en Santa Ana, Countries y Barrios Cerrados en Tigre

Vinelli Inmobiliaria
  • 581 m² Total
  • 348 m² constr.
  • Excelente

Lote venta Villanueva Barrio Santa Ana 580 m2

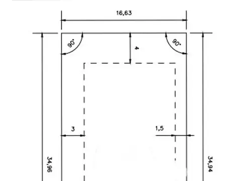
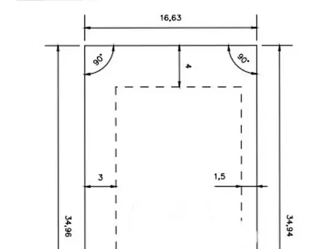
[Vinelli-3657] lote perimetral (al barrio san isidro labrador) en venta, de 581,26 m2, en el barrio cerrado santa ana, con orientación fondo al noroeste. Santa ana es uno de los barrios mas nuevos de villanueva y esta en pleno crecimiento, además, es el primer barrio de villanueva viniendo de tigre centro y linda con casas de santa ana, santa ana joven y san isidro labrador. Se puede acceder por la av. Italia o por la calle j. M. Loreto, villa la ñata. Caracteristicas: medidas lote: frente calle: 16,63 m, laterales / profundidad: 34,93 m. Superficie según plancheta barrio: 581,26 m2 fondo orientado al noroeste. Indicadores urbanísticos según reglamento interno del barrio: fos 45% para construcciones de una planta y 30% para dos plantas, fot 60%, superficie mínima: 120 m2. Retiros laterales: 3 m en un lateral y 1,5 m en otro; retiro de frente: 4 m y retiro de fondo: 6 m. Barrio: está a 10 minutos del centro comercial nordelta, que cuenta con centro medico, supermercado, restaurantes, locales de diferentes rubros y estación de servicio. A 2 km de la panamericana ramal escobar y a 35 km de capital federal. Tiene acceso por panamericana, a través de la calle la bota; por la calle dean funes o por acceso tigre, tomando el camino de los remeros, luego ruta 27 hasta la calle italia, desembocando en el boulevard principal de todos los santos. Cerca de los clubes pueyrredón, newman, san andrés y delta. Las medidas son aproximadas, las reales y los datos consignados serán verificados contra la cesión de boleto de fideicomiso. Servicios: cloacas, gas otros servicios: alambrado perimetral comercializan martilleros y corredores públicos: lic. Y mart. Matías vinelli, cucicba nº 2557 arq. Y mart. Federico vinelli, cmcpsi nº 6652

Contactar
1/21
Visto

1

USD 115.000

Barrio Santa Ana, Villanueva

Terreno en Venta en Santa Ana, Countries y Barrios Cerrados en Tigre

Vinelli Inmobiliaria
  • 543 m² Total
  • Excelente
  • 60

Lote venta Villanueva Barrio Santa Ana perimetral

[Vinelli-3650] lote perimetral en venta en el barrio cerrado santa ana, con una superficie de 543 m2 y orientación oeste. Caracteristicas: lote cerca de la entrada del barrio. Frente calle: 16 m, laterales / profundidad: 32 m, fondo: 16 m. Superficie según plancheta barrio: 543 m2 fondo orientado al oeste. Indicadores urbanísticos según reglamento interno del barrio: fos 45% para construcciones de una planta y 30% para dos plantas, fot 60%, superficie mínima: 120 m2. Retiros laterales: 3 m en un lateral y 1,5 m en otro; retiro de frente: 4 m y retiro de fondo: 6 m. Barrio: santa ana es uno de los barrios mas nuevos de villanueva y esta en pleno crecimiento, además, es el primer barrio de villanueva viniendo de tigre centro y linda con casas de santa ana, santa ana joven y san isidro labrador. Se puede acceder por la av. Italia o por la calle j. M. Loreto, villa la ñata ubicacion: está a 10 minutos del centro comercial nordelta, que cuenta con centro medico, supermercado, restaurantes, locales de diferentes rubros y estación de servicio. A 2 km de la panamericana ramal escobar y a 35 km de capital federal. Tiene acceso por panamericana, a través de la calle la bota; por la calle dean funes o por acceso tigre, tomando el camino de los remeros, luego ruta 27 hasta la calle italia, desembocando en el boulevard principal de todos los santos. Cerca de los clubes pueyrredón, newman, san andrés y delta. Las medidas son aproximadas, las reales y los datos consignados serán verificados contra la cesión de boleto de fideicomiso. Servicios: cloacas, gas otros servicios: alambrado perimetral comercializan martilleros y corredores públicos: lic. Y mart. Matías vinelli, cucicba nº 2557 arq. Y mart. Federico vinelli, cmcpsi nº 6652

Contactar
1/9
Visto

0

USD 148.000

Mrb. Venta Lote Interno En Barrio Santa Ana, Tigre

Terreno en Venta en Santa Ana, Countries y Barrios Cerrados en Tigre

Candaosa Propiedades
  • 549 m² Total

MRB. Venta lote interno en Barrio Santa Ana, Tigre.

[Candaosa-4468] mrb. Espectacular lote interno en barrio santa ana, tigre. Lote en venta en santa ana, villa nueva espectacular lote de 549 m2 en santa ana. El emprendimiento más innovador de villa nueva, conformado por lotes, casas y media densidad. Este desarrollo a gran escala fue lanzado en 2013 en una primera etapa, completándose con la segunda en 2014. Un concepto inmobiliario diferente. Se habilita para la construcción a partir del mes de diciembre 2020 santa ana. Localidad: villa nueva hectáreas totales: 70 ha cantidad unidades: 381 superficie promedio por unidad: 600 m2 atributos: lagunas; pilares de servicios; redes subterráneas de electricidad, agua, cloaca y gas villa nueva se encuentra a 15 minutos del centro de tigre, a 2 km de la panamericana ramal escobar y a 35 km de capital federal. El complejo tiene acceso por panamericana, a través de la calle la bota; por la calle dean funes o por acceso tigre, tomando el camino de los remeros, luego ruta 27 hasta la calle italia, desembocando en el boulevard principal todos los santos. La seguridad y las buenas condiciones de mantenimiento de los caminos y su iluminación son condiciones presentes en los accesos a villa nueva. Además, se abrieron nuevas calles que corren en paralelo con la panamericana, de manera tal de agilizar la circulación en auto o en transporte público. Dada la dinámica del mercado inmobiliario en la actualidad la presente publicación ya pudo haber sido reservada y el portal no haberlo actualizado al momento. Por tal motivo comuniquese con nosotros para ver esta y otras oportunidades candaosa propiedades nancy candaosa martillera y corredora pública cmzc 575

Contactar
1/7
Visto

0

USD 120.000

Adg. Oportunidad! Lote En Venta En Santa Ana, Vill

Terreno en Venta en Santa Ana, Countries y Barrios Cerrados en Tigre

Candaosa Propiedades
  • 550 m² Total

ADG. Oportunidad! Lote en venta en Santa Ana, Villa Nueva

[Candaosa-7203] adg. Oportunidad! Lote en venta en santa ana, villa nueva espectacular lote de 550m2 en santa ana el emprendimiento más innovador de villa nueva, conformado por lotes, casas y media densidad. Este desarrollo a gran escala fue lanzado en 2013 en una primera etapa, completándose con la segunda en 2014. Un concepto inmobiliario diferente. Se habilita para la construcción a partir del mes de diciembre 2020 santa ana. Localidad: villa nueva hectáreas totales: 70 ha cantidad unidades: 381 superficie promedio por unidad: 600 m² atributos: lagunas; pilares de servicios; redes subterráneas de electricidad, agua, cloaca y gas villa nueva se encuentra a 15 minutos del centro de tigre, a 2 km de la panamericana ramal escobar y a 35 km de capital federal. El complejo tiene acceso por panamericana, a través de la calle la bota; por la calle dean funes o por acceso tigre, tomando el camino de los remeros, luego ruta 27 hasta la calle italia, desembocando en el boulevard principal todos los santos. La seguridad y las buenas condiciones de mantenimiento de los caminos y su iluminación son condiciones presentes en los accesos a villa nueva. Además, se abrieron nuevas calles que corren en paralelo con la panamericana, de manera tal de agilizar la circulación en auto o en transporte público. Servicios: cloacas, gas dada la dinámica del mercado inmobiliario en la actualidad la presente publicación ya pudo haber sido reservada y el portal no haberlo actualizado al momento. Por tal motivo comuniquese con nosotros para ver esta y otras oportunidades candaosa propiedades nancy candaosa martillera y corredora pública cmzc 575

Contactar
1/13
Visto

0

USD 120.000

Mmc. Lote En Venta En Santa Ana, Villanueva

Terreno en Venta en Santa Ana, Countries y Barrios Cerrados en Tigre

Candaosa Propiedades
  • 550 m² Total

MMC. Oportunidad! Lote en venta en Santa Ana, Villa Nueva

[Candaosa-7384] mmc. Oportunidad! Lote en venta en santa ana, villa nueva espectacular lote de 550m2 en santa ana el emprendimiento más innovador de villa nueva, conformado por lotes, casas y media densidad. Este desarrollo a gran escala fue lanzado en 2013 en una primera etapa, completándose con la segunda en 2014. Un concepto inmobiliario diferente. Se habilita para la construcción a partir del mes de diciembre 2020 santa ana. Localidad: villa nueva hectáreas totales: 70 ha cantidad unidades: 381 superficie promedio por unidad: 600 m² atributos: lagunas; pilares de servicios; redes subterráneas de electricidad, agua, cloaca y gas villa nueva se encuentra a 15 minutos del centro de tigre, a 2 km de la panamericana ramal escobar y a 35 km de capital federal. El complejo tiene acceso por panamericana, a través de la calle la bota; por la calle dean funes o por acceso tigre, tomando el camino de los remeros, luego ruta 27 hasta la calle italia, desembocando en el boulevard principal todos los santos. La seguridad y las buenas condiciones de mantenimiento de los caminos y su iluminación son condiciones presentes en los accesos a villa nueva. Además, se abrieron nuevas calles que corren en paralelo con la panamericana, de manera tal de agilizar la circulación en auto o en transporte público. Servicios: cloacas, gas dada la dinámica del mercado inmobiliario en la actualidad la presente publicación ya pudo haber sido reservada y el portal no haberlo actualizado al momento. Por tal motivo comuniquese con nosotros para ver esta y otras oportunidades candaosa propiedades nancy candaosa martillera y corredora pública cmzc 575

Contactar