Santa Ana 100

USD 115.000

Venta en Santa Ana, Countries y Barrios Cerrados en Tigre

USD 115.000

  • Terreno

    Terreno

  • Terreno

    terren.

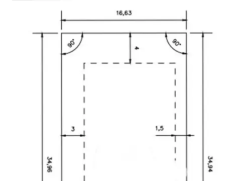
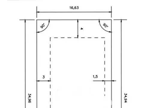
  • 578,61 m² Total

    578,61 m² Total

  • 16 mts Frente

    16 mts Frente

  • 34 mts Fondo

    34 mts Fondo

  • Excelente

    Excelente

  • 1,2

    1,2

  • 0,6

    0,6

Excelente Terreno en venta en Santa Ana. Lote #1

Hermoso lote interno en venta en Barrio Santa Ana 2 ( lote N° 1) , Villanueva . Excelente ubicación dentro del barrio . Ideal para quienes buscan estar rodeados de naturaleza .
Lote de 578 m2.aprox.
Santa Ana es un barrio cerrado , con lotes y lagunas. Además cuenta con todos los servicios, electricidad, agua, cloaca y gas.
El barrio se encuentra en la zona de Villa Nueva a minutos Tigre, y de Panamericana, también cercano a Nordelta y diferentes centros comerciales, educativos y médicos de la zona .

Ubicación

Santa Ana, Countries y Barrios Cerrados en Tigre, Tigre, G.B.A. Zona Norte

Esta propiedad pertenece al Barrio cerrado:

Santa Ana - Villanueva

Santa Ana - Villanueva

Lotes desde:

600 m2

Lotes totales:

381

Hectáreas:

70

Ver Barrio cerrado

Características

  • Long. Frente: 16 m

  • Long. Fondo: 34 m

  • Fot: 1,20

  • FOS: 0,60

  • Zonificación: RM1

  • Tipo de Terreno: Terreno

  • Tipo de Pendiente: Plana

  • Precio: USD 115.000

  • Sup. Total: 578,61 m2

  • Agua corriente
  • Alambrados
  • Electricidad
  • Luz eléctrica
  • Agua corriente
  • Electricidad
  • Gas natural

Código de aviso: 6J2N_40

Contactá al anunciante

Inmobiliaria Puricelli