Barrio Santa Ana, Villanueva

USD 130.000

Venta en Santa Ana, Countries y Barrios Cerrados en Tigre

USD 130.000

  • Terreno

  • 581 m² Total

  • 348 m² Construible

  • Excelente

  • 60

  • 45

Lote venta Villanueva Barrio Santa Ana 580 m2

[VINELLI-3657]

Lote perimetral (al barrio San Isidro Labrador) en venta, de 581,26 m2, en el Barrio cerrado Santa Ana, con orientación fondo al Noroeste. Santa Ana es uno de los barrios mas nuevos de Villanueva y esta en pleno crecimiento, además, es el primer barrio de Villanueva viniendo de Tigre centro y linda con Casas de Santa Ana, Santa Ana joven y San Isidro Labrador. Se puede acceder por la Av. Italia o por la calle J. M. Loreto, Villa La Ñata.

CARACTERISTICAS:
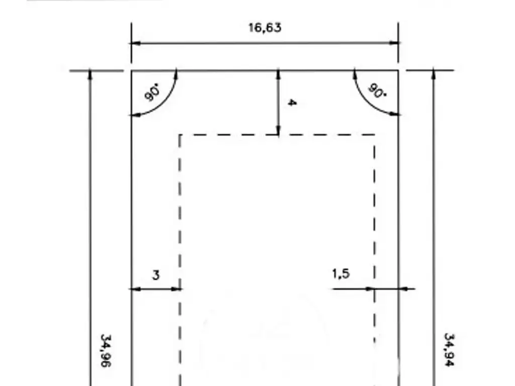
Medidas lote: Frente calle: 16,63 m, laterales / profundidad: 34,93 m.
Superficie según plancheta barrio: 581,26 m2
Fondo orientado al Noroeste.

Indicadores urbanísticos según reglamento interno del barrio:
FOS 45% para construcciones de una planta y 30% para dos plantas,
FOT 60%, superficie mínima: 120 m2.
Retiros laterales: 3 m en un lateral y 1,5 m en otro; retiro de frente: 4 m y retiro de fondo: 6 m.

BARRIO:
Está a 10 minutos del Centro Comercial Nordelta, que cuenta con centro medico, supermercado, restaurantes, locales de diferentes rubros y estación de servicio. A 2 km de la Panamericana ramal Escobar y a 35 km de Capital Federal. Tiene acceso por Panamericana, a través de la calle La Bota; por la calle Dean Funes o por Acceso Tigre, tomando el Camino de los Remeros, luego Ruta 27 hasta la Calle Italia, desembocando en el Boulevard principal de Todos los Santos. Cerca de los clubes Pueyrredón, Newman, San Andrés y Delta.

Las medidas son aproximadas, las reales y los datos consignados serán verificados contra la cesión de boleto de fideicomiso.

Servicios: Cloacas, Gas

Otros Servicios: Alambrado perimetral



Comercializan Martilleros y Corredores Públicos:
Lic. y Mart. Matías Vinelli, CUCICBA nº 2557
Arq. y Mart. Federico Vinelli, CMCPSI nº 6652

Ubicación

Santa Ana, Countries y Barrios Cerrados en Tigre, Tigre, G.B.A. Zona Norte

Esta propiedad pertenece al Barrio cerrado:

Santa Ana - Villanueva

Santa Ana - Villanueva

Lotes desde:

600 m2

Lotes totales:

381

Hectáreas:

70

Ver Barrio cerrado

Características

  • Fot: 60

  • FOS: 45

  • Zonificación: Barrio cerrado con lagunas

  • Precio: USD 130.000

  • Sup. Construible: 348 m2

  • Sup. Total: 581 m2

  • Pavimento
  • Agua corriente
  • Electricidad
  • Gas natural

Código de aviso: 251214-6425686

Contactá al anunciante

Vinelli Inmobiliaria