(1) (1)
  • Villa Ortuzar

Venta

Local

Precio

Buscar solo avisos en moneda:

Dorm|Amb

Más filtros Más filtros

Características

Superficie total

Nombre de calle y altura

Expensas

$

Tipo de urbanización

Plantas

Servicios

Tipos de ambientes

Estado de obra

Tipo de anunciante

18 Locales en Venta en Villa Ortuzar

1/27
Visto

6

USD 680.000

Atanasio Girardot 1862

Local en Venta en Villa Ortuzar, Capital Federal

Le Brique Propiedades
  • 947 m² Total
  • 30 años
  • 2 baños

Excelente Local de 17.5x21 - Le Brique Propiedades

Excelente local en lote propio de 17.60x21 muy buena ubicación a metros de av. Chorroarin, 1 cuadra de av. Combatientes de malvinas y a 2 cuadras de av. Triunvirato. Son alrededor de 717 m2 cubiertos distribuidos en 2 plantas: la pb cuenta con una superficie total aproximada de 340m², con amplios espacios y excelente funcionalidad para distintos rubros comerciales, showroom o uso profesional. (La ultima actividad fue salón de eventos). Pb: al frente cuenta con un acceso principal con amplia entrada de vehículos y 2 accesos peatonales secundarios. Amplio hall de recepción, gran salón principal o ambiente de trabajo al frente (9.50 x 4.80). Segundo ambiente de gran dimensión al contrafrente (17.00 x 11.20) con buena iluminación y ventilación. Cocina independiente (5.85 x 2.95) con entrada de servicio. Oficina con ventilación al exterior y toilette. Tres baños completos. Planta alta: acceso mediante escalera principal, con hall de distribución. Amplio sector de taller con buena ventilación y luz natural, adaptable para producción, depósito o área de trabajo. Dos depósitos independientes, ideales para almacenamiento o archivo. Cocina y área de vestuarios con baños para ambos sexos, totalmente equipados. Espacio técnico con compresores y claraboya protegida, que aporta excelente iluminación central. Planta azotea con espacio de guardado. Cuenta con gas natural le brique propiedades inmobiliaria villa ortuzar le brique propiedades tasación villa ortuzar le brique

Contactar
1/15
Visto

1

USD 95.000

ROSETI 1800

Local en Venta en Villa Ortuzar, Capital Federal

DOS SANTOS-GONCALVES ESTUDIO INMOBILIARIO-JURIDICO
  • 51 m² Total
  • 1 baño
  • Bueno

Local - Venta - Argentina, Capital Federal - ROSETI 1800

Venta de local en villa ortuzar, capital federal a 1 c/ instituto san roque - a 3 c/ subte b - a 2 c/ av. Triunvirato - a 2 c/ av. Alvarez thomas - a 5 c/ importante interseccion de avenidas como av. De los incas y comb. De malvinas. Amplio local luminoso - sin expensas - con buenas dimensiones de fondo - persiana en muy buen funcionamiento - apto varios rubros - zonificacion usab1 - ideal comercio minorista / estudio profesional. ( Se puede evaluar un financiamiento) apto credito. Ingresamos por un frente de 3,80 mts que nos da la bienvenida con una amplia persiana metálica, brindando buena visibilidad y presencia comercial a la calle. La disposición norte asegura sol y luz natural durante todo el día, lo que le da un toque cálido y atractivo al espacio. El local se desarrolla en un rectángulo de 3,80 x 12,75 mts de fondo, con pisos de cerámico y paredes blancas que amplifican la luminosidad. Este gran espacio resulta versátil para distintos rubros y cuenta con la posibilidad de armar un entrepiso, añadiendo metros extra de uso y funcionalidad. Al fondo, el baño ya equipado suma comodidad para el uso diario, con revestimientos cerámicos que garantizan durabilidad y fácil mantenimiento. En resumen, un local listo para adaptarse a distintas propuestas comerciales, donde la luz, la amplitud y la flexibilidad se combinan para potenciar tu proyecto. Gastos de agua compartidos y actualmente se esta haciendo la baja del servicio de luz por lo cual se entrega sin medidor. -Las medidas son aproximadas, las mismas tienen un fin meramente informativo, las definitivas son las que surgen de la escritura- -la descripcion del inmueble, servicios y medidas pueden no ajustarse a sus características y medidas reales y/o actuales- la venta de este inmueble está sujeta a la tramitación del código de transferencia de inmuebles (coti), de conformidad con la normativa vigente (res. Afip 2371/08, 2439/08 y ccs.) Por parte del propietario. Matrícula cucicba nº 5397

Contactar
1/27
Visto

1

USD 220.000

Av. Alvarez Thomas al 2000

Local en Venta en Villa Ortuzar, Capital Federal

DAMATO PROPIEDADES
  • 69 m² Total
  • 1 baño

Departamento en Villa Urquiza

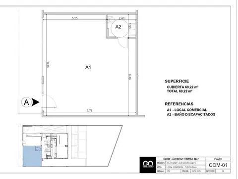
Local comercial en edificio de categoría con doble frente sobre avenida. Local comercial con 69,22 mts.cuadrados y 8,50 metros de frente, ideal para usos múltiples. Puede adaptarse para tienda minorista, oficina, consultorio o espacio gastronómico. La versatilidad de la distribución permite aprovecharlo para diversos rubros. Baño completo. Tenemos unidades modelo para que visites y conozcas los detalles de construcción y el equipamiento. Materiales y equipamientos del emprendimiento glow 7 plus: - portero eléctrico con cámara. - Cerradura eléctrónica en acceso a departamentos. - Agua caliente central. - Pintura latex interior terminada - placards con frentes e interiores. - Pisos estructurados de madera prefinished. - Carpinterías de pcv de alta prestación y hermeticidad con dvh (doble vidriado hermético). - Porcelanatos de primeras marcas (vite o similar) en cocinas, baños y lavaderos. Mesadas y alzadas de purastone venatino o marcas similares). - Muebles de cocina y baños de melamina texturada (egger o faplac) y herrajes de primeras marcas ( hafele o ducasse). - Griferías y artefactos sanitarios de primera calidad (fv, ferrutti), cocinas equipadas con anafe y horno eléctrico y/o gas, extractores. - Lavasecarropas en las unidades que corresponda. - Aires acondicionados split f/c. - Calefacción por losa radiante. - Se entregan equipados con lavasecarropas. - Tomas de pared usb. Se pueden visitar las últimas obras que han realizado y las 2 obras que en la actualidad se encuentran en distintas etapas de construcción para poder apreciar los detalles. Comercialización exclusiva de d'amato propiedades cucicba 6725 cmcpsm 2723 oficina tel: whatsapp tel:549- instagram : @damatopropiedades

Contactar
1/5
Visto

0

USD 960.000

Heredia al 200

Local en Venta en Villa Ortuzar, Capital Federal

DIEGO PABLO NOVELLO BIENES RAICES
  • 519 m² Total
  • 1 planta
  • 50 años

VENTA de Local - estacion de servicio en Villa Ortuzar

Estacion de servicio en este momento sin expendio de combustible, en buen estado de tanques, buen estado general, el lugar tiene baños para personal y clientes, espacio para lavadero de autos, 1 deposito, fosa de engrase, un salon de ventas que en este momento funciona como local/mini shop. Para volver a expender combustible habria que tramitar la habilitacion correspondiente. La estacion tiene mucho potencial ya que en la zona a minimo 10 cuadras a la redonda no hay competencia. La zona tiene muchos desarollos habitacionales nuevos y tambien mucho deposito e industria. Como estacion de servicio tiene un potencial importante colectivos: 111-123-47-63-44-78-87-108-113-133tren: urquiza subte: b 2025 . En cumplimiento con la normativa vigente, los asistentes no ejercen el corretaje inmobiliario. La intermediación y conclusión de las operaciones inmobiliarias es desarrollada por martilleros y corredores públicos. Esta oficina inmobiliaria se encuentra a cargo de diego pablo novello, cpi 7245- csi 6481, -6, roosevelt 5399. Se encuentra prohibido cobrar comisiones inmobiliarias y gastos de gestoría de informes a los inquilinos que sean personas físicas. Para los casos de alquiler de vivienda, el monto máximo de comisión que se le puede requerir a los propietarios será el equivalente al cuatro con quince centésimos por ciento (4,15%) del valor total del respectivo contrato ley 5115 inmueble no accesible para personas con movilidad reducida.

Contactar
1/7
Visto

0

USD 82.000

Virrey Avilés 3800

Local en Venta en Villa Ortuzar, Capital Federal

REMAX Urbana 3
  • 32 m² Total
  • 1 año
  • 1 baño

Local en planta baja Emprendimiento Aviles 3863

Corredor responsable: jorge salafia cucicba 5666 / csi 5888 - contacto: nicolas eisen esta unidad se encuentra en planta baja, es apto comercial y profesional ( posibilidad de tener vidriera como local). Memoria descriptiva el desarrollo ofrece unidades de 1, 2 y 3 ambientes diseñadas para brindar confort y funcionalidad en cada rincón. A su vez contara con una variedad de amenities pensados para el bienestar y el entretenimiento. Un edificio apto profesional de 7 pisos y 19 unidades, compuesto por exclusivos departamentos de 38 a 90m2 . En la planta baja se encuentra además del hall de acceso, una cochera y un local comercial. • Sum con jardín: un espacio polifuncional para tus reuniones y eventos, rodeado de naturaleza. • Co-working: un entorno compartido para trabajar de manera flexible, con conectividad a internet y acceso a office. - En el subsuelo, con acceso por ascensor, estará el tanque cisterna y sistema de bombeo de agua, y contará además de manera opcional con: • bauleras: espacio adicional para guardar tus pertenencias con total seguridad. • Bicicleteros: un lugar seguro y práctico para tu bicicleta. En el octavo piso: • solarium: un área abierta donde podrás relajarte y disfrutar del sol. • Laundry: instalaciones modernas para tu comodidad y facilidad. Cuenta además con ascensor electromecánico sistema gearless (sin sala de maquina) con motor de alta eficiencia y bajo consumo, con puertas automáticas, terminación en acero inoxidable y espejo. Especificaciones tecnicas: muros • muros exteriores en ladrillo hueco de 0.18m. • Tabiques no portantes en ladrillo hueco de 0.12m y 0.08m. Revoques • exteriores: revoque estilo texturado. • Interiores: revoque cementicio terminación yeso. Cielorrasos • en hall acceso, estar-comedor y dormitorio: yeso aplicado. • Cocina y baños: armado de placas de yeso. Carpinterias • puerta de acceso a unidades de chapa f30 (certificadda contra incendio) de 0.90m de ancho. • Ventanas con premarco, marco y hojas de aluminio con dvh línea modena de aluar o similar hydros, color negro. • Puertas interiores tipo placa de 0.80m, marco chapa bwg nº 18. • Frentes de placard corredizos, de mdf enchapado y perfi lería de aluminio anodizado natural. • Herrajes marca currao®, color bronce platil. Pisos, zócalos y revestimientos • pisos y zócalos de porcelanato. • Revestimiento en baños y cocina de cerámica. Mesadas, muebles y equipamiento de baño y cocina • en cocina, granito gris mara o similar con zócalo y frente recto pulido. • Pileta doble marca mi pileta modelo e305. • Muebles bajo mesada y alacenas de moderno diseño, en melamina. Con herrajes de aluminio. Correderas metálicas en cajoneras. Espacio para microondas. • Horno y anafe eléctrico marca domec o similar • instalación de purificador de aire tipo spar • en baños y toilete mesadas de granito negro con pileta de porcelana. • Estante bajo mesada • (no se incluyen accesorios de baño, toallero, portarolllo, jabonera, etc) muebles y equipamiento comunes • sum: contara con mesas, sillas y menaje con capacidad para 16 personas. Mesada de granito con pileta y grifería monocomando. Heladera, microondas y pava electrica. • Jardin: contara con paisajismo perimetral en canteros o macetas, mesa baja y 2 sillones • co-working: contara con mesas y sillas para 6 personas. Previsión para instalación de servicio de internet a cargo del consorcio. • Bauleras: espacio enrejado de piso a techo con puerta rebatible y pasador con candado. • Bicicleteros: contaran con soporte para colgar en pared con gancho para candado. • Solarium: contara con 3 reposeras/camastros, un parasol plegable, mesa baja y 2 sillones. • Laundry: se dejara la previsión para instalación de máquinas lavadoras y secadoras a cargo del consorcio. Instalación sanitaria • sistema de desagues cloacales y pluviales en material aprobado awaduct o similar • abastecimiento agua fría y caliente: realizada en sistema por “termofusión” marca aqua system o smilar • artefactos sanitarios en baños, marca ferrum o similar. • Griferías: monocomando marca fv o similar • el agua caliente sanitaria será de abastecimiento central a través de termotanques a gas de alta recuperación instalación termomécanica • las unidades contarán con equipos tipo split inverter marca electra o similiar, frio/calor en cada ambiente. Instalación eléctrica | internet • instalación eléctrica trifásica para ascensor. • Cañería de pvc reforzado aprobado. • Instalación dividida en circuitos independientes s/proyecto eléctrico certificado por el ente nacional regulador de energía eléctrica, con sus llaves térmicas y disyuntor general de primera marca, con jabalina de puesta a tierra. • Llaves de luz y tomas marca cambre línea siglo xxi. • Timbre de entrada principal portero/visor marca commax o similar • previsión de instalación de “cañería vacía” en dormitorios y estar-comedor para proveedor de internet. Pinturas • terminación paredes interiores con látex blanco. • Puertas interiores pintadas con esmalte sintético satinado. • Cielorrasos de yeso pintados con látex interior especial para cielorrasos de primera calidad. Inicio de obra marzo 2025, entrega aproximada de las unidades dic. 2026. Rau s.R.L. No ejerce el corretaje inmobiliario. El presente sitio web es una plataforma en donde cada oficina inmobiliaria independiente que contrata los servicios re/max puede publicar las propiedades a su cargo. Cada oficina es de propiedad y gestión independiente, por lo que rau s.R.L. No interviene en los datos de la publicación, en la operación inmobiliaria, ni en la confección y/o firma del boleto de compraventa y/o escritura y/o contrato de alquiler. En cumplimiento de las leyes vigentes que regulan el corretaje inmobiliario, ley nacional 25.028, ley 22.802 de lealtad comercial, ley 24.240 de defensa al consumidor, las normas del código civil y comercial de la nación y constitucionales, los agentes/gestores no ejercen el corretaje inmobiliario. Todas las operaciones inmobiliarias son objeto de intermediación y conclusión por parte del corredor público inmobiliario colegiado a cargo de la publicación, cuyos datos se exhiben en la presente. La presente publicación describe las características esenciales del inmueble, debiéndose consultar al corredor público inmobiliario responsable de la operación por la eventual actualización de las medidas, descripciones arquitectónicas y funcionales, valores de expensas, servicios, impuestos, precios y demás información, cuyos valores son aproximados. El inmueble no es accesible para personas con discapacidades físicas. El inmueble es accesible para personas con discapacidades físicas. Comprá la casa que querés! No la que podés. Accedé a un préstamo por hasta el 30% del valor de esta propiedad. Simulá tu cuota en lendar

Contactar
1/84
Visto

0

USD 590.000

Giribone al 1700

Local en Venta en Villa Ortuzar, Capital Federal

  • 306 m² Total
  • 2 plantas
  • 15 años

Local en venta y permuta Villa Ortuzar

Local comercial con oficinas en venta, ubicación estratégica sobre avenida excelente oportunidad para desarrolladores: incidencia baja y gran proyección alvarez thomas 1740 - villa ortúzar, caba. Edificio comercial. Estructura habilitada para construcción. Actualmente local comercial ubicado en el barrio de villa ortúzar. Con dos entradas independientes, una por av. Álvarez thomas y la secundaria por la calle giribone. Entorno consolidado, ideal para desarrollos residenciales y comerciales. A metros de av. Elcano, subte b, y rápido acceso a av. De los incas y triunvirato. Edificación actual con posibilidad de uso comercial o refacción total. Se puede mantener, modificar o demoler según proyecto. Proyecto ideal para viviendas, coworking, oficinas o local + unidades planta baja: entrada principal elegante: accede a un hall de entrada acogedor que te conduce a un amplio salón. Esta área destaca por su gran ambiente y un showroom ideal para mostrar tus productos o simplemente disfrutar de un espacio versátil. Habitación y montacarga: en la parte trasera, encontrarás una habitación tipo depósito equipada con un montacarga que conecta la planta baja con el primer piso, facilitando el movimiento de mercancías o elementos pesados. Área de recepción y cocina: a la izquierda, un pasillo te lleva a un área de recepción con acceso desde la calle giribone, un baño y una cocina totalmente equipada, perfecta para tus necesidades diarias. Oficina y escalera: a la derecha, dispones de una oficina privada y una escalera que te llevará a la planta superior. Planta alta: espacios amplios y versátiles: la planta alta ofrece un gran espacio abierto ideal para múltiples usos, desde salas de reuniones hasta áreas de almacenamiento. Habitación y montacarga: a la derecha, una amplia habitación o depósito con acceso al montacarga. Subiendo cinco escalones, encontrarás una cocina adicional con baño. Ambientes adicionales: a la izquierda, dos ambientes que dan a la avenida, seguidos por un tercer ambiente de gran dimensión. Con espacio de guardado y un toilette, accesible tras subir unos escalones. Características de la zona: - ubicación estratégica sobre avenida con alto tránsito vehicular y peatonal - ubicado sobre la av. Álvarez thomas - cercanía con diversos jardines, escuelas primarias e instituciones secundarias. - A 300m de avenida de los incas y a 500m de av. Triunvirato. - Cercanía con línea b del subte, estaciones de los incas-parque chas y tronador-villa ortuzar. - Zona cercana a diversos hospitales, entre ellos el hospital italiano y hospital general de agudos dr. Enrique tornú. - Aproximado a farmacias, sanatorios. - Zona aproximada al parque chas y cementerio de chacarita. - La propiedad se encuentra aproximada a diversas líneas de colectivos (80,127, 71, 119, 176, 140, etc.). - Cercanía a diversos hipermercados, supermercados y kioscos. - Plaza con juegos para niños a 4 cuadras. - A 4 cuadras de sede facultad utn. Corredor inmobiliario responsable: corredora pública mariana parrinello bienes raíces, cucicba 8024, altolaguirre 1500 caba. Cmcpsi e/t en cumplimiento de las leyes vigentes que regulan el corretaje inmobiliario, ley nacional 25.028, ley 22.802 de lealtad comercial, ley 24.240 de defensa al consumidor, las normas del código civil y comercial de la nación y constitucionales, los agentes inmobiliarios (art. 1479 ccycn) no ejercen el corretaje inmobiliario y será el martillero responsable quién suscribirá todos los documentos de ley. *Acorde ley 5115, se informa que no posee rampa de discapacitados. -

Contactar
1/5
Visto

0

USD 67.500

Avenida Álvarez Thomas 1600

Local en Venta en Villa Ortuzar, Capital Federal

REMAX URBANA
  • 25 m² Total
  • 1 año
  • 1 baño

Venta Local en pozo en Villa Ortúzar

Corredor responsable: marcelo trujillo cucicba 6470 / cmcpdjlm 810 - contacto: cecilia campero se vende local comercial ubicada al frente del edificio, posee toilette y un sector de cocina. Se encuentra en una planta baja del edificio. Terminaciones de categoría el edificio está ubicado sobre una avenida de rápido acceso y salida de la ciudad de buenos aires, a 400 metros de la estación de subte tronador. El edificio se encuentra en construcción, la etapa de la misma al mes de noviembre 2025 esta terminado las losas de hormigón y mampostería. El precio de la publicación corresponde al pago total en efectivo. Entrega agosto 2026 apto financiamiento. Precio final: usd 75.000. Anticipo de usd 22.500 y 20 cuotas de s 2.940.000,00 tenemos más unidades, no dudes en consultar rau s.R.L. No ejerce el corretaje inmobiliario. El presente sitio web es una plataforma en donde cada oficina inmobiliaria independiente que contrata los servicios re/max puede publicar las propiedades a su cargo. Cada oficina es de propiedad y gestión independiente, por lo que rau s.R.L. No interviene en los datos de la publicación, en la operación inmobiliaria, ni en la confección y/o firma del boleto de compraventa y/o escritura y/o contrato de alquiler. En cumplimiento de las leyes vigentes que regulan el corretaje inmobiliario, ley nacional 25.028, ley 22.802 de lealtad comercial, ley 24.240 de defensa al consumidor, las normas del código civil y comercial de la nación y constitucionales, los agentes/gestores no ejercen el corretaje inmobiliario. Todas las operaciones inmobiliarias son objeto de intermediación y conclusión por parte del corredor público inmobiliario colegiado a cargo de la publicación, cuyos datos se exhiben en la presente. La presente publicación describe las características esenciales del inmueble, debiéndose consultar al corredor público inmobiliario responsable de la operación por la eventual actualización de las medidas, descripciones arquitectónicas y funcionales, valores de expensas, servicios, impuestos, precios y demás información, cuyos valores son aproximados. El inmueble no es accesible para personas con discapacidades físicas. Comprá la casa que querés! No la que podés. Accedé a un préstamo por hasta el 30% del valor de esta propiedad. Simulá tu cuota en lendar

Contactar
1/37
Visto

0

USD 1.450.000

Avenida Triunvirato 3000

Local en Venta en Villa Ortuzar, Capital Federal

REMAX Avenida
  • 732 m² Total
  • 46 años
  • 4 baños

Venta Local - oficina - deposito Villa Ortuzar

Corredor responsable: marisa serantoni cpi 9681 / bruno slongo cmcpdjlm 1051 - contacto: gustavo correa ingreso principal por av. Triunvirato 3058. A metros subte b estación tronador pb: show room, sala de espera, 5 oficinas, sala de reunión. Todo removibles (tabiques de durlock), 2 baños (damas y caballeros). 1°piso: sala de espera, 6 oficinas, 1 gerencia, 2 sala de reunión, 1 sala archivos. Todo removibles (tabiques de durlock), 2 baños (damas y caballeros) 2°piso: cocina, comedor, sala de tanques y patio con equipos aire acondicionado. Contrafrente: con acceso a galpón por iturri 1539, con portón y persiana - garage/playa de descarga/deposito cuenta con trifásica, gas natural, aire acondicionado central, termotanque, cableado de red central para informática en todas las oficinas y salas. Zonificación: distrito audiovisual usos: área de alta mixtura de usos del suelo 4: corresponde a las áreas y corredores destinados a residencia, depósitos siempre que incluyan local de venta y servicios y comercios de afluencia metropolitana. Terreno: aprox. 12,30 x 38,29 - 471 m2 sup. Cubierta: medidas aprox. Pb frente: 220m2 - recepción, oficinas, baños pb contrafrente: 220m2 galpón, estacionamiento (9 cocheras) playa de descarga. 1er piso frente: 220m2 oficinas y baños 2do piso frente: 63m2 office, comedor total sup. Cubierta: 723m2 aprox. Total sup. Descub: 8.82m2 las medidas publicadas son aproximadas y difieren de las establecidas en la escritura traslativa de dominio rau s.R.L. No ejerce el corretaje inmobiliario. El presente sitio web es una plataforma en donde cada oficina inmobiliaria independiente que contrata los servicios re/max puede publicar las propiedades a su cargo. Cada oficina es de propiedad y gestión independiente, por lo que rau s.R.L. No interviene en los datos de la publicación, en la operación inmobiliaria, ni en la confección y/o firma del boleto de compraventa y/o escritura y/o contrato de alquiler. En cumplimiento de las leyes vigentes que regulan el corretaje inmobiliario, ley nacional 25.028, ley 22.802 de lealtad comercial, ley 24.240 de defensa al consumidor, las normas del código civil y comercial de la nación y constitucionales, los agentes/gestores no ejercen el corretaje inmobiliario. Todas las operaciones inmobiliarias son objeto de intermediación y conclusión por parte del corredor público inmobiliario colegiado a cargo de la publicación, cuyos datos se exhiben en la presente. La presente publicación describe las características esenciales del inmueble, debiéndose consultar al corredor público inmobiliario responsable de la operación por la eventual actualización de las medidas, descripciones arquitectónicas y funcionales, valores de expensas, servicios, impuestos, precios y demás información, cuyos valores son aproximados. El inmueble es accesible para personas con discapacidades físicas. Comprá la casa que querés! No la que podés. Accedé a un préstamo por hasta el 30% del valor de esta propiedad. Simulá tu cuota en lendar

Contactar
1/17
Visto

0

USD 82.000

Virrey Avilés 3800

Local en Venta en Villa Ortuzar, Capital Federal

REMAX Urbana 3
  • 32 m² Total
  • A Estrenar
  • 1 baño

Preventa Villa ortuzar Emprendimiento Aviles 3863

Corredor responsable: jorge salafia cucicba 5666 / csi 5888 - contacto: nicolas eisen venta local emprendimiento avilés 3863 esta unidad se encuentra en planta baja; es apta comercial y profesional, con posibilidad de disponer de vidriera como local. Memoria descriptiva el desarrollo ofrece unidades de 1, 2 y 3 ambientes diseñadas para brindar confort y funcionalidad en cada rincón. A su vez, contará con una variedad de amenities pensados para el bienestar y el entretenimiento. Edificio apto profesional de 7 pisos y 19 unidades, compuesto por exclusivos departamentos de 38 a 90 m². En planta baja se encuentran, además del hall de acceso, una cochera y un local comercial. Amenities sum con jardín: espacio polifuncional para reuniones y eventos, rodeado de naturaleza. Co-working: entorno compartido para trabajar de manera flexible, con conectividad a internet y acceso a office. Subsuelo con acceso por ascensor, se ubican el tanque cisterna y el sistema de bombeo de agua. Además, contará opcionalmente con: bauleras: espacio adicional para guardar pertenencias con total seguridad. Bicicleteros: lugar seguro y práctico para bicicletas. Octavo piso solarium: área abierta para relajarse y disfrutar del sol. Laundry: instalaciones modernas para mayor comodidad. El edificio contará con ascensor electromecánico sistema gearless (sin sala de máquina), con motor de alta eficiencia y bajo consumo, puertas automáticas y terminación en acero inoxidable con espejo. Especificaciones técnicas muros exteriores en ladrillo hueco de 0,18 m. Tabiques no portantes en ladrillo hueco de 0,12 m y 0,08 m. Revoques exteriores: revoque estilo texturado. Interiores: revoque cementicio con terminación en yeso. Cielorrasos hall de acceso, estar-comedor y dormitorio: yeso aplicado. Cocina y baños: armado de placas de yeso. Carpinterías puerta de acceso a unidades en chapa f30 (certificada contra incendio), 0,90 m de ancho. Ventanas con premarco, marco y hojas de aluminio con dvh línea módena de aluar o similar hydros, color negro. Puertas interiores tipo placa de 0,80 m con marco chapa bwg nº 18. Frentes de placard corredizos de mdf enchapado, con perfilería de aluminio anodizado natural. Herrajes marca currao, color bronce platil. Pisos, zócalos y revestimientos pisos y zócalos de porcelanato. Revestimientos en baños y cocina de cerámica. Mesadas, muebles y equipamientos (baño y cocina) cocina: mesada de granito gris mara o similar, con zócalo y frente recto pulido. Pileta doble marca mi pileta modelo e305. Muebles bajo mesada y alacenas de diseño moderno en melamina, con herrajes de aluminio y correderas metálicas en cajoneras. Espacio para microondas. Horno y anafe eléctrico marca domec o similar. Instalación de purificador de aire tipo spar. Baños y toilette: mesadas de granito negro con pileta de porcelana. Estante bajo mesada. No se incluyen accesorios de baño (toallero, portarollo, jabonera, etc.). Muebles y equipamiento comunes sum: mesas, sillas y menaje para 16 personas. Mesada de granito con pileta y grifería monocomando. Heladera, microondas y pava eléctrica. Jardín: paisajismo perimetral en canteros o macetas, mesa baja y dos sillones. Co-working: mesas y sillas para 6 personas. Previsión para instalación de servicio de internet a cargo del consorcio. Bauleras: espacios enrejados de piso a techo, con puerta rebatible y pasador para candado. Bicicleteros: soporte para colgar en pared con gancho para candado. Solarium: tres reposeras/camastros, un parasol plegable, mesa baja y dos sillones. Laundry: previsión para instalación de máquinas lavadoras y secadoras, a cargo del consorcio. Instalación sanitaria desagües cloacales y pluviales en material aprobado awaduct o similar. Abastecimiento de agua fría y caliente mediante sistema por termofusión marca aqua system o similar. Artefactos sanitarios marca ferrum o similar. Griferías monocomando marca fv o similar. Agua caliente sanitaria central mediante termotanques a gas de alta recuperación. Instalación termomecánica unidades equipadas con sistemas split inverter marca electra o similar, frío/calor en cada ambiente. Instalación eléctrica e internet instalación eléctrica trifásica para ascensor. Cañería de pvc reforzado aprobado. Circuitos independientes según proyecto eléctrico certificado por enre, con llaves térmicas y disyuntor general de primera marca, y jabalina de puesta a tierra. Llaves de luz y tomas marca cambre línea siglo xxi. Timbre de entrada principal portero/visor marca commax o similar. Previsión de “cañería vacía” en dormitorios y estar-comedor para proveedor de internet. Pinturas paredes interiores con látex blanco. Puertas interiores con esmalte sintético satinado. Cielorrasos de yeso con látex interior especial de primera calidad. Inicio de obra: marzo 2025 entrega estimada: diciembre 2026 rau s.R.L. No ejerce el corretaje inmobiliario. El presente sitio web es una plataforma en donde cada oficina inmobiliaria independiente que contrata los servicios re/max puede publicar las propiedades a su cargo. Cada oficina es de propiedad y gestión independiente, por lo que rau s.R.L. No interviene en los datos de la publicación, en la operación inmobiliaria, ni en la confección y/o firma del boleto de compraventa y/o escritura y/o contrato de alquiler. En cumplimiento de las leyes vigentes que regulan el corretaje inmobiliario, ley nacional 25.028, ley 22.802 de lealtad comercial, ley 24.240 de defensa al consumidor, las normas del código civil y comercial de la nación y constitucionales, los agentes/gestores no ejercen el corretaje inmobiliario. Todas las operaciones inmobiliarias son objeto de intermediación y conclusión por parte del corredor público inmobiliario colegiado a cargo de la publicación, cuyos datos se exhiben en la presente. La presente publicación describe las características esenciales del inmueble, debiéndose consultar al corredor público inmobiliario responsable de la operación por la eventual actualización de las medidas, descripciones arquitectónicas y funcionales, valores de expensas, servicios, impuestos, precios y demás información, cuyos valores son aproximados. El inmueble es accesible para personas con discapacidades físicas. Comprá la casa que querés! No la que podés. Accedé a un préstamo por hasta el 30% del valor de esta propiedad. Simulá tu cuota en lendar

Contactar
1/18
Visto

0

USD 150.000

Av. Combatientes de Malvinas al 3200 Esquina Av. Triunvirato

Local en Venta en Villa Ortuzar, Capital Federal

Dic Propiedades SA
  • 1 planta
  • 30 años
  • 1 baño

Local Venta - Villa Ortuzar

Local de 46 m2 ubicado en plena zona comercial, a metros ingreso subte, mucho movimiento peatonal y vehicular ideal para cualquier rubro. Totalmente aprovechable sin columnas, en buen estado, cómodo y luminoso con un baño y separación para oficina. El ancho de la vidriera es de 6 mts. a metros de la av, triunvirato, colectivos, estación de tren. Ideal para visitarlo. Cucicba 5147 "se deja constancia que los m2 y la antiguedad son aproximados, al igual que las medidas parciales y el valor consignado de las expensas mensuales (en caso que corresponda pago de expensas) están sujetos a verificación y/o ajustes, el precio del inmueble puede ser modificado sin previo aviso. En el caso de tratarse de un inmueble en construcción los detalles de terminación y la fecha de entrega están sujetos a revisión. Fotos de carácter no contractual. Las unidades publicadas están sujetas a disponibilidad. Dic propiedades s.A. Actúa solamente en carácter de comercializadora de los inmuebles ofrecidos. En caso de tratarse de un terreno, la información de m2 construibles es orientativa, debiendo ser constatada por el interesado." Código de propiedad: dlo5180408 javier del coro igarzabal cmcpsi mat no 4499 maría amparo coello cuciba mat n 5147 dic propiedades s.A. -

Contactar
1/3
Visto

0

USD 75.000 + $130.000 expensas

Av Forest 1300

Local en Venta en Villa Ortuzar, Capital Federal

REMAX Vincit
  • 43 m² Total
  • 45 años
  • 1 baño

Venta Local a la calle, Villa Ortuzar

Corredor responsable: fernando muñoz cucicba 6573 / pablo daniel vicente cmcpsi 6437 - contacto: fernando muñoz venta local a la calle con vidriera en colegiales- villa ortuzar. Posee: planta baja: entrada con vidriera medida de 3 x 5,75 con pisos de cerámica toilette planta sótano: medida de 4,80 x 4,93 con pisos de cerámica, en excelente condición. Expensas: $ 130.000.- La propiedad se encuentra en muy buen estado. El local esta ubicado en la av forest a una cuadra y media de la av los incas y a una cuadras de las av el cano y alvarez thomas. Medios de transportes: colectivos: 19, 44, 65, 76, 80, 90, 93, 140, 151, 176, 184. Rau s.R.L. No ejerce el corretaje inmobiliario. El presente sitio web es una plataforma en donde cada oficina inmobiliaria independiente que contrata los servicios re/max puede publicar las propiedades a su cargo. Cada oficina es de propiedad y gestión independiente, por lo que rau s.R.L. No interviene en los datos de la publicación, en la operación inmobiliaria, ni en la confección y/o firma del boleto de compraventa y/o escritura y/o contrato de alquiler. En cumplimiento de las leyes vigentes que regulan el corretaje inmobiliario, ley nacional 25.028, ley 22.802 de lealtad comercial, ley 24.240 de defensa al consumidor, las normas del código civil y comercial de la nación y constitucionales, los agentes/gestores no ejercen el corretaje inmobiliario. Todas las operaciones inmobiliarias son objeto de intermediación y conclusión por parte del corredor público inmobiliario colegiado a cargo de la publicación, cuyos datos se exhiben en la presente. La presente publicación describe las características esenciales del inmueble, debiéndose consultar al corredor público inmobiliario responsable de la operación por la eventual actualización de las medidas, descripciones arquitectónicas y funcionales, valores de expensas, servicios, impuestos, precios y demás información, cuyos valores son aproximados. El inmueble no es accesible para personas con discapacidades físicas. Comprá la casa que querés! No la que podés. Accedé a un préstamo por hasta el 30% del valor de esta propiedad. Simulá tu cuota en lendar

Contactar
1/16
Visto

0

USD 99.000

Ballivián 2200

Local en Venta en Villa Ortuzar, Capital Federal

REMAX Platino
  • 48 m² Total
  • A Estrenar
  • 1 baño

VENTA LOCAL COMERCIAL VILLA ORTUZAR APTO CAFETERIA

Corredor responsable: walter pascualini cpi 3763 / csi 5601 - contacto: hipólito federico sivila u´ltima oportunidad! Local comercial premium en venta – villa ortuzar ubicacio´n privilegiada: ballivia´n 2224, villa ortuzar exclusivo local comercial de 48 m2 en un moderno edificio de estilo doho, ideal para cafeteri´a o negocio de alto impacto. Con disen~o contempora´neo y especificaciones de primera calidad, este local esta´ listo para habilitacio´n y cuenta con caracteri´sticas u´nicas que lo hacen destacar: electricidad trifa´sica: perfecta para equipos de alta potencia. 2 ban~os: incluye ban~o adaptado para personas con discapacidad. Ventanales y puerta de entrada en blindex: del piso al techo, aportan luminosidad y elegancia. Vidriera de aprox. 6 metros: ma´xima visibilidad para atraer clientes. Espacio para heladeras: ideal para cafeteri´as o gastronomi´a. Preinstalacio´n para a/c: confort garantizado para clientes y empleados. Ubicado en la planta baja de un edificio exclusivo con solo 13 unidades funcionales, este local se beneficia de la vibrante vida de villa ortuzar, a pasos de todo lo que necesitas. La obra esta´ en su etapa final, ¡Listo para que pongas en marcha tu proyecto son~ado! Amenities del edificio que potencian el entorno: piscina y sola´rium en la azotea. Zona de parrillas para eventos. Lavadero moderno y bicicletero. ¡No dejes pasar esta oportunidad u´nica! Conta´ctanos hoy para ma´s detalles y asegura este espacio ideal para tu negocio en el corazo´n de villa ortuzar. Rau s.R.L. No ejerce el corretaje inmobiliario. El presente sitio web es una plataforma en donde cada oficina inmobiliaria independiente que contrata los servicios re/max puede publicar las propiedades a su cargo. Cada oficina es de propiedad y gestión independiente, por lo que rau s.R.L. No interviene en los datos de la publicación, en la operación inmobiliaria, ni en la confección y/o firma del boleto de compraventa y/o escritura y/o contrato de alquiler. En cumplimiento de las leyes vigentes que regulan el corretaje inmobiliario, ley nacional 25.028, ley 22.802 de lealtad comercial, ley 24.240 de defensa al consumidor, las normas del código civil y comercial de la nación y constitucionales, los agentes/gestores no ejercen el corretaje inmobiliario. Todas las operaciones inmobiliarias son objeto de intermediación y conclusión por parte del corredor público inmobiliario colegiado a cargo de la publicación, cuyos datos se exhiben en la presente. La presente publicación describe las características esenciales del inmueble, debiéndose consultar al corredor público inmobiliario responsable de la operación por la eventual actualización de las medidas, descripciones arquitectónicas y funcionales, valores de expensas, servicios, impuestos, precios y demás información, cuyos valores son aproximados. El inmueble es accesible para personas con discapacidades físicas. Comprá la casa que querés! No la que podés. Accedé a un préstamo por hasta el 30% del valor de esta propiedad. Simulá tu cuota en lendar

Contactar