(1) (1)
  • Temperley

Venta

Local

Precio

Buscar solo avisos en moneda:

Dorm|Amb

Más filtros Más filtros

Características

Superficie total

Nombre de calle y altura

Expensas

$

Tipo de urbanización

Plantas

Servicios

Tipos de ambientes

Estado de obra

Tipo de anunciante

48 Locales en Venta en Temperley

1/48
Visto

70

USD 165.000

Cerrito 2500

Local en Venta en Temperley, Lomas de Zamora

REMAX Premium III
  • 362 m² Total
  • 43 años

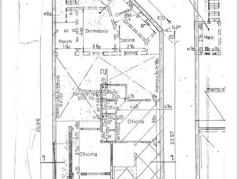
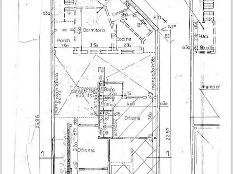
LOCAL COMERCIAL Y 2 PH EN BLOQUE TEMPERLEY

Corredor responsable: ariel champanier cucicba 4330 / andrea berre cmcpsi 6763 - contacto: juan martín di salvo excelente oportunidad en temperley! Local a la calle ubicado sobre la calle cerrito, en zona de gran concentración comercial y accesibilidad. La propiedad cuenta además con dos phs para vivienda, uno de ellos para habitar y el otro a reciclar, ambos de excelente cantidad constructiva. Lss medidas publicadas son estimativas, las reales saldrán de la escritura traslativa de dominio el dia de la firma de la misma. Rau s.R.L. No ejerce el corretaje inmobiliario. El presente sitio web es una plataforma en donde cada oficina inmobiliaria independiente que contrata los servicios re/max puede publicar las propiedades a su cargo. Cada oficina es de propiedad y gestión independiente, por lo que rau s.R.L. No interviene en los datos de la publicación, en la operación inmobiliaria, ni en la confección y/o firma del boleto de compraventa y/o escritura y/o contrato de alquiler. En cumplimiento de las leyes vigentes que regulan el corretaje inmobiliario, ley nacional 25.028, ley 22.802 de lealtad comercial, ley 24.240 de defensa al consumidor, las normas del código civil y comercial de la nación y constitucionales, los agentes/gestores no ejercen el corretaje inmobiliario. Todas las operaciones inmobiliarias son objeto de intermediación y conclusión por parte del corredor público inmobiliario colegiado a cargo de la publicación, cuyos datos se exhiben en la presente. La presente publicación describe las características esenciales del inmueble, debiéndose consultar al corredor público inmobiliario responsable de la operación por la eventual actualización de las medidas, descripciones arquitectónicas y funcionales, valores de expensas, servicios, impuestos, precios y demás información, cuyos valores son aproximados. Comprá la casa que querés! No la que podés. Accedé a un préstamo por hasta el 30% del valor de esta propiedad. Simulá tu cuota en lendar

Contactar
1/21
Visto

2

USD 280.000

Hipólito Yrigoyen 10300

Local en Venta en Temperley, Lomas de Zamora

CASTINEIRAS PROPIEDADES
  • Via Púb.
  • 960 m² Total
  • 2 plantas

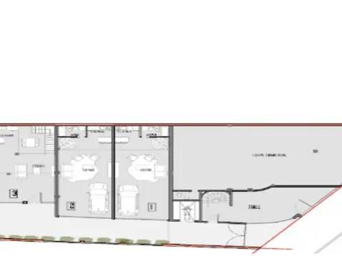
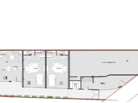
Venta - 2 LOCALES al FRENTE y SALON de EVENTOS ( casa 2 plantas ) - LOTE de 960 m2 - Sobre Yrigoyen

Atención inversores - inmueble apto para varios destinos >> dos locales al frente y casa en 2 plantas ( se utilizo como salon de fiesta ) sobre amplio lote << consta de: casa 282.58 m2 ( planta baja 206.56 m2 - planta primer piso 76.02 m2 ) techo de losa. Local 1 80.14 m2 ( planta baja 41.67 m2 más sótano 38,47 m2 ) techo de losa. Local 2 53.31 m2 ( planta baja 29.37 m2 más sótano 23.94 m2 ) techo de losa. Total superficie cubierta: 416.03 m2 estado: muy bueno. Lote: irregular >> frente: 16.25 fondo: 59 mts aprox. Total: 960 m2 servicios: todos ( luz, gas, agua y cloacas ) comodidades y medidas: en planta baja: local 1: ( 4.58 x 10 x 8.23 x 4.22 ) + sótano local 2: ( 3.49 x 8.11 x 6.75 x 3.22 ) + sótano casa: entrada de auto: ( 7.50 x 13 ) + entrada pasante ( ancho 2.50 mts ) cocina / comedor: ( 6.40 x 3.50 ) integrados 1) living / comedor ( 10.80 x 3.80 ) 2) salón ( 3.80 x 7.30 ) 3) salón ( 5.62 x 4.10 ) baño caballeros: ( 3.65 x 1.25 ) baño damas: ( 2.00 x 1.55 ) baño discapacitados: ( 1.30 x 2.48 ) amplio fondo libre nota: a continuación de la casa existe un amplia carpa estructural para eventos especiales. En primer piso: ( casa ) amplio balcón al frente dormitorio 1: ( 4.30 x 3.95 ) dormitorio 2: ( 3.55 x 3.14 ) dormitorio 3: ( 4.30 x 4.48 ) con baño en suite baño: ( 1.95 x 2.85 ) hall de distribución: ( 1.26 x 1.50 ) terraza: ( 4.29 x 4.24 ) nota: la casa y la carpa estructural se utilizó para eventos ( cumpleaños, casamientos, reuniones empresariales, etc. ) Para emprendimientos inmobiliarios: fos 60 % - fot 180 % - altura 8.40 mts.total construido segun lote y disposiciones municipales: 1.728 m2 se pueden construir 3 plantas de 576 m2 cada una. Venta directa - ( acepta inmuebles en parte de pago ) ubicacion: a 5 cuadras del hipermercado coto; a 7 cuadras de la estación de trenes de temperley; varios medios de transporte en la zona.

Contactar
1/13
Visto

1

USD 84.900

Cangallo al 400

Local en Venta en Temperley, Lomas de Zamora

  • 1 planta
  • A Estrenar
  • 1 baño

Local en Temperley, local esquina, local a estrenar, apto credito

Apto credito se vende con renta hasta febrero 2029 - cafeteria de especialidad ($700.000.- Feb 2026, con ajuste trimestral por ipc) local comercial en venta a estrenar esquina cangallo y solís, temperley ubicación estratégica para tu próximo emprendimiento! Este local comercial de 47 m2 se encuentra en una esquina clave de temperley, sobre cangallo 402, con frente también sobre la calle solís, lo que le brinda excelente visibilidad por ambas calles. Características destacadas: frente vidriado en esquina: excelente exposición y luz natural salón principal amplio: ideal para atención al público o showroom baño privado persiana metálica de seguridad ubicado en una zona con buena circulación peatonal y vehicular, roubicado en una zona con buena circulación peatonal y vehicular, rodeado de comercios de barrio, escuelas y paradas de colectivo. Perfecto para minimercado, local gastronómico, estética, oficina profesional o local de servicios. Contactame hoy mismo y coordiná tu visita! Los metros son aproximados, comercializado por david blanco con matrícula del c.U.C.I.C.B.A. N 8573, tomo 2, folio 20 y matricula cmo n2884 tomo 6, folio 62, adherida al sistema coldwell banker lion team. C.U.I.T.: -7, av. Triunvirato 5177 ciudad autónoma de buenos aires y botticelli 4727, hurlingham, provincia de buenos aires. ? 2025 coldwell banker. Todos los derechos reservados. Coldwell banker y los logotipos de coldwell banker son marcas de servicio de propiedad de coldwell banker real estate llc. El sistema coldwell banker ? Está compuesto por oficinas propias de propiedad de una subsidiaria de anywhere advisors llc y por oficinas adheridas al sistema coldwell banker que son de propiedad y operación independientes. En cumplimiento con la normativa vigente, los asistentes no ejercen el corretaje inmobiliario. La intermediación y conclusión de las operaciones inmobiliarias es desarrollada por martilleros y corredores públicos. Esta oficina inmobiliaria se encuentra a cargo de david blanco con matrícula del c.U.C.I.C.B.A. N 8573, tomo 2, folio 20 y matricula - cmo n2884 tomo 6, folio 62, adherida al sistema coldwell banker lion team. C.U.I.T.: -7, av. Triunvirato 5177, piso 5, villa urquiza, ciudad autónoma de&amp;nbsp;buenos&amp;nbsp;aires.

Contactar