(1) (1)
  • Palermo

Venta

Local

Precio

Buscar solo avisos en moneda:

Dorm|Amb

Más filtros Más filtros

Superficie total

Nombre de calle y altura

Expensas

$

Tipo de urbanización

Plantas

Estado de obra

Tipo de anunciante

2 Locales en Venta en Palermo

1/2
Visto

0

USD 70.991 + $3.000 expensas

Maldonado 1400

Local en Venta en Palermo, Montevideo

REMAX Focus
  • 23 m² Total
  • A Estrenar
  • 1 baño

VENTA LOCAL COMERCIAL EN PALERMO A LA CALLE

Corredor responsable: - contacto: silvana de la fuente se vende local comercial a estrenar – pronta entrega, abril 2026 maldonado 1494 | barrio palermo local comercial a estrenar ubicado en planta baja, sobre calle maldonado, en el corazón del barrio palermo, a pasos de 18 de julio y muy próximo a la rambla. Zona de alto tránsito peatonal y vehicular, en constante crecimiento, con fuerte presencia de propuestas gastronómicas, culturales y residenciales. El local cuenta con 22,6 m² de área propia, ideal para comercio de cercanía, estudio profesional, oficina, showroom o emprendimiento gastronómico de pequeña escala. Ambiente funcional, luminoso y bien distribuido, con vidriera al frente que brinda excelente visibilidad y presencia comercial. Dispone de baño propio, pisos de fácil mantenimiento y buenas terminaciones acordes a un proyecto moderno. Forma parte de un edificio de diseño contemporáneo, con acceso cuidado y entorno consolidado, lo que potencia su valor comercial y de renta. Características destacadas: -local a estrenar -planta baja con acceso directo desde la calle -muy buena visibilidad -ideal para múltiples rubros -edificio moderno en zona en expansión excelente oportunidad tanto para uso propio como para inversión, en una ubicación estratégica y con alto potencial de valorización. Gastos de conexión 4% coordina tu visita. Compartimos con todos los colegas. Comisión inmobiliaria 3% más iva. Cada oficina es de propiedad, gestión y desarrollo independiente la presente publicación describe las características esenciales del inmueble, debiéndose consultar al responsable de la operación por la eventual actualización de las medidas, descripciones arquitectónicas y funcionales, servicios, impuestos, precios y demás información, cuyos valores son aproximados.

Contactar
1/6
Visto

0

USD 350.000

Constituyente 1700

Local en Venta en Palermo, Montevideo

REMAX Focus
  • 86 m² Total
  • 1 año
  • 1 baño

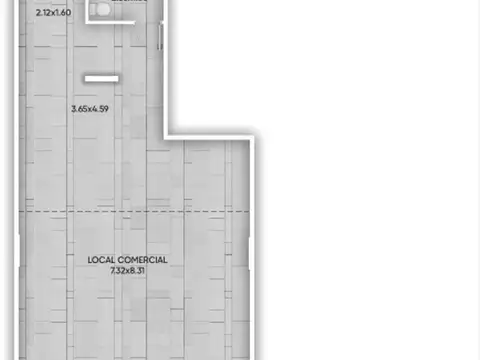
VENTA LOCAL COMERCIAL 86m2, A ESTRENAR EN PALERMO

Corredor responsable: - contacto: yennifer bragunde local comercial a estrenar en diciembre de 2025 en palermo – constituyente entre magallanes y gaboto excelente oportunidad de inversión en pleno barrio palermo, sobre la calle constituyente, una zona dinámica y muy concurrida de montevideo. Se trata de un local comercial en planta baja de 85,7 m², ubicado en un moderno edificio en desarrollo que se estrena en diciembre de este año. El espacio ofrece gran visibilidad gracias a su ubicación estratégica, con flujo constante de personas y rodeado de servicios, comercios y transporte. Por sus características, resulta ideal para diversos rubros como: minimarket, cafetería, local de ropa, accesorios, y o emprendimientos comerciales en general. Además, se presenta como una excelente opción para inversión, con la posibilidad de obtener muy buena rentabilidad a través del alquiler en una de las zonas con mayor movimiento de la ciudad. Este proyecto se beneficia de la ley 18.795 de vivienda promovida, lo que implica una serie de exoneraciones fiscales, como la del impuesto a las transmisiones patrimoniales (itp), el impuesto a la renta de actividades económicas (irae/irpf/irnr) sobre las rentas generadas por alquileres durante 10 años, y la exoneración del impuesto al patrimonio (ip) durante el mismo período. Los gastos de ocupación corresponden al 4%. Compartimos con todos los colegas comision inmobiliaria: 3% mas iva cada oficina es de propiedad, gestión y desarrollo independiente la presente publicación describe las características esenciales del inmueble, debiéndose consultar al responsable de la operación por la eventual actualización de las medidas, descripciones arquitectónicas y funcionales, servicios, impuestos, precios y demás información, cuyos valores son aproximados.

Contactar