(1) (1)
  • Martinez Santa Fe / Fleming

Alquiler

Local

Precio

Buscar solo avisos en moneda:

Dorm|Amb

Más filtros Más filtros

Características

Superficie total

Nombre de calle y altura

Expensas

$

Tipo de urbanización

Plantas

Servicios

Tipos de ambientes

Tipo de anunciante

6 Locales en Alquiler en Martinez Santa Fe / Fleming, Martinez

1/31
Visto

0

Consultar precio

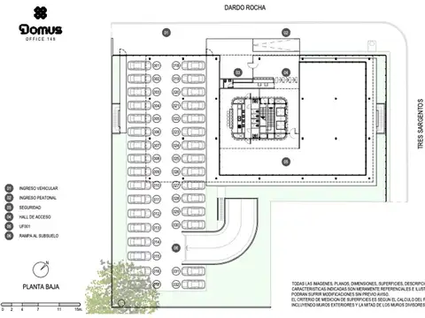
Dardo Rocha 100

Local en Alquiler en Martinez Santa Fe / Fleming, Martinez

  • 500 m² Total
  • A Estrenar
  • 2 baños

ALQUILER LOCAL COMERCIAL/OFICINAS MARTINEZ

Corredor responsable: vanesa karina mayo gonzalez cmcpsi 6468 / cucicba 8074 - contacto: ruben dario pedernera local comercial / oficinas premium en alquiler – martínez exclusivo local en planta baja de 500 m² cubiertos, ubicado sobre dardo rocha al 100, martínez, en una de las zonas más buscadas y de mayor proyección comercial de zona norte. Se alquila completo o metros cuadrados subdivididos, consultar disponibilidad- el inmueble forma parte de un desarrollo de última generación, con diseño moderno y estándar premium. Se entrega a gris, ideal para que el futuro inquilino lo interiorice y adapte completamente a su identidad, rubro o necesidad operativa. - Entrega estimada: abril 2026 - posibilidad de meses de gracia hasta la finalización de la obra y puesta en funcionamiento. Características principales: • planta baja • 500 m² cubiertos • entrega a gris • baños de damas y caballeros • cocina eléctrica con isla • depósito • 23 cocheras (semi cubiertas y descubiertas) incluidas • espacios verdes y áreas de recreación en el complejo • seguridad 24hs • edificio moderno, categoría premium • ideal para empresas, oficinas corporativas, showrooms o servicios de alto nivel - expensas estimadas: $1.900.000 - contrato de alquiler: a partir de 3 años. Una propuesta ideal para compañías que buscan ubicación estratégica, diseño contemporáneo y flexibilidad de adaptación, en pleno corazón de martínez. Rau s.R.L. No ejerce el corretaje inmobiliario. El presente sitio web es una plataforma en donde cada oficina inmobiliaria independiente que contrata los servicios re/max puede publicar las propiedades a su cargo. Cada oficina es de propiedad y gestión independiente, por lo que rau s.R.L. No interviene en los datos de la publicación, en la operación inmobiliaria, ni en la confección y/o firma del boleto de compraventa y/o escritura y/o contrato de alquiler. En cumplimiento de las leyes vigentes que regulan el corretaje inmobiliario, ley nacional 25.028, ley 22.802 de lealtad comercial, ley 24.240 de defensa al consumidor, las normas del código civil y comercial de la nación y constitucionales, los agentes/gestores no ejercen el corretaje inmobiliario. Todas las operaciones inmobiliarias son objeto de intermediación y conclusión por parte del corredor público inmobiliario colegiado a cargo de la publicación, cuyos datos se exhiben en la presente. La presente publicación describe las características esenciales del inmueble, debiéndose consultar al corredor público inmobiliario responsable de la operación por la eventual actualización de las medidas, descripciones arquitectónicas y funcionales, valores de expensas, servicios, impuestos, precios y demás información, cuyos valores son aproximados.

Contactar