(1) (1)
  • Castelar

Operación

Terreno

Precio

Buscar solo avisos en moneda:

Dorm|Amb

Más filtros Más filtros

Características

Superficie total

Nombre de calle y altura

Tipo de urbanización

Fot

Servicios

Tipo de anunciante

122 Terrenos en Castelar

1/39
Visto

65

USD 80.000

Maestras Gachet 3741

Terreno en Venta en Castelar Sur, Castelar

ALVAREZ PROPIEDADES
  • 658 m² Total
  • A Refac.
  • 1

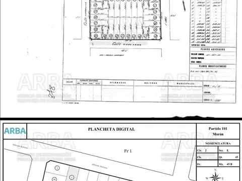
En venta terreno lote Castelar Sur semi industrial

En venta amplio terreno en castelar sur zonificación semi industrial el lote consta de dos construcciones a refaccionar y parcialmente demolida. (Una ubicada al frente y otra sobre lateral) incluyen dos dormitorios, living y galería. La cocina y el baño fueron demolidos. Nomenclatura catastral: partido: 101 (morón) circunscripción: 2 sección: e quinta: 63 manzana: 63a parcela: 13a oportunidad de inversión tanto para proyectos comerciales, depósitos, talleres o emprendimientos mixtos. ¡Llámenos para conocer más en detalle esta propiedad! "Las medidas, superficies y expensas consignadas en la presente publicación son aproximadas. Los datos definitivos son los que surgirán del título de la propiedad y de los comprobantes respaldatorios. Venta supeditada al cumplimiento por parte del propietario de los requisitos de la resolución general no 2371 de la afip (pedido de coti). En cumplimiento de la leyes provinciales vigentes que regulan el corretaje inmobiliario, ley nacional 25.028, ley 22.802 de lealtad comercial, ley 24.240 de defensa al consumidor, las normas del código civil y comercial de la nación y constitucionales, los agentes/gestores no ejercen el corretaje inmobiliario. Todas las operaciones inmobiliarias son objeto de intermediación y conclusión por parte de los martilleros y corredores colegiados, cuyos datos se exhiben debajo del nombre de la inmobiliaria. Adriana alvarez cmcpdjm 2944 camacuá 303 - oficina 503 ituzaingó- bs. As.

Contactar