(1) (1)
  • Munro

Venta

Negocio Especial

Precio

Buscar solo avisos en moneda:

Dorm|Amb

Más filtros Más filtros

Nombre de calle y altura

Tipo de anunciante

14 Negocios Especiales en Venta en Munro

1/30
Visto

100

USD 950.000

Armenia al 3000

Negocio especial en Venta en Munro, Vicente Lopez

LUCIA CORTEZ NEGOCIOS INMOBILIARIOS

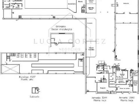
Nave Industrial en venta en Munro

Importante complejo industrial en venta munro, vicente lópez frente a dos calles: armenia e ituzaingó superficie total: 1840m2 en 3 parcelas integradas ideal para industrias, centros logísticos o desarrollos mixtos 23 de frente por calle armenia, 42 de fondo y 8,66 de frente por calle ituzaingó. Posibilidad de vender en block con lote continuo con espacio para 30 autos. (10 x 42) edificio industrial estructurado en tres parcelas, con frentes a las calles armenia (acceso principal) e ituzaingó. Cuenta con ingreso peatonal y vehicular desde armenia y un segundo acceso vehicular desde ituzaingó. Superficie de terreno: 1.311,45 m2 superficie cubierta total: 1.840 m2 área administrativa: en planta baja: recepción, oficina de ventas con baño, escalera a planta alta, vestuarios y sanitarios diferenciados para personal masculino, femenino y supervisores. También cuenta con cámara de edenor con acceso independiente desde la calle. En planta alta: 9 oficinas de distintos tamaños, incluyendo un despacho presidencial con vista a la planta industrial y sanitarios para damas y caballeros. Área industrial: nave izquierda con doble altura, destinada a inyección y envasado de tarugos de nylon. Nave paralela para fabricación de tornillería metálica, con área de matricería al fondo. En planta alta de la nave izquierda: 8 oficinas adicionales conectadas por pasarela a las del frente. Sector descubierto interno para esparcimiento y usos técnicos. Acceso por ituzaingó 4537: ingreso vehicular, oficina de control, sanitario y sector de depósito en planta baja. En planta alta, depósito adicional con conexión directa al contrafrente del área de inyección. Excelente ubicación en zona industrial consolidada, con muy buenos accesos a panamericana, av. Mitre y av. General paz. Zonificación i1 fos 0.6 fot 1.2 oportunidad única para desarrolladores o empresas que requieran gran superficie operativa y estratégica ubicación. La información contenida en esta publicación (medidas, superficies, descripciones, valores, gastos e impuestos) es aproximada, referencial y está sujeta a verificación y/o actualización por parte del propietario. Las imágenes son de carácter ilustrativo y no constituyen documentación contractual. Disponibilidad y precios: el valor indicado puede ser modificado sin previo aviso y la propiedad permanecerá disponible hasta tanto un interesado manifieste su voluntad de compra/locación mediante reserva formal o boleto/contrato correspondiente. Martillero interviniente: lucia cortez - cucicba 9516 cmcpsi 6196

Contactar
1/46
Visto

24

USD 3.200.000

Esteban Echeverría 4230

Negocio especial en Venta en Munro, Vicente Lopez

Martin Fonseca Propiedades

Edificio corporativo premium de 1225m2, en colectora de Au. Panamericana en Munro, altura Unicenter.

"Propiedad exclusiva de mf vault. Una nueva forma de habitar el lujo". Disponible en venta y alquiler (en este caso más iva). Espectacular edificio corporativo sobre colectora de au. Panamericana en munro. La ubicación es inmejorable, altura unicenter, a metros de los puentes de paraná y debenedetti. Se encuentra desarrollado en cuatro plantas, son tres plantas de oficinas, sum, subsuelo de cocheras, jardín y terraza, no le falta nada! La planta baja es totalmente libre con muy buena vidriera, dos baños, sector para armar una cocina y tiene salida a un estupendo jardín. A continuación, tenemos un entrepiso grande que balconea hacia la planta baja. El segundo piso también es planta libre, con dos baños, sector para armar una cocina y tiene salida a un terraza ideal para colocar una parrilla. En el tercer piso encontramos el sum, un baño y una imponente terraza con vista abierta al frente y al contrafrente. Sala de máquinas. Los ventanales son de doble vidrio hermético tonalizado. El subsuelo tiene espacio para 13 autos cómodos y cuenta con bomba automática para expulsar el agua. Las superficies se distribuyen de la siguiente manera: subsuelo: 422m2 planta baja local comercial: 271m2 1er piso: 205m2 2do piso: 266m2 3er piso: 6m2 superficie total cubierta: 1225m2 entre las características técnicas encontramos: grupo electrógeno 25 kva para servicios generales con transferencia automática. Oficinas equipadas con pisoductos de 4 vías y solados de porcelanato. Aire acondicionado marca carrier bajo silueta (pb 12tr 1p 18tr 2p 18tr). Cielorrasos desmontables en todas las superficies. Ascensor de 4 paradas cabina y puertas en acero inoxidable. Luces vigía, de emergencia y de salidas, puertas ignifugas f60 en sectores escaleras. Terraza accesible. Frentes vidriados con dvh y stopsol. Tanque cisterna, tanques de reserva, bomba presurizadora y de achique. Cubierta verde con riego por aspersión en sector posterior en planta baja. Portón automático para cocheras zócalos empotrados, montante rack, hidrantes, etc.

Contactar
1/30
Visto

0

USD 460.000

Diaz Velez al 4600 entre Maquinista Carregal y Sargento Cabral

Negocio especial en Venta en Munro, Vicente Lopez

Dic Propiedades SA

Depósito - Munro

Venta con renta. Depósito, galpón, industria, oficinas con excelentes espacios de trabajo desarrollado en tres plantas con un total de 560mts aproximadamente, de los cuales 524mts son cubiertos. Ubicado en un punto estratégico de zona norte a solo tres cuadras de panamericana y a dos de paraná. Próximo al shopping unicenter, metalúrgicas, laboratorios, empresas de repuestos, todo tipo de comercios, oficinas, bancos y un punto industrial inmejorable. Cuenta con un muy buen frente ideal para una excelente imagen corporativa. Se puede trabajar en dos sectores bien diagramados. Uno de oficinas al frente con entrada independiente y otro ideal para deposito, industria, logística con entrada de vehículos tipo camionetas, montacargas con llegada hasta hasta las dos plantas, baños, vestuarios en ambas plantas. En la planta baja se encuentras las oficinas, el acceso para vehículo, vestuarios y área de trabajo. En el primer piso un gran espacio de trabajo o depósito con muy buenas dimensiones y oficinas. En el segundo piso otra gran sala de trabajo, cocina, comedor y más comodidades para archivos o sectores de usos múltiples. La ubicación es inmejorable con accesos rápidos a zona norte y caba. Cerca de todo. Visitalo, está alquilado y cuenta con una buena renta. No te lo podés perder. "Se deja constancia que los m2 y la antiguedad son aproximados, al igual que las medidas parciales y el valor consignado de las expensas mensuales (en caso que corresponda pago de expensas) están sujetos a verificación y/o ajustes, el precio del inmueble puede ser modificado sin previo aviso. En el caso de tratarse de un inmueble en construcción los detalles de terminación y la fecha de entrega están sujetos a revisión. Fotos de carácter no contractual. Las unidades publicadas están sujetas a disponibilidad. Dic propiedades s.A. Actúa solamente en carácter de comercializadora de los inmuebles ofrecidos. En caso de tratarse de un terreno, la información de m2 construibles es orientativa, debiendo ser constatada por el interesado." Código de propiedad: dst4132606 javier del coro igarzabal cmcpsi mat no 4499 maría amparo coello cuciba mat n 5147 dic propiedades s.A. -

Contactar
1/28
Visto

0

USD 460.000

Diaz Velez al 4600 entre Maquinista Carregal y Sargento Cabral

Negocio especial en Venta en Munro, Vicente Lopez

Dic Propiedades SA

Nave Industrial - Munro

Venta con renta. Depósito, galpón, industria, oficinas con excelentes espacios de trabajo desarrollado en tres plantas con un total de 560mts aproximadamente, de los cuales 524mts son cubiertos. Ubicado en un punto estratégico de zona norte a solo tres cuadras de panamericana y a dos de paraná. Próximo al shopping unicenter, metalúrgicas, laboratorios, empresas de repuestos, todo tipo de comercios, oficinas, bancos y un punto industrial inmejorable. Cuenta con un muy buen frente ideal para una excelente imagen corporativa. Se puede trabajar en dos sectores bien diagramados. Uno de oficinas al frente con entrada independiente y otro ideal para deposito, industria, logística con entrada de vehículos tipo camionetas, montacargas con llegada hasta hasta las dos plantas, baños, vestuarios en ambas plantas. En la planta baja se encuentras las oficinas, el acceso para vehículo, vestuarios y área de trabajo. En el primer piso un gran espacio de trabajo o depósito con muy buenas dimensiones y oficinas. En el segundo piso otra gran sala de trabajo, cocina, comedor y más comodidades para archivos o sectores de usos múltiples. La ubicación es inmejorable con accesos rápidos a zona norte y caba. Cerca de todo. Visitalo, está ocupado por inquilinos con buena renta. No te lo podés perder. "Se deja constancia que los m2 y la antiguedad son aproximados, al igual que las medidas parciales y el valor consignado de las expensas mensuales (en caso que corresponda pago de expensas) están sujetos a verificación y/o ajustes, el precio del inmueble puede ser modificado sin previo aviso. En el caso de tratarse de un inmueble en construcción los detalles de terminación y la fecha de entrega están sujetos a revisión. Fotos de carácter no contractual. Las unidades publicadas están sujetas a disponibilidad. Dic propiedades s.A. Actúa solamente en carácter de comercializadora de los inmuebles ofrecidos. En caso de tratarse de un terreno, la información de m2 construibles es orientativa, debiendo ser constatada por el interesado." Código de propiedad: dot8288 st4132784 javier del coro igarzabal cmcpsi mat no 4499 maría amparo coello cuciba mat n 5147 dic propiedades s.A. -

Contactar
1/26
Visto

0

USD 1.800.000

AV. BARTOLOMÉ MITRE al 3800

Negocio especial en Venta en Munro, Vicente Lopez

Zipcode SA

Nave Industrial en Munro

Edificio industrial / depósito en venta esquina estratégica sobre av. Mitre, munro se presenta esta imponente planta industrial ubicada sobre av. Mitre esquina comandante luis piedrabuena, en el corazón industrial y comercial de munro, a solo 400 metros de panamericana, rodeada de importantes empresas y con excelente conectividad para distribución y logística. Descripción general: - desarrollado en tres niveles: planta baja, primer y segundo piso. - Terreno en esquina de 778 m2 con 2.187 m2 cubiertos totales. - Construcción sólida de hormigón armado, con pisos de alta resistencia en muy buen estado. - Plantas libres en los niveles superiores, con divisiones internas de durlock removibles que facilitan su adaptación a distintos usos industriales, logísticos o de oficinas. - Ascensor montacargas que conecta los tres pisos, ideal para flujo eficiente de materiales y productos. - Dos accesos vehiculares y dos peatonales, con portones aptos para camiones. - Oficina de seguridad y baños en planta baja. - Baños y vestuarios para personal en el primer piso. - Cocina amplia y comedor para personal en el segundo piso, totalmente equipada y con ventilación natural. - Sistema completo de red contra incendios con bomba y reserva, visible en sala técnica (ver fotos). - Excelente luminosidad natural en todos los niveles gracias a su ubicación en esquina y ventanales perimetrales. Servicios e instalaciones: - energía trifásica (fuerza motriz) - agua corriente, gas natural y cloacas - red contra incendios activa - estructura portante de hormigón armado con techos de losa de gran altura destinos ideales: empresas de logística, distribución, laboratorios, industria liviana, textil, tecnología o como edificio corporativo con showroom y depósito integrado, maximizando su ubicación institucional sobre av. Mitre y su potencial operativo por zonificación e infraestructura. Ubicación estratégica: rápido acceso a panamericana y principales arterias de zona norte, ideal para distribución regional y operaciones con flota pesada. Estado general: excelente conservación y mantenimiento, listo para operar sin necesidad de refacciones estructurales. En cumplimiento de la ley 5115, se informa que el inmueble es accesible para personas con movilidad reducida o discapacidad física. Corredor interviniente: milagros sarachaga cucicba 7799 paolo menghi cucicba 9171 cmcpdjlm 1005 la tasación, intermediación y la conclusión de las operaciones sobre esta propiedad son actividades exclusivas de este corredor matriculado, conforme las previsiones de la ley 20.266, la ley caba 2340, la ley provincial 10.973 y sus modif. Y las normas reglamentarias dictadas por los colegios departamentales.

Contactar
1/38
Visto

0

USD 3.200.000

Estéban Echeverria al 4200

Negocio especial en Venta en Munro, Vicente Lopez

ADRIAN MERCADO REAL ESTATE

Excelente edificio a estrenar - 1200 m2 - 15 cocheras - Local comercial Oficinas.

Excelente edificio a estrenar, que se distingue por su calidad constructiva. Ingreso peatonal y vehicular mediante rampa y estacionamiento de cortesia. Cuenta con un local comercial en planta baja en doble altura con el primer piso el cual tiene conexión mediante una escalera interna, baños generales y para discapacitados, patio verde. Cuenta con la posibilidad de acceso vehicular directo al local, ideal concesionaria. En los pisos superiores (1er y 2do piso) cuenta con oficinas en planta libre con dos baños. En el piso 3 cuenta con un sum y salida a la terraza. Cuenta con un equipo de aire acondicionado centralizado frio/calor, un grupo electrógeno de 25 kva y un moderno ascensor automático con capacidad para 6 personas. En el subsuelo cuenta con capacidad para 15 cocheras. Superficies: subsuelo: 422 m2. Pb. Local comercial: 271 m2. 1 piso (oficinas):205 m2. 2 piso (oficinas):266 m2. Sum: 61 m2. Las medidas son aproximadas y en carácter orientativo. Imágenes ilustrativas. Los valores no incluyen el impuesto al valor agregado. Servicios inmobiliarios: alquiler 5% sobre el monto total del contrato, más iva. Venta. 4% sobre el monto de venta, más iva. Los datos contenidos en esta publicación (precios, medidas, superficies, imágenes, etc.) Sólo se proporcionan con fines informativos y no generan ninguna obligación contractual para adrián mercado gestión inmobiliaria s.A. Adrián mercado real estate no asume responsabilidad derivada del uso incorrecto, inapropiado o ilícito de la información publicada. Adrián mercado real estate no garantiza explícita ni implícitamente la exactitud de la información publicada. Toda la información deberá ser confirmada oportunamente con los correspondientes documentos registrales. La información contenida en la presente publicación está sujeta a modificaciones sin previo aviso. Se prohíbe cualquier reproducción total o parcial, por cualquier medio, sin la previa autorización de adrián mercado real estate. Cucicba mat. No 5604 leandro mercado | cmcpsi mat. No 5712 adrián mercado. Los datos contenidos en esta publicación (precios, medidas, superficies, imágenes, etc.) Sólo se proporcionan con fines informativos y no generan ninguna obligación contractual para adrián mercado gestión inmobiliaria s.A. Adrián mercado real estate no asume responsabilidad derivada del uso incorrecto, inapropiado o ilícito de la información publicada. Adrián mercado real estate no garantiza explícita ni implícitamente la exactitud de la información publicada. Toda la información deberá ser confirmada oportunamente con los correspondientes documentos registrales. La información contenida en la presente publicación está sujeta a modificaciones sin previo aviso. Se prohíbe cualquier reproducción total o parcial, por cualquier medio, sin la previa autorización de adrián mercado real estate. Cucicba mat. No 5604 leandro mercado | cmcpsi mat. No 5712 adrián mercado

Contactar