(1) (1)
  • General San Martin

Alquiler

Local

Precio

Buscar solo avisos en moneda:

Dorm|Amb

Más filtros Más filtros

Características

Superficie total

Nombre de calle y altura

Expensas

$

Tipo de urbanización

Plantas

Servicios

Tipos de ambientes

Tipo de anunciante

52 Locales en Alquiler en General San Martin

1/10
Visto

400

USD 2.700

Av. 101 Dr. Ricardo Balbin al 4200

Local en Alquiler en General San Martin, Buenos Aires

NARVAEZ
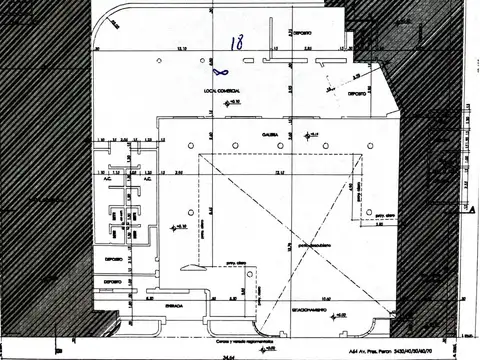
  • 735 m² Total
  • 30 años

Local en Ruta 8 - San Martin

Local con depósito en venta y alquiler en san martín! Ubicado en av. 101 dr. Ricardo balbín 4239 (ex ruta 8), con salida a calle trasera lynch pueyrredon, este inmueble ofrece una combinación de local comercial y depósito, para tu negocio en una ubicación privilegiada de alto tránsito vehicular y peatonal. Características destacadas: 735,60 m2 totales, que incluyen un amplio depósito y área comercial. 24 metros de vidriera sobre la ex ruta 8, brindando una exposición inigualable para tu marca o producto. Doble acceso: entrada principal sobre la avenida para clientes. Salida a calle lynch pueyrredón, ideal para ingreso y egreso de mercadería. Excelente distribución y funcionalidad para múltiples rubros. Fortalezas de la ubicación: zona comercial consolidada, con alto flujo de personas y vehículos. Cercanía al jumbo san martín, liceo militar de general san martin y al hospital interzonal general de agudos (castex). Este local es para combinar atención al público con almacenamiento logístico, todo en un mismo lugar y en una ubicación estratégica. No dejes pasar esta oportunidad única! Contáctanos para más información. Casa central san isidro tel: +54 / whatsapp: +54 9 primera junta 524 esq. Av. Del libertador, buenos aires, argentina. Sucursal tigre tel / whatsapp: +54 9 calle del caminante 30, edificio puerta norte 2, of 424, tigre, buenos aires, argentina.

Contactar