-
Local
-
228 m² Total
-
A Estrenar
VENTA LOCAL COMERCIAL EN SAN TELMO 228M2
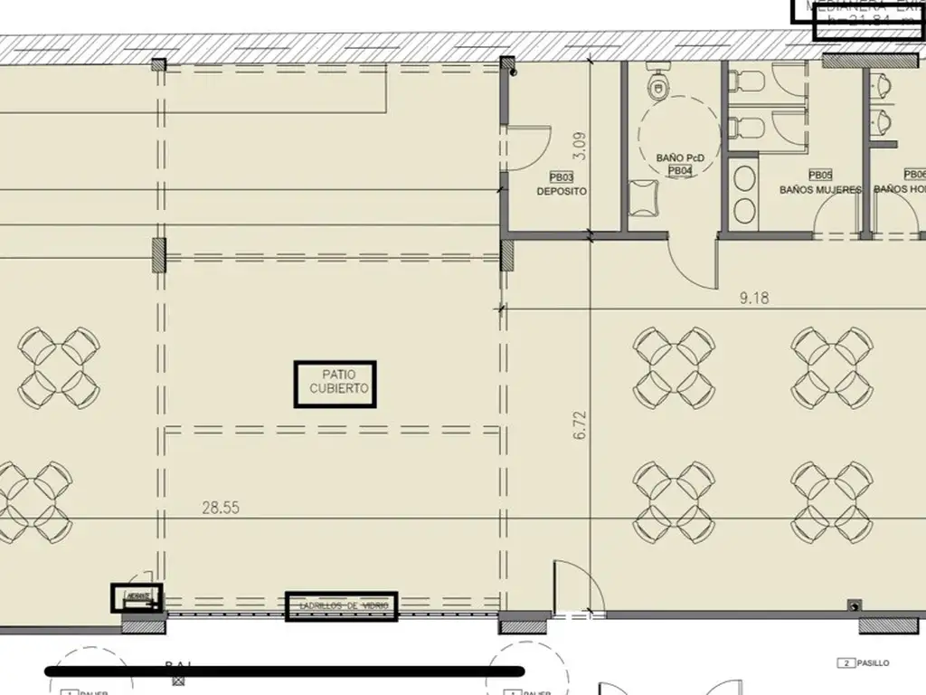
VENTA Local Comercial 228 m2 San Telmo
Ubicado sobre Bolívar al 200, desarrollo de categoría con excelentes terminaciones y calidad constructiva.
El local cuenta con frente vidriado, muy buena exposición y luz natural, tres baños, depósito y espacios amplios fáciles de adaptar a distintos usos.
El edificio combina diseño contemporáneo con materiales de primera línea, en una de las zonas más atractivas de San Telmo, a metros de Plaza Dorrego, Av. Belgrano y Puerto Madero.
Zona en pleno crecimiento, rodeada de propuestas gastronómicas, turísticas y residenciales de alto nivel. Ideal para marcas, estudios o locales que busquen presencia en un entorno con identidad y movimiento constante.
Consultanos para visitarlo!
Comercializa Silvia Erich consultora
Ubicado sobre Bolívar al 200, desarrollo de categoría con excelentes terminaciones y calidad constructiva.
El local cuenta con frente vidriado, muy buena exposición y luz natural, tres baños, depósito y espacios amplios fáciles de adaptar a distintos usos.
El edificio combina diseño contemporáneo con materiales de primera línea, en una de las zonas más atractivas de San Telmo, a metros de Plaza Dorrego, Av. Belgrano y Puerto Madero.
Zona en pleno crecimiento, rodeada de propuestas gastronómicas, turísticas y residenciales de alto nivel. Ideal para marcas, estudios o locales que busquen presencia en un entorno con identidad y movimiento constante.
Consultanos para visitarlo!
Comercializa Silvia Erich consultora
Ubicación
San Telmo, Capital Federal
Características
-
Sup. Cubierta: 228 m2
Datos básicos
-
Precio: USD 800.000
Código de aviso: PRO-1733446