-
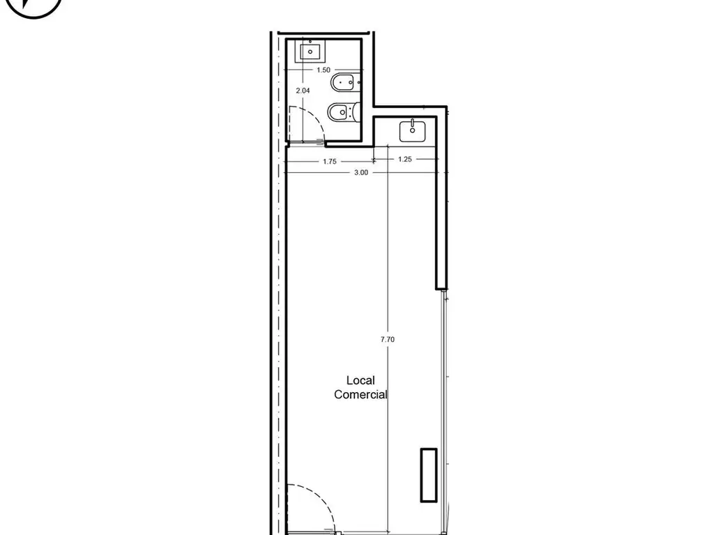
Local
Local
-
32 m² Total
32 m² Total
-
A Estrenar
A Estrenar
Local - Centro
A metros de la mejor zona de la costanera rosarina: Parque España. Este edificio se emplaza en uno de los barrios más pintorescos de la ciudad, Pichincha. Diseño y ambientes amplios definen las unidades de este emprendimiento. Todos semipisos.
FORMA DE PAGO
Financiación
COCHERA
Opcional
AMENITIES
SUM; Parrillero; Solarium
TERMINACIONES
SISTEMA CONSTRUCTIVO: Tradicional, de estructura independiente de hormigón armado (bases, columnas, vigas y losas), mampostería de ladrillos comunes en las medianeras y mampostería divisoria de ladrillos huecos.; PISOS: Espacios Comunes: Vereda pública: baldosas graníticas reglamentarias 4 panes Cocheras y caja de escalera: Cemento alisado, Palier por piso: Porcelanato de 1o calidad Terraza: Baldosa de 1o calidad Departamentos; Cocinas, baños y balcones: Porcelanato de 1o calidad; Estar- comedor, dormitorios y pasillos: piso de madera -tipo a de?nir s/proyecto o porcelanato 1o calidad; ZOCALOS: Cocinas y balcones: Zócalos cerámicos ídem piso; Ambientes con pisos de madera: Zócalos madera tipo a de?nir s/proyecto y disponibilidad ; SOLIAS Y UMBRALES: De granito (color a de?nir) en salida al balcón y cambios de piso ; REVESTIMIENTOS: Cocinas: Porcelanato de 1o calidad Baños: Porcelanato de 1o calidad; CERRAMIENTOS: Ventanas y puertas- ventanas: de Aluminio - Línea a30new con colocación de DVH.; CARPINTERIA DE MADERA: Puertas placas interiores de madera enchapadas en madera natural lustradas o laqueadas - espesor 2; Frentes de placard 2 puertas corredizas terminación a de?nir herrajes en aluminio "Interiores de placard completos (cajoneras, estantes y barral de colgar) en melanina color a de?nir."; GRIFERIAS: "Cocinas: Monocomando mezcladora cromada, marca FV o similar."; "Baños: juego completo bañera, bidet y lavatorio monocomando cromado, marca FV o similar."; MARMOLERIA: "Mesadas de cocina y de baño: granito espesor 2,5cm (color a de?nir) con zócalos de diferentes alturas, según proyecto."; MUEBLES DE COCINA: Alacenas y bajo mesadas completos en melanina color a de?nir según diseño.; Se incluye extractor de cocina o puri?cador embutido en mueble.; ASCENSOR: Cabina: revestida en acero inoxidable pulido con un lateral espejado. Puertas corredizas automáticas en acero. Cielorraso con iluminación incorporada.; Puertas en palieres automáticas en hierro pintado. Puertas en Hall de ingreso en acero inoxidable pulido.; INSTALACION DE GAS: "La cañería de la instalación de gas será de acero con revestimien- to epoxi, según exigencias de órgano competente y requisitos de Litoral Gas. Rejillas de ventilación superior e inferior según corresponda."; "Se incluye la provisión de artefactos de horno, anafe, puri?cador y sistema de calefaccion por caldera con radiadores instalados."; YESERIA: Enlucido de yeso en paramentos interiores.; "Cielorrasos aplicados a la losa con corte de pintura. Cielorrasos suspendidos de yeso en pasillos, baños y cocinas."; INSTALACION ELECTRICA : Se dejarán bocas para iluminación en cada ambiente y bocas para luminarias de embutir en cielorrasos suspendidos.; Las cajas con sus correspondientes llaves y tomas serán de color blanco marca Kalop o similar.; "Se incluye la provisión de tableros con sus correspondientes llaves térmicas, el portero eléctrico, tomas de TV y TE en comedor y dormitorio."; "Se incluyen luminarias de balcones, palieres y espacios comunes (PB, cocheras y Azotea)."; INSTALACION SANITARIA: "Las cañerías y accesorios de la instalación cloacal y pluvial serán de PVC marca Awaduct, irán suspendidas dentro del cielorraso. Las rejillas serán de acero inoxidable 15cm x 15cm."; La instalación de agua fría y caliente será de termofusión con las llaves de paso correspondientes en cada ingreso a ambiente húmedo (cocina y baños). INSTALACION EQUIPOS DE SPLIT: "Se dejará previsto -embutido en muros o por cielorraso suspen- dido- la cañería de cobre, junto con el desague y cañería de electricidad para la instalación de equipos Split."; ARTEFACTOS: Cocinas: bacha en acero inoxidable 1o calidad. Baños: bacha de porcelana 1o calidad.; "Artefactos (inodoro con mochila y bidet) marca Ferrum o Roca, color blanco."; "Bañera en acero esmaltado, marca Ferrum o similar, color blanco. Extractor de baño eléctrico embutido en cielorraso con llave interruptora."
FORMA DE PAGO
Financiación
COCHERA
Opcional
AMENITIES
SUM; Parrillero; Solarium
TERMINACIONES
SISTEMA CONSTRUCTIVO: Tradicional, de estructura independiente de hormigón armado (bases, columnas, vigas y losas), mampostería de ladrillos comunes en las medianeras y mampostería divisoria de ladrillos huecos.; PISOS: Espacios Comunes: Vereda pública: baldosas graníticas reglamentarias 4 panes Cocheras y caja de escalera: Cemento alisado, Palier por piso: Porcelanato de 1o calidad Terraza: Baldosa de 1o calidad Departamentos; Cocinas, baños y balcones: Porcelanato de 1o calidad; Estar- comedor, dormitorios y pasillos: piso de madera -tipo a de?nir s/proyecto o porcelanato 1o calidad; ZOCALOS: Cocinas y balcones: Zócalos cerámicos ídem piso; Ambientes con pisos de madera: Zócalos madera tipo a de?nir s/proyecto y disponibilidad ; SOLIAS Y UMBRALES: De granito (color a de?nir) en salida al balcón y cambios de piso ; REVESTIMIENTOS: Cocinas: Porcelanato de 1o calidad Baños: Porcelanato de 1o calidad; CERRAMIENTOS: Ventanas y puertas- ventanas: de Aluminio - Línea a30new con colocación de DVH.; CARPINTERIA DE MADERA: Puertas placas interiores de madera enchapadas en madera natural lustradas o laqueadas - espesor 2; Frentes de placard 2 puertas corredizas terminación a de?nir herrajes en aluminio "Interiores de placard completos (cajoneras, estantes y barral de colgar) en melanina color a de?nir."; GRIFERIAS: "Cocinas: Monocomando mezcladora cromada, marca FV o similar."; "Baños: juego completo bañera, bidet y lavatorio monocomando cromado, marca FV o similar."; MARMOLERIA: "Mesadas de cocina y de baño: granito espesor 2,5cm (color a de?nir) con zócalos de diferentes alturas, según proyecto."; MUEBLES DE COCINA: Alacenas y bajo mesadas completos en melanina color a de?nir según diseño.; Se incluye extractor de cocina o puri?cador embutido en mueble.; ASCENSOR: Cabina: revestida en acero inoxidable pulido con un lateral espejado. Puertas corredizas automáticas en acero. Cielorraso con iluminación incorporada.; Puertas en palieres automáticas en hierro pintado. Puertas en Hall de ingreso en acero inoxidable pulido.; INSTALACION DE GAS: "La cañería de la instalación de gas será de acero con revestimien- to epoxi, según exigencias de órgano competente y requisitos de Litoral Gas. Rejillas de ventilación superior e inferior según corresponda."; "Se incluye la provisión de artefactos de horno, anafe, puri?cador y sistema de calefaccion por caldera con radiadores instalados."; YESERIA: Enlucido de yeso en paramentos interiores.; "Cielorrasos aplicados a la losa con corte de pintura. Cielorrasos suspendidos de yeso en pasillos, baños y cocinas."; INSTALACION ELECTRICA : Se dejarán bocas para iluminación en cada ambiente y bocas para luminarias de embutir en cielorrasos suspendidos.; Las cajas con sus correspondientes llaves y tomas serán de color blanco marca Kalop o similar.; "Se incluye la provisión de tableros con sus correspondientes llaves térmicas, el portero eléctrico, tomas de TV y TE en comedor y dormitorio."; "Se incluyen luminarias de balcones, palieres y espacios comunes (PB, cocheras y Azotea)."; INSTALACION SANITARIA: "Las cañerías y accesorios de la instalación cloacal y pluvial serán de PVC marca Awaduct, irán suspendidas dentro del cielorraso. Las rejillas serán de acero inoxidable 15cm x 15cm."; La instalación de agua fría y caliente será de termofusión con las llaves de paso correspondientes en cada ingreso a ambiente húmedo (cocina y baños). INSTALACION EQUIPOS DE SPLIT: "Se dejará previsto -embutido en muros o por cielorraso suspen- dido- la cañería de cobre, junto con el desague y cañería de electricidad para la instalación de equipos Split."; ARTEFACTOS: Cocinas: bacha en acero inoxidable 1o calidad. Baños: bacha de porcelana 1o calidad.; "Artefactos (inodoro con mochila y bidet) marca Ferrum o Roca, color blanco."; "Bañera en acero esmaltado, marca Ferrum o similar, color blanco. Extractor de baño eléctrico embutido en cielorraso con llave interruptora."
Ubicación
Centro, Rosario, Departamento de Rosario, Santa Fe
Datos básicos
-
Precio: USD 90.000
Instalaciones del local
- Agua cloaca
Servicios del local
- Electricidad
- Internet
- Video cable
Código de aviso: PRO-656334