-
Local
-
735 m² Total
-
Bueno
-
En edificio
Local - Alquiler - Argentina, La Plata - calle 47 700
Descripción
Local comercial, ubicado en La Plata sobre Calle 47 740
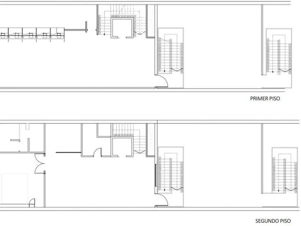
Amplio inmueble desarrollado en cuatro plantas, con una superficie total de 735 m² cubiertos y 230 m² descubiertos. Distribución por nivel:
PB: 240 m²
1º Piso: 160 m²
2º Piso: 160 m²
3º Nivel: 175 m²
Además, cuenta con azotea de 70 m², bóveda de 15 m² y techos de chapa y losa. Ideal para instituciones, oficinas o desarrollos comerciales. No está bajo propiedad horizontal. Este espacio es adecuado para diversas actividades comerciales.
Amplio inmueble desarrollado en cuatro plantas, con una superficie total de 735 m² cubiertos y 230 m² descubiertos. Distribución por nivel:
PB: 240 m²
1º Piso: 160 m²
2º Piso: 160 m²
3º Nivel: 175 m²
Además, cuenta con azotea de 70 m², bóveda de 15 m² y techos de chapa y losa. Ideal para instituciones, oficinas o desarrollos comerciales. No está bajo propiedad horizontal. Este espacio es adecuado para diversas actividades comerciales.
Características
-
Estado: Bueno
-
Sup. Cubierta: 735 m2
Datos básicos
-
Precio: USD 7.686
Código de aviso: RGC-RGC-388
calle 47 700
USD 7.686
Local en Alquiler en La Plata, Partido de La Plata
-
735 m² Total
-
Bueno
-
En edificio
WhatsApp
Contactar