(1) (1)
  • Carabassa

Operación

Propiedad

Precio

Buscar solo avisos en moneda:

Dorm|Amb

Dormitorios

  • 1
  • 2
  • 3
  • 4
  • 5+

Ambientes

  • Mono.
  • 2
  • 3
  • 4
  • 5+

Más filtros Más filtros

Dormitorios

  • 1
  • 2
  • 3
  • 4
  • 5+

Ambientes

  • Mono.
  • 2
  • 3
  • 4
  • 5+

Características

Superficie cubierta

Cocheras

Baños

Nombre de calle y altura

Tipo de urbanización

Servicios

Tipos de ambientes

Tipo de anunciante

45 Propiedades e Inmuebles en Carabassa

1/49
Visto

1

USD 73.409

Estancia Carabassa. Pilar. Panamericana km 100

Terreno en Venta en Carabassa, Pilar

  • Loteo
  • 801 m² Total

Terreno Lote en Venta ubicado en Estancia Carabassa, Pilar, G.B.A. Zona Norte

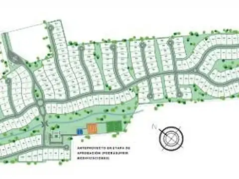
Lotes en barrio privado c/ precio desarrollo al costó de hasta 882m2 de superficie. Consultar ubicacion - disponibilidad -y precio según actualización (precios segun valor referencial) “ viví rodeado de naturaleza” a tan solo 4 km de la autopista panamericana y a 6 km del centro de pilar, en un lugar privilegiado rodeado de barrios y muy cerca de la asociación argentina de polo, se encuentra “estancia carabassa”. Con ubicación ideal, altura bajada del km 56, del ramal pilar. -Pegado al barrio pilará— está implantado sobre un terreno de 40 ha, en zona de frondosos árboles y con un arroyo que lo atraviesa. El diseño se hizo con el objetivo de tener la mayor cantidad de sectores “privados”, que se logran utilizando calles en cul de sac, generado poca circulación sobre los lotes que lindas con esos sectores. Contará con 260 lotes (superficie promedio de 813 m²). Cercano a centros comerciales, centros de salud y reconocidos colegios. Amenities: incluirá un sector deportivo: 2 canchas de tenis, 1 de fútbol y 2 de paddle, y un salón de usos múltiples. Otras características: - el diseño del barrio aprovecha las bondades del campo, logrando amplios espacios verdes, ideal para familias que buscan un nuevo estilo de vida.- - El proyecto es un nuevo desarrollo en la localidad de pilar.- - Hectáreas totales: 40 ha.- - Calles internas asfaltadas y cordón cuneta. - Redes subterráneas de: electricidad, agua, cloaca y gas. - Planta de tratamiento de efluentes. - Un edificio de acceso. - Sector deportivo. - Parquización. - Alumbrado público. - Pilares de servicios. - Alambrado perimetral. *Valor expensas pendiente a designar. Plan de pago: anticipo en dólares + cuotas mensuales en pesos ajustadas por cac trimestral + 3 refuerzos en pesos ajustados por cac (camara de la construcción). *Sujeto a aprobación municipal.*. - Mat.

Contactar
1/49
Visto

1

USD 70.519

Estancia Carabassa. Pilar. Panamericana km 100

Terreno en Venta en Carabassa, Pilar

  • Loteo
  • 801 m² Total

Terreno Lote en Venta ubicado en Estancia Carabassa, Pilar, G.B.A. Zona Norte

Lotes en barrio privado c/ precio desarrollo al costó de hasta 882m2 de superficie. Consultar ubicacion - disponibilidad -y precio según actualización (precios segun valor referencial) “ viví rodeado de naturaleza” a tan solo 4 km de la autopista panamericana y a 6 km del centro de pilar, en un lugar privilegiado rodeado de barrios y muy cerca de la asociación argentina de polo, se encuentra “estancia carabassa”. Con ubicación ideal, altura bajada del km 56, del ramal pilar. -Pegado al barrio pilará— está implantado sobre un terreno de 40 ha, en zona de frondosos árboles y con un arroyo que lo atraviesa. El diseño se hizo con el objetivo de tener la mayor cantidad de sectores “privados”, que se logran utilizando calles en cul de sac, generado poca circulación sobre los lotes que lindas con esos sectores. Contará con 260 lotes (superficie promedio de 813 m²). Cercano a centros comerciales, centros de salud y reconocidos colegios. Amenities: incluirá un sector deportivo: 2 canchas de tenis, 1 de fútbol y 2 de paddle, y un salón de usos múltiples. Otras características: - el diseño del barrio aprovecha las bondades del campo, logrando amplios espacios verdes, ideal para familias que buscan un nuevo estilo de vida.- - El proyecto es un nuevo desarrollo en la localidad de pilar.- - Hectáreas totales: 40 ha.- - Calles internas asfaltadas y cordón cuneta. - Redes subterráneas de: electricidad, agua, cloaca y gas. - Planta de tratamiento de efluentes. - Un edificio de acceso. - Sector deportivo. - Parquización. - Alumbrado público. - Pilares de servicios. - Alambrado perimetral. *Valor expensas pendiente a designar. Plan de pago: anticipo en dólares + cuotas mensuales en pesos ajustadas por cac trimestral + 3 refuerzos en pesos ajustados por cac (camara de la construcción). *Sujeto a aprobación municipal.*. - Mat.

Contactar
1/49
Visto

1

USD 67.763

Estancia Carabassa. Pilar. Panamericana km 100

Terreno en Venta en Carabassa, Pilar

  • Loteo
  • 804 m² Total

Terreno Lote en Venta ubicado en Estancia Carabassa, Pilar, G.B.A. Zona Norte

Lotes en barrio privado c/ precio desarrollo al costó de hasta 882m2 de superficie. Consultar ubicacion - disponibilidad -y precio según actualización (precios segun valor referencial) “ viví rodeado de naturaleza” a tan solo 4 km de la autopista panamericana y a 6 km del centro de pilar, en un lugar privilegiado rodeado de barrios y muy cerca de la asociación argentina de polo, se encuentra “estancia carabassa”. Con ubicación ideal, altura bajada del km 56, del ramal pilar. -Pegado al barrio pilará— está implantado sobre un terreno de 40 ha, en zona de frondosos árboles y con un arroyo que lo atraviesa. El diseño se hizo con el objetivo de tener la mayor cantidad de sectores “privados”, que se logran utilizando calles en cul de sac, generado poca circulación sobre los lotes que lindas con esos sectores. Contará con 260 lotes (superficie promedio de 813 m²). Cercano a centros comerciales, centros de salud y reconocidos colegios. Amenities: incluirá un sector deportivo: 2 canchas de tenis, 1 de fútbol y 2 de paddle, y un salón de usos múltiples. Otras características: - el diseño del barrio aprovecha las bondades del campo, logrando amplios espacios verdes, ideal para familias que buscan un nuevo estilo de vida.- - El proyecto es un nuevo desarrollo en la localidad de pilar.- - Hectáreas totales: 40 ha.- - Calles internas asfaltadas y cordón cuneta. - Redes subterráneas de: electricidad, agua, cloaca y gas. - Planta de tratamiento de efluentes. - Un edificio de acceso. - Sector deportivo. - Parquización. - Alumbrado público. - Pilares de servicios. - Alambrado perimetral. *Valor expensas pendiente a designar. Plan de pago: anticipo en dólares + cuotas mensuales en pesos ajustadas por cac trimestral + 3 refuerzos en pesos ajustados por cac (camara de la construcción). *Sujeto a aprobación municipal.*. - Mat.

Contactar
1/49
Visto

1

USD 78.152

Estancia Carabassa. Pilar. Panamericana km 100

Terreno en Venta en Carabassa, Pilar

  • Loteo
  • 810 m² Total

Terreno Lote en Venta ubicado en Estancia Carabassa, Pilar, G.B.A. Zona Norte

Lotes en barrio privado c/ precio desarrollo al costó de hasta 882m2 de superficie. Consultar ubicacion - disponibilidad -y precio según actualización (precios segun valor referencial) “ viví rodeado de naturaleza” a tan solo 4 km de la autopista panamericana y a 6 km del centro de pilar, en un lugar privilegiado rodeado de barrios y muy cerca de la asociación argentina de polo, se encuentra “estancia carabassa”. Con ubicación ideal, altura bajada del km 56, del ramal pilar. -Pegado al barrio pilará— está implantado sobre un terreno de 40 ha, en zona de frondosos árboles y con un arroyo que lo atraviesa. El diseño se hizo con el objetivo de tener la mayor cantidad de sectores “privados”, que se logran utilizando calles en cul de sac, generado poca circulación sobre los lotes que lindas con esos sectores. Contará con 260 lotes (superficie promedio de 813 m²). Cercano a centros comerciales, centros de salud y reconocidos colegios. Amenities: incluirá un sector deportivo: 2 canchas de tenis, 1 de fútbol y 2 de paddle, y un salón de usos múltiples. Otras características: - el diseño del barrio aprovecha las bondades del campo, logrando amplios espacios verdes, ideal para familias que buscan un nuevo estilo de vida.- - El proyecto es un nuevo desarrollo en la localidad de pilar.- - Hectáreas totales: 40 ha.- - Calles internas asfaltadas y cordón cuneta. - Redes subterráneas de: electricidad, agua, cloaca y gas. - Planta de tratamiento de efluentes. - Un edificio de acceso. - Sector deportivo. - Parquización. - Alumbrado público. - Pilares de servicios. - Alambrado perimetral. *Valor expensas pendiente a designar. Plan de pago: anticipo en dólares + cuotas mensuales en pesos ajustadas por cac trimestral + 3 refuerzos en pesos ajustados por cac (camara de la construcción). *Sujeto a aprobación municipal.*. - Mat.

Contactar
1/49
Visto

1

USD 73.384

Estancia Carabassa. Pilar. Panamericana km 100

Terreno en Venta en Carabassa, Pilar

  • Loteo
  • 801 m² Total

Terreno Lote en Venta ubicado en Estancia Carabassa, Pilar, G.B.A. Zona Norte

Lotes en barrio privado c/ precio desarrollo al costó de hasta 882m2 de superficie. Consultar ubicacion - disponibilidad -y precio según actualización (precios segun valor referencial) “ viví rodeado de naturaleza” a tan solo 4 km de la autopista panamericana y a 6 km del centro de pilar, en un lugar privilegiado rodeado de barrios y muy cerca de la asociación argentina de polo, se encuentra “estancia carabassa”. Con ubicación ideal, altura bajada del km 56, del ramal pilar. -Pegado al barrio pilará— está implantado sobre un terreno de 40 ha, en zona de frondosos árboles y con un arroyo que lo atraviesa. El diseño se hizo con el objetivo de tener la mayor cantidad de sectores “privados”, que se logran utilizando calles en cul de sac, generado poca circulación sobre los lotes que lindas con esos sectores. Contará con 260 lotes (superficie promedio de 813 m²). Cercano a centros comerciales, centros de salud y reconocidos colegios. Amenities: incluirá un sector deportivo: 2 canchas de tenis, 1 de fútbol y 2 de paddle, y un salón de usos múltiples. Otras características: - el diseño del barrio aprovecha las bondades del campo, logrando amplios espacios verdes, ideal para familias que buscan un nuevo estilo de vida.- - El proyecto es un nuevo desarrollo en la localidad de pilar.- - Hectáreas totales: 40 ha.- - Calles internas asfaltadas y cordón cuneta. - Redes subterráneas de: electricidad, agua, cloaca y gas. - Planta de tratamiento de efluentes. - Un edificio de acceso. - Sector deportivo. - Parquización. - Alumbrado público. - Pilares de servicios. - Alambrado perimetral. *Valor expensas pendiente a designar. Plan de pago: anticipo en dólares + cuotas mensuales en pesos ajustadas por cac trimestral + 3 refuerzos en pesos ajustados por cac (camara de la construcción). *Sujeto a aprobación municipal.*. - Mat.

Contactar
1/49
Visto

1

USD 71.593

Estancia Carabassa. Pilar. Panamericana km 100

Terreno en Venta en Carabassa, Pilar

  • Loteo
  • 814 m² Total

Terreno Lote en Venta ubicado en Estancia Carabassa, Pilar, G.B.A. Zona Norte

Lotes en barrio privado c/ precio desarrollo al costó de hasta 882m2 de superficie. Consultar ubicacion - disponibilidad -y precio según actualización (precios segun valor referencial) “ viví rodeado de naturaleza” a tan solo 4 km de la autopista panamericana y a 6 km del centro de pilar, en un lugar privilegiado rodeado de barrios y muy cerca de la asociación argentina de polo, se encuentra “estancia carabassa”. Con ubicación ideal, altura bajada del km 56, del ramal pilar. -Pegado al barrio pilará— está implantado sobre un terreno de 40 ha, en zona de frondosos árboles y con un arroyo que lo atraviesa. El diseño se hizo con el objetivo de tener la mayor cantidad de sectores “privados”, que se logran utilizando calles en cul de sac, generado poca circulación sobre los lotes que lindas con esos sectores. Contará con 260 lotes (superficie promedio de 813 m²). Cercano a centros comerciales, centros de salud y reconocidos colegios. Amenities: incluirá un sector deportivo: 2 canchas de tenis, 1 de fútbol y 2 de paddle, y un salón de usos múltiples. Otras características: - el diseño del barrio aprovecha las bondades del campo, logrando amplios espacios verdes, ideal para familias que buscan un nuevo estilo de vida.- - El proyecto es un nuevo desarrollo en la localidad de pilar.- - Hectáreas totales: 40 ha.- - Calles internas asfaltadas y cordón cuneta. - Redes subterráneas de: electricidad, agua, cloaca y gas. - Planta de tratamiento de efluentes. - Un edificio de acceso. - Sector deportivo. - Parquización. - Alumbrado público. - Pilares de servicios. - Alambrado perimetral. *Valor expensas pendiente a designar. Plan de pago: anticipo en dólares + cuotas mensuales en pesos ajustadas por cac trimestral + 3 refuerzos en pesos ajustados por cac (camara de la construcción). *Sujeto a aprobación municipal.*. - Mat.

Contactar
1/49
Visto

1

USD 79.414

Estancia Carabassa. Pilar. Panamericana km 100

Terreno en Venta en Carabassa, Pilar

  • Loteo
  • 823 m² Total

Terreno Lote en Venta ubicado en Estancia Carabassa, Pilar, G.B.A. Zona Norte

Lotes en barrio privado c/ precio desarrollo al costó de hasta 882m2 de superficie. Consultar ubicacion - disponibilidad -y precio según actualización (precios segun valor referencial) “ viví rodeado de naturaleza” a tan solo 4 km de la autopista panamericana y a 6 km del centro de pilar, en un lugar privilegiado rodeado de barrios y muy cerca de la asociación argentina de polo, se encuentra “estancia carabassa”. Con ubicación ideal, altura bajada del km 56, del ramal pilar. -Pegado al barrio pilará— está implantado sobre un terreno de 40 ha, en zona de frondosos árboles y con un arroyo que lo atraviesa. El diseño se hizo con el objetivo de tener la mayor cantidad de sectores “privados”, que se logran utilizando calles en cul de sac, generado poca circulación sobre los lotes que lindas con esos sectores. Contará con 260 lotes (superficie promedio de 813 m²). Cercano a centros comerciales, centros de salud y reconocidos colegios. Amenities: incluirá un sector deportivo: 2 canchas de tenis, 1 de fútbol y 2 de paddle, y un salón de usos múltiples. Otras características: - el diseño del barrio aprovecha las bondades del campo, logrando amplios espacios verdes, ideal para familias que buscan un nuevo estilo de vida.- - El proyecto es un nuevo desarrollo en la localidad de pilar.- - Hectáreas totales: 40 ha.- - Calles internas asfaltadas y cordón cuneta. - Redes subterráneas de: electricidad, agua, cloaca y gas. - Planta de tratamiento de efluentes. - Un edificio de acceso. - Sector deportivo. - Parquización. - Alumbrado público. - Pilares de servicios. - Alambrado perimetral. *Valor expensas pendiente a designar. Plan de pago: anticipo en dólares + cuotas mensuales en pesos ajustadas por cac trimestral + 3 refuerzos en pesos ajustados por cac (camara de la construcción). *Sujeto a aprobación municipal.*. - Mat.

Contactar
1/49
Visto

1

USD 85.055

Estancia Carabassa. Pilar. Panamericana km 100

Terreno en Venta en Carabassa, Pilar

  • Loteo
  • 882 m² Total

Terreno Lote en Venta ubicado en Estancia Carabassa, Pilar, G.B.A. Zona Norte

Lotes en barrio privado c/ precio desarrollo al costó de hasta 882m2 de superficie. Consultar ubicacion - disponibilidad -y precio según actualización (precios segun valor referencial) “ viví rodeado de naturaleza” a tan solo 4 km de la autopista panamericana y a 6 km del centro de pilar, en un lugar privilegiado rodeado de barrios y muy cerca de la asociación argentina de polo, se encuentra “estancia carabassa”. Con ubicación ideal, altura bajada del km 56, del ramal pilar. -Pegado al barrio pilará— está implantado sobre un terreno de 40 ha, en zona de frondosos árboles y con un arroyo que lo atraviesa. El diseño se hizo con el objetivo de tener la mayor cantidad de sectores “privados”, que se logran utilizando calles en cul de sac, generado poca circulación sobre los lotes que lindas con esos sectores. Contará con 260 lotes (superficie promedio de 813 m²). Cercano a centros comerciales, centros de salud y reconocidos colegios. Amenities: incluirá un sector deportivo: 2 canchas de tenis, 1 de fútbol y 2 de paddle, y un salón de usos múltiples. Otras características: - el diseño del barrio aprovecha las bondades del campo, logrando amplios espacios verdes, ideal para familias que buscan un nuevo estilo de vida.- - El proyecto es un nuevo desarrollo en la localidad de pilar.- - Hectáreas totales: 40 ha.- - Calles internas asfaltadas y cordón cuneta. - Redes subterráneas de: electricidad, agua, cloaca y gas. - Planta de tratamiento de efluentes. - Un edificio de acceso. - Sector deportivo. - Parquización. - Alumbrado público. - Pilares de servicios. - Alambrado perimetral. *Valor expensas pendiente a designar. Plan de pago: anticipo en dólares + cuotas mensuales en pesos ajustadas por cac trimestral + 3 refuerzos en pesos ajustados por cac (camara de la construcción). *Sujeto a aprobación municipal.*. - Mat.

Contactar
1/49
Visto

1

USD 97.410

Estancia Carabassa. Pilar. Panamericana km 100

Terreno en Venta en Carabassa, Pilar

  • Loteo
  • 809 m² Total

Terreno Lote en Venta ubicado en Estancia Carabassa, Pilar, G.B.A. Zona Norte

Lotes en barrio privado c/ precio desarrollo al costó de hasta 882m2 de superficie. Consultar ubicacion - disponibilidad -y precio según actualización (precios segun valor referencial) “ viví rodeado de naturaleza” a tan solo 4 km de la autopista panamericana y a 6 km del centro de pilar, en un lugar privilegiado rodeado de barrios y muy cerca de la asociación argentina de polo, se encuentra “estancia carabassa”. Con ubicación ideal, altura bajada del km 56, del ramal pilar. -Pegado al barrio pilará— está implantado sobre un terreno de 40 ha, en zona de frondosos árboles y con un arroyo que lo atraviesa. El diseño se hizo con el objetivo de tener la mayor cantidad de sectores “privados”, que se logran utilizando calles en cul de sac, generado poca circulación sobre los lotes que lindas con esos sectores. Contará con 260 lotes (superficie promedio de 813 m²). Cercano a centros comerciales, centros de salud y reconocidos colegios. Amenities: incluirá un sector deportivo: 2 canchas de tenis, 1 de fútbol y 2 de paddle, y un salón de usos múltiples. Otras características: - el diseño del barrio aprovecha las bondades del campo, logrando amplios espacios verdes, ideal para familias que buscan un nuevo estilo de vida.- - El proyecto es un nuevo desarrollo en la localidad de pilar.- - Hectáreas totales: 40 ha.- - Calles internas asfaltadas y cordón cuneta. - Redes subterráneas de: electricidad, agua, cloaca y gas. - Planta de tratamiento de efluentes. - Un edificio de acceso. - Sector deportivo. - Parquización. - Alumbrado público. - Pilares de servicios. - Alambrado perimetral. *Valor expensas pendiente a designar. Plan de pago: anticipo en dólares + cuotas mensuales en pesos ajustadas por cac trimestral + 3 refuerzos en pesos ajustados por cac (camara de la construcción). *Sujeto a aprobación municipal.*. - Mat.

Contactar
1/49
Visto

1

USD 77.483

Estancia Carabassa. Pilar. Panamericana km 100

Terreno en Venta en Carabassa, Pilar

  • Loteo
  • 803 m² Total

Terreno Lote en Venta en Estancia Carabassa, Pilar, G.B.A. Zona Norte

Lotes en barrio privado c/ precio desarrollo al costó de hasta 882m2 de superficie. Consultar ubicacion - disponibilidad -y precio según actualización (precios segun valor referencial) “ viví rodeado de naturaleza” a tan solo 4 km de la autopista panamericana y a 6 km del centro de pilar, en un lugar privilegiado rodeado de barrios y muy cerca de la asociación argentina de polo, se encuentra “estancia carabassa”. Con ubicación ideal, altura bajada del km 56, del ramal pilar. -Pegado al barrio pilará— está implantado sobre un terreno de 40 ha, en zona de frondosos árboles y con un arroyo que lo atraviesa. El diseño se hizo con el objetivo de tener la mayor cantidad de sectores “privados”, que se logran utilizando calles en cul de sac, generado poca circulación sobre los lotes que lindas con esos sectores. Contará con 260 lotes (superficie promedio de 813 m²). Cercano a centros comerciales, centros de salud y reconocidos colegios. Amenities: incluirá un sector deportivo: 2 canchas de tenis, 1 de fútbol y 2 de paddle, y un salón de usos múltiples. Otras características: - el diseño del barrio aprovecha las bondades del campo, logrando amplios espacios verdes, ideal para familias que buscan un nuevo estilo de vida.- - El proyecto es un nuevo desarrollo en la localidad de pilar.- - Hectáreas totales: 40 ha.- - Calles internas asfaltadas y cordón cuneta. - Redes subterráneas de: electricidad, agua, cloaca y gas. - Planta de tratamiento de efluentes. - Un edificio de acceso. - Sector deportivo. - Parquización. - Alumbrado público. - Pilares de servicios. - Alambrado perimetral. *Valor expensas pendiente a designar. Plan de pago: anticipo en dólares + cuotas mensuales en pesos ajustadas por cac trimestral + 3 refuerzos en pesos ajustados por cac (camara de la construcción). *Sujeto a aprobación municipal.*. - Mat.

Contactar
1/49
Visto

1

USD 74.352

Estancia Carabassa. Pilar. Panamericana km 100

Terreno en Venta en Carabassa, Pilar

  • Loteo
  • 846 m² Total

Terreno Lote en Venta en Estancia Carabassa, Pilar, G.B.A. Zona Norte

Lotes en barrio privado c/ precio desarrollo al costó de hasta 882m2 de superficie. Consultar ubicacion - disponibilidad -y precio según actualización (precios segun valor referencial) “ viví rodeado de naturaleza” a tan solo 4 km de la autopista panamericana y a 6 km del centro de pilar, en un lugar privilegiado rodeado de barrios y muy cerca de la asociación argentina de polo, se encuentra “estancia carabassa”. Con ubicación ideal, altura bajada del km 56, del ramal pilar. -Pegado al barrio pilará— está implantado sobre un terreno de 40 ha, en zona de frondosos árboles y con un arroyo que lo atraviesa. El diseño se hizo con el objetivo de tener la mayor cantidad de sectores “privados”, que se logran utilizando calles en cul de sac, generado poca circulación sobre los lotes que lindas con esos sectores. Contará con 260 lotes (superficie promedio de 813 m²). Cercano a centros comerciales, centros de salud y reconocidos colegios. Amenities: incluirá un sector deportivo: 2 canchas de tenis, 1 de fútbol y 2 de paddle, y un salón de usos múltiples. Otras características: - el diseño del barrio aprovecha las bondades del campo, logrando amplios espacios verdes, ideal para familias que buscan un nuevo estilo de vida.- - El proyecto es un nuevo desarrollo en la localidad de pilar.- - Hectáreas totales: 40 ha.- - Calles internas asfaltadas y cordón cuneta. - Redes subterráneas de: electricidad, agua, cloaca y gas. - Planta de tratamiento de efluentes. - Un edificio de acceso. - Sector deportivo. - Parquización. - Alumbrado público. - Pilares de servicios. - Alambrado perimetral. *Valor expensas pendiente a designar. Plan de pago: anticipo en dólares + cuotas mensuales en pesos ajustadas por cac trimestral + 3 refuerzos en pesos ajustados por cac (camara de la construcción). *Sujeto a aprobación municipal.*. - Mat.

Contactar
1/49
Visto

1

USD 70.949

Estancia Carabassa. Pilar. Panamericana km 100

Terreno en Venta en Carabassa, Pilar

  • Loteo
  • 806 m² Total

Terreno Lote en Venta en Estancia Carabassa, Pilar, G.B.A. Zona Norte

Lotes en barrio privado c/ precio desarrollo al costó de hasta 882m2 de superficie. Consultar ubicacion - disponibilidad -y precio según actualización (precios segun valor referencial) “ viví rodeado de naturaleza” a tan solo 4 km de la autopista panamericana y a 6 km del centro de pilar, en un lugar privilegiado rodeado de barrios y muy cerca de la asociación argentina de polo, se encuentra “estancia carabassa”. Con ubicación ideal, altura bajada del km 56, del ramal pilar. -Pegado al barrio pilará— está implantado sobre un terreno de 40 ha, en zona de frondosos árboles y con un arroyo que lo atraviesa. El diseño se hizo con el objetivo de tener la mayor cantidad de sectores “privados”, que se logran utilizando calles en cul de sac, generado poca circulación sobre los lotes que lindas con esos sectores. Contará con 260 lotes (superficie promedio de 813 m²). Cercano a centros comerciales, centros de salud y reconocidos colegios. Amenities: incluirá un sector deportivo: 2 canchas de tenis, 1 de fútbol y 2 de paddle, y un salón de usos múltiples. Otras características: - el diseño del barrio aprovecha las bondades del campo, logrando amplios espacios verdes, ideal para familias que buscan un nuevo estilo de vida.- - El proyecto es un nuevo desarrollo en la localidad de pilar.- - Hectáreas totales: 40 ha.- - Calles internas asfaltadas y cordón cuneta. - Redes subterráneas de: electricidad, agua, cloaca y gas. - Planta de tratamiento de efluentes. - Un edificio de acceso. - Sector deportivo. - Parquización. - Alumbrado público. - Pilares de servicios. - Alambrado perimetral. *Valor expensas pendiente a designar. Plan de pago: anticipo en dólares + cuotas mensuales en pesos ajustadas por cac trimestral + 3 refuerzos en pesos ajustados por cac (camara de la construcción). *Sujeto a aprobación municipal.*. - Mat.

Contactar
1/48
Visto

0

USD 24.000

Barrio Carabassa Pilar

Terreno en Venta en Carabassa, Pilar

Grupo Triangulo On 2024 SRL
  • 350 m² Total
  • 20 mts Frente
  • 17 mts Fondo

VENTA -Terreno - Carabassa - PILAR

Este es el lugar que estabas buscando para construir tu hogar ideal. Estamos hablando de barrio carabassa, ubicado en la tranquila zona de pilar. Este emprendimiento está dedicado al 100% para la paz, seguridad y tranquilidad de sus propietarios. Al contar con una ubicación estratégica, a solo 5 minutos de la panamericana y a 10 minutos de pilar centro, ofrece un acceso inmejorable a todo lo que necesitas sin sacrificar tu calidad de vida. El barrio cuenta con 24 lotes que se encuentran en un ambiente cerrado rodeado de tranquilidad, espacios verdes y naturaleza. Además, tiene 3 calles internas, medidores de luz y expensas bajas acordadas entre los propietarios. Barrio carabassa está dentro del prestigioso estancias de pilar y se encuentra rodeado de varios barrios cerrados y condominios, como así también de los más destacados clubs de golf y polo. Por otro lado, se encuentra próximo al centro comercial estación pilara, de las palmas del pilar y del hospital austral. La zona en la que se encuentra carabassa es de exclusivas casa quintas y el barrio está en pleno crecimiento. Si decides adquirir un lote, te ofrecemos planes de pago a medida y entrega inmediata. No pierdas la oportunidad de vivir en un lugar que combina seguridad, naturaleza y calidad de vida. Ven a conocerlo! Corredor interviniente: julian aguilar amat cmcpsi 6737 cucicba 7839 la tasación, intermediación y la conclusión de las operaciones sobre esta propiedad son actividades exclusivas de este corredor matriculado, conforme las previsiones de la ley 20.266, la ley caba 2340, la ley provincial 10.973 y sus modif. Y las normas reglamentarias dictadas por los colegios departamentales. Las oficinas asociadas a la red keller williams actúan en forma independiente, brindando servicios a corredores, agentes y al público en general, y su intervención se limita a la prestación de servicios inmobiliarios que no incluyen actos de corretaje ni intermediación inmobiliaria.

Contactar
1/44
Visto

0

USD 24.000

Barrio Carabassa Pilar

Terreno en Venta en Carabassa, Pilar

Grupo Triangulo On 2024 SRL
  • 350 m² Total
  • 20 mts Frente
  • 17 mts Fondo

Terreno en Barrio cerrado PILAR

Este es el lugar que estabas buscando para construir tu hogar ideal. Estamos hablando de barrio carabassa, ubicado en la tranquila zona de pilar. Este emprendimiento está dedicado al 100% para la paz, seguridad y tranquilidad de sus propietarios. Al contar con una ubicación estratégica, a solo 5 minutos de la panamericana y a 10 minutos de pilar centro, ofrece un acceso inmejorable a todo lo que necesitas sin sacrificar tu calidad de vida.El barrio cuenta con 24 lotes que se encuentran en un ambiente semicerrado rodeado de tranquilidad, espacios verdes y naturaleza. Además, tiene 3 calles internas, medidores de luz y expensas bajas. El barrio cuenta con amenities, pileta, cancha de fútbol y house.Barrio carabassa está dentro del prestigioso estancias de pilar y se encuentra rodeado de varios barrios cerrados y condominios, como así también de los más destacados clubs de golf y polo. Por otro lado, se encuentra próximo al centro comercial estación pilara, de las palmas del pilar y del hospital austral. #5la zona en la que se encuentra carabassa es de exclusivas casa quintas y el barrio está en pleno crecimiento. Si decides adquirir un lote, te ofrecemos planes de pago a medida y entrega inmediata. No pierdas la oportunidad de vivir en un lugar que combina seguridad, naturaleza y calidad de vida. Veni a conocerlo! Corredore interviniente: julian aguilar amat cmcpsi 6737 cucicba 7839 la tasación, intermediación y la conclusión de las operaciones sobre esta propiedad son actividades exclusivas de este corredor matriculado, conforme las previsiones de la ley 20.266, la ley caba 2340, la ley provincial 10.973 y sus modif. Y las normas reglamentarias dictadas por los colegios departamentales. Las oficinas asociadas a la red keller williams actúan en forma independiente, brindando servicios a corredores, agentes y al público en general, y su intervención se limita a la prestación de servicios inmobiliarios que no incluyen actos de corretaje ni intermediación inmobiliaria.

Contactar
1/54
Visto

0

USD 22.000

Barrio Carabassa Pilar

Terreno en Venta en Carabassa, Pilar

Grupo Triangulo On 2024 SRL
  • 440 m² Total
  • 20 mts Frente
  • 22 mts Fondo

Terreno en Barrio semi cerrado - PILAR financiado

Este es el lugar que estabas buscando para construir tu hogar ideal. Estamos hablando de barrio carabassa, ubicado en la tranquila zona de pilar. Este emprendimiento está dedicado al 100% para la paz, seguridad y tranquilidad de sus propietarios. Al contar con una ubicación estratégica, a solo 5 minutos de la panamericana y a 10 minutos de pilar centro, ofrece un acceso inmejorable a todo lo que necesitas sin sacrificar tu calidad de vida. El barrio cuenta con 24 lotes que se encuentran en un ambiente semicerrado rodeado de tranquilidad, espacios verdes y naturaleza. Además, tiene 3 calles internas, medidores de luz y expensas bajas acordadas entre los propietarios. Barrio carabassa está dentro del prestigioso estancias de pilar y se encuentra rodeado de varios barrios cerrados y condominios, como así también de los más destacados clubs de golf y polo. Por otro lado, se encuentra próximo al centro comercial estación pilara, de las palmas del pilar y del hospital austral. La zona en la que se encuentra carabassa es de exclusivas casa quintas y el barrio está en pleno crecimiento. Si decides adquirir un lote, te ofrecemos planes de pago a medida y entrega inmediata. No pierdas la oportunidad de vivir en un lugar que combina seguridad, naturaleza y calidad de vida. Ven a conocerlo! Corredore interviniente: julian aguilar amat cmcpsi 6737 cucicba 7839 la tasación, intermediación y la conclusión de las operaciones sobre esta propiedad son actividades exclusivas de este corredor matriculado, conforme las previsiones de la ley 20.266, la ley caba 2340, la ley provincial 10.973 y sus modif. Y las normas reglamentarias dictadas por los colegios departamentales. Las oficinas asociadas a la red keller williams actúan en forma independiente, brindando servicios a corredores, agentes y al público en general, y su intervención se limita a la prestación de servicios inmobiliarios que no incluyen actos de corretaje ni intermediación inmobiliaria.

Contactar