Trigo Propiedades

Trigo Propiedades

  • Solicitar tasación
  • Ubicación: Cordoba, Cordoba Capital

  • Horarios de atención: 8:30 a 18:30

  • Inmuebles publicados: 65

Contactá al anunciante

(1)

Operación

Propiedad

Precio

Buscar solo avisos en moneda:

Dorm|Amb

Dormitorios

  • 1
  • 2
  • 3
  • 4
  • 5+

Ambientes

  • Mono.
  • 2
  • 3
  • 4
  • 5+

Más filtros Más filtros

Dormitorios

  • 1
  • 2
  • 3
  • 4
  • 5+

Ambientes

  • Mono.
  • 2
  • 3
  • 4
  • 5+

Características

Superficie cubierta

Cocheras

Baños

Nombre de calle y altura

Tipo de urbanización

Servicios

Tipos de ambientes

Tipo de anunciante

65 Propiedades e Inmuebles de Trigo Propiedades

1/10
Visto

56

Consultar precio

Av. las Malvinas 2000

Galpón en Venta en Ampliación Palmar, Cordoba

Trigo Propiedades
  • 6.000 m² cubie.
  • Excelente
  • 30

Galpón en venta Av Las Malvinas Zona Este Cordoba Industrial

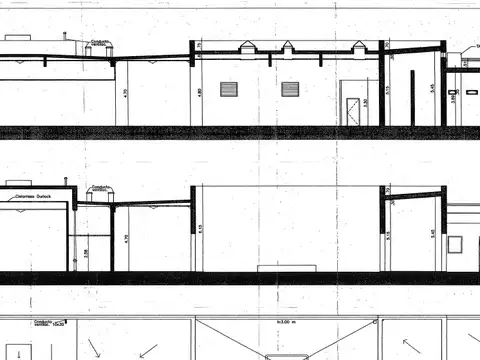
Galpon en av. Malvinas tiene 6.000 m2 cubiertos y 41.354 m2 de terreno con medidas irregulares: 98,17 mts.de frente sobre av. Las malvinas, 183 mts.sobre calle lateral (costado este), contrafrente de 399,59 mts y en su costado oeste, mirando al norte, a los 82,30 mts.se abre un martillo a favor de 241,58 mts2. Sector oficinas: - calle de ingreso pavimentada. - Jardín al frente con rejas. - Portón corredizo. - Casilla de guardia. - Hall de recepción. - 3 privados con vista a la ruta (con pisos cerámicos, aire acond., Carpintería de aluminio y ventanas con parasoles de aluminio) y un baño. En el costado oeste hay otras oficinas con vista al patio (con pisos cerámicos, cielorraso, divisorios de aluminio y aire acond.), Sala de reunión con pisos cerámicos y aire acond., Sala de capacitación también con aire, vestuarios y batería de baños. Tiene dos sectores para cocheras cubiertas y un comedor para personal con techo palmar, cerramientos de vidrio, cocina y baño. Sector de fábrica: - 3 naves principales (dos de ellas de 14,70 x 85,20 mts.y una de 13,10 por 85,20 mts.) Comunicadas entre si, con techo parabólico de chapa galvanizada sinusoidal (altura promedio de 7,40 mts) - encadenado y columnas de cemento. - Piso de hormigón armado alisado con malla cima de 15 cm. De espesor. En todo el perímetro interior de la fábrica están las paredes revestidas con cerámicos hasta una altura de 1,80 mts.además posee un depósito de chapa de 5 x 25 mts.en su costado este posee otro sector de oficinas de 5 x 65 mts.todo cubierto con techo de chapa con cielorraso y aire acondicionado. Atrás hay otra nave con una superficie de 600 mts2 con paredes y techo de chapa con cielorraso. Mejoras: - excelente iluminación en toda la fábrica, - instalación completa de aire comprimido y de gas con sistema zeppelin. - Perforación de agua a 250 mts.de profundidad con una capacidad de 7.000 litros hora. - El sector de oficinas posee terminaciones de primera calidad. - El frente de la fábrica tiene rejas y el resto del predio con alambrado perimetral, tiene playón de maniobras. - La propiedad tiene agua corriente, agua de pozo, luz y gas natural. Características del suelo: patrón 4b perfil/zona l fos % 60 fot 1.5 retiro frente 10 m laterales: parcelas con frente inferior a 25m no son obligatorias; parcela con frente mayor a 25m a 60m en un lateral; frente mayor a 60m ambos laterales, ambos casos relación a 1/3 no menos a 6m. Fondo: 10 m otras disposiciones usos rurales fos=30% fot=0,30/zonas 8,9,10,11 de la ord. 8060 1 viv ppal + 1 accesoria plano a 45° unidades funcionales de vivienda =una por parcela accesoria al uso industrial observaciones parcelas con frente inferior a 25m fos 80, mayor a 25m fos 60. Altura máxima sin limitaciones somos trigo propiedades una inmobiliaria con trayectoria estamos en av. Colón podes llamarnos 1) por whatsapp al celular de buenos aires, atiende mariela 2) por celular de cordoba, atiende hugo

Contactar
1/9
Visto

31

USD 225

Sol de Mayo 1300

Terreno en Venta en Avenida, Cordoba

Trigo Propiedades
  • terren.
  • 33.000 m² Total
  • 225 mts Frente

3 lotes 33.000 m2 para construir CORDOBA cerca de Ruta 20 Financiación y permuta Inversion

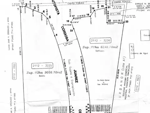
Terreno para construir a min del centro de la ciudad de cordoba se escuchan propuestas de financiacion y permutas parciales ubicación: bº avenida zona oeste, a metros de super mami, dinosaurio mall. A metros de ruta 20, av. Fuerza aerea. A 30 min de villa carlos paz ideal desarrollistas, empresas constructoras. Sirve para complejos, casonas, etc. Posee todos los servicios sup. Terreno: 31 700 m2 sup. Máxima edificable: 60.000 m2 aprox. Altura permitida: 12 mts o 21 si se disponen en tipologías aisladas (tipo torres) 3 lotes lote 1: 73,40 x 150,21 sup total: 11 029 m2 lote 2: 64,97 x 150,21 sup total: 9 760 m2 lote 3: 86,03 x 127,0 sup total: 10 929 m2 para más imágenes en cordoba trigo propiedades en buenos aires mariela trigo: en villa carlos paz con inmobiliaria biderbost, otros terrenos en cordoba tenemos otros terrenos en cordoba a la venta 1) 3600 m2 en av. Sabattini esquina gorriti para construir 14.000m2! 2) 3 lotes 33.000 m2 para construir cordoba cerca de ruta 20 financiación y permuta inversion 3) maestro vidal 667 casa a reciclar 450 m2 terreno de 450 m2 4) colectora sur terreno 6000 m2 3000 superficie cubierta 5) cerro de las rosas 900 m2 19x44 para construir 3 plantas 6) esquina de 583m2 en av cordillera! B centenario 7) 5 lotes unidos vendo en alberdi - 2059 m2 total ! - Calle santa rosa - mismo dueño 8) 475 m2 en alberdi castex entre colon y 9 de julio apto 8 plantas 9) 5000 m2 de terreno en circunvalacion sur patron 4b 10) 3 terrenos en alta cordoba para construir 7 plantas 818 m2 11) terrenos en av. Valparaiso zona sur

Contactar