-
Terreno
-
625 m² Total
-
Bueno
Lote con proyecto aprobado de 2,100 m2 - Centro, Bariloche
Lote con proyecto aprobado - Centro, San Carlos de Bariloche
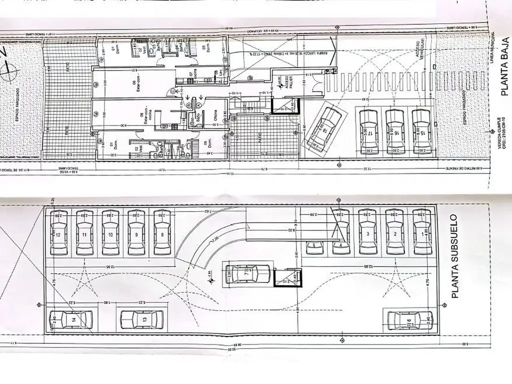
Lote céntrico con proyecto aprobado de 2,153 m2 distribuidos en 6 niveles (subsuelo, planta baja y cuatro pisos). Listo para comenzar a construir.
Disposición de las unidades:
- Subsuelo: 14 puestos de estacionamiento cubiertos.
- Planta baja: 4 puestos de estacionamiento cubiertos, 2 departamentos de tres ambientes con patio propio y una oficina.
- Primero, segundo y tercer piso: 4 departamentos de dos ambientes y 4 monoambientes (12 departamentos de dos ambientes y 12 monoambientes en total).
- Cuarto piso: 2 departamentos de dos ambientes con terraza, un departamento de 3 ambientes y un monoambiente.
Se aceptan propiedades de menor valor en parte de pago.
Lote céntrico con proyecto aprobado de 2,153 m2 distribuidos en 6 niveles (subsuelo, planta baja y cuatro pisos). Listo para comenzar a construir.
Disposición de las unidades:
- Subsuelo: 14 puestos de estacionamiento cubiertos.
- Planta baja: 4 puestos de estacionamiento cubiertos, 2 departamentos de tres ambientes con patio propio y una oficina.
- Primero, segundo y tercer piso: 4 departamentos de dos ambientes y 4 monoambientes (12 departamentos de dos ambientes y 12 monoambientes en total).
- Cuarto piso: 2 departamentos de dos ambientes con terraza, un departamento de 3 ambientes y un monoambiente.
Se aceptan propiedades de menor valor en parte de pago.
Datos básicos
-
Precio: USD 490.000
Superficie
-
Sup. Total: 625 m2
Instalaciones del terreno
- Agua cloaca
- Electricidad
Servicios del Terreno
- Agua corriente
- Electricidad
- Gas natural
Código de aviso: LCR-LCR-1511