-
Terreno
Terreno
-
1.017 m² Total
1.017 m² Total
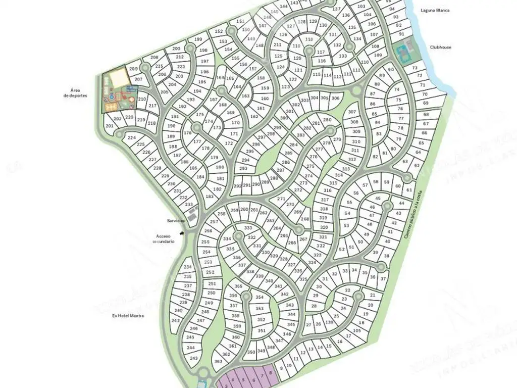
Lotes en Venta en Barrio Privado Reserva Montoya
Reserva Montoya, cuenta con amplios terrenos ubicados en un punto estratégico de importante crecimiento, desarrollo y expansión. Constituyendo hoy la mejor oportunidad inmobiliaria en Punta del Este.
Una zona reconocida por sus playas de mar oceánico y por la diversidad de propuestas gastronómicas, pubs y entretenimiento.
El bosque, la laguna y la playa brindan un ambiente único, donde se experimenta un sereno palpitar.
Una zona reconocida por sus playas de mar oceánico y por la diversidad de propuestas gastronómicas, pubs y entretenimiento.
El bosque, la laguna y la playa brindan un ambiente único, donde se experimenta un sereno palpitar.
Ubicación
Datos básicos
-
Precio: USD 288.014
Superficie
-
Sup. Total: 1.017 m2
Código de aviso: NDM14063V.Tera