-
Terreno
-
740 m² Total
Divino lote en barrio privado club Manuel Belgrano. Escobar.
MRB. Divino lote en barrio privado club Manuel Belgrano. Maschwitz, Escobar.
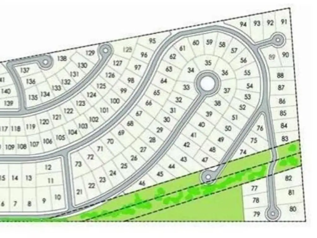
El Club Manuel Belgrano es un barrio con un total de 152 lotes , con todas las aprobaciones, reglamento de construcción y de copropiedad. Además posee una excelente ubicación: Panamericana Ramal Escobar, km 42,5.
Infraestructura Deportiva del Club Manuel Belgrano
3 canchas de rugby - 1 de Fútbol - 1 de hockey - Quincho de tercer tiempo y Confitería - Solárium - 2 de tenis
Servicios
Seguridad las 24hs. - Calles pavimentadas con cordón cuneta - Piscina - SUM -
Servicios Subterráneos
Electricidad - Internet - Telefonía
Colegios Cercanos
Carlos Maschwitz - Colegio Nicolás Avellaneda - Dover High School - Escuela Waldorf Clara De Asís - Colegio San Pablo
Shoppings
Maschwitz Mall - Punto Tigre - Norcenter - Unicenter - El Portal de Escobar- Soleil Factory
Supermercados
Carrefour - Dia -Jumbo Escobar
CONTACTANOS PARA MAS INFORMACION
Dada la dinámica del mercado inmobiliario en la actualidad la presente publicación ya pudo haber sido reservada y el portal no haberlo actualizado al momento. Por tal motivo comuniquese con nosotros para ver esta y otras oportunidades
CANDAOSA PROPIEDADES
NANCY CANDAOSA
Martillera y Corredora Pública
CMZC 575
El Club Manuel Belgrano es un barrio con un total de 152 lotes , con todas las aprobaciones, reglamento de construcción y de copropiedad. Además posee una excelente ubicación: Panamericana Ramal Escobar, km 42,5.
Infraestructura Deportiva del Club Manuel Belgrano
3 canchas de rugby - 1 de Fútbol - 1 de hockey - Quincho de tercer tiempo y Confitería - Solárium - 2 de tenis
Servicios
Seguridad las 24hs. - Calles pavimentadas con cordón cuneta - Piscina - SUM -
Servicios Subterráneos
Electricidad - Internet - Telefonía
Colegios Cercanos
Carlos Maschwitz - Colegio Nicolás Avellaneda - Dover High School - Escuela Waldorf Clara De Asís - Colegio San Pablo
Shoppings
Maschwitz Mall - Punto Tigre - Norcenter - Unicenter - El Portal de Escobar- Soleil Factory
Supermercados
Carrefour - Dia -Jumbo Escobar
CONTACTANOS PARA MAS INFORMACION
Dada la dinámica del mercado inmobiliario en la actualidad la presente publicación ya pudo haber sido reservada y el portal no haberlo actualizado al momento. Por tal motivo comuniquese con nosotros para ver esta y otras oportunidades
CANDAOSA PROPIEDADES
NANCY CANDAOSA
Martillera y Corredora Pública
CMZC 575
Ubicación
Maschwitz Privado, Countries y Barrios Cerrados en Escobar, Escobar, G.B.A. Zona Norte
Esta propiedad pertenece al Barrio cerrado:
Datos básicos
-
Precio: USD 38.500
Superficie
-
Sup. Total: 740 m2
Código de aviso: 304127-6384476