-
PH
-
154,10 m² Cubierta
-
3 dormitorios
-
A Estrenar
-
3 baños
-
4 ambientes
-
Bueno
-
54,40 m² Descubierta
CASA PASILLO PH A ESTRENAR PISCINA PICHINCHA ROSARIO
Desarrollada en tres niveles, ofrece 223,70 m² totales (154,10 m² cubiertos, 15,20 m² semicubiertos y 54,40 m² descubiertos)
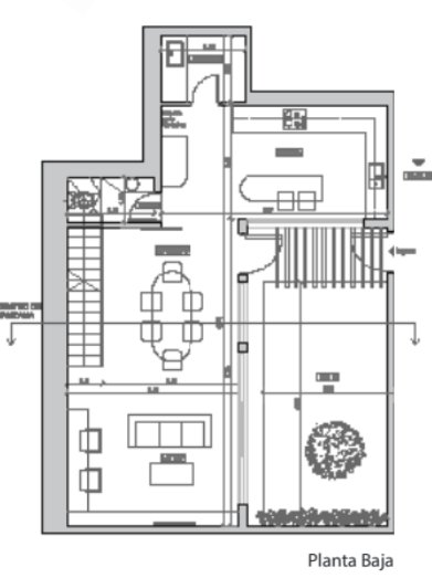
Planta Baja:
- Amplio patio de acceso, con luz natural y clima acogedor para descansar al aire libre
- Cocina con isla, moderna y práctica, integrada al estar-comedor amplio y versátil
- Toilette de recepción
- Lavadero independiente con acceso desde la cocina
Planta Alta:
- Suite principal con baño propio, pensada para el confort y la privacidad ?
- Dos dormitorios secundarios con placares empotrados de gran capacidad
- Baño completo compartido
- Terminaciones de calidad, con revestimientos, griferías y sanitarios de primera línea
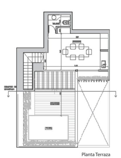
Terraza:
- Quincho con parrilla, mesada con bacha y espacio para gran mesa: ideal para reuniones y celebraciones
- Sector de solárium y piscina para disfrutar en la intimidad del hogar ?
PH de 4 ambientes, a estrenar, con pileta y apto mascotas
Entrega estimada: 02/2027 ?
Un hogar versátil y cálido, listo para vivir y disfrutar cada momento.
- KP453217 - KPT011917 -
- Publicado usando KiteProp CRM Inmobiliario
Ubicación
Pichincha, Rosario, Departamento de Rosario, Santa Fe
Características
-
Cant. Ambientes: 4
-
Cant. Dormitorios: 3
-
Estado: Bueno
Datos básicos
-
Tipo de operación: Venta
-
Precio: USD 295.000
Superficie
-
Sup. Cubierta: 154,10 m2
-
Sup. Descubierta: 54,40 m2
-
Sup. Total: 223,70 m2
Código de aviso: 16KP453217
Propiedades Similares
-
USD 295.000
Brown 2761
- 154 m² Cubierta
- 3 dormitorios
- A Estrenar
-
USD 311.500
Santiago y Jujuy
- 132 m² Cubierta
- 3 dormitorios
-
USD 295.000
Brown 2700
- 154,10 m² Cubierta
- 3 dormitorios
- A Estrenar
-
USD 270.000
Urquiza al 2200 Planta Alta
- 251 m² Cubierta
- 4 dormitorios
- 59 años