Fincazul - Funes

USD 113.050

Venta en Funes, Departamento de Rosario

USD 113.050

  • PH

  • 82 m² Cubierta

  • 2 dormitorios

  • 1 baño

  • 3 ambientes

  • 1 cocheras

  • Este

Casa - Paseo del Norte

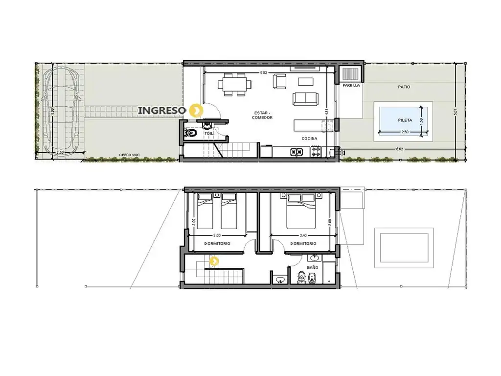
Moderna casa 2 dormitorios. La unidad se desarrolla en dos plantas: en la planta baja se ubica el ingreso vehicular, estar-comedor con cocina integrada, toilette y salida a un patio privado con parrillero y piscina. En planta alta, se encuentran los dormitorios, con baño completo y amplios ventanales que aportan luminosidad y ventilación natural. Espacioso espacio verde y cerco vivo que garantiza privacidad y una integración armónica con el entorno.

Ubicación

Funes, Departamento de Rosario, Santa Fe

Características

  • Cant. Ambientes: 3

  • Cant. Dormitorios: 2

  • Cant. Cocheras: 1

  • Orientación: E

  • Tipo de operación: Venta

  • Precio: USD 113.050

  • Sup. Cubierta: 82 m2

  • Sup. Total: 82 m2

  • Baño
  • Cochera
  • Cocina comedor
  • Comedor diario
  • Dormitorio
  • Living comedor
  • Patio
  • Agua cloaca
  • Agua corriente
  • Cable
  • Electricidad
  • Pileta
  • Agua corriente
  • Electricidad
  • Gas natural
  • Internet
  • Video cable

Código de aviso: PRO-1672016

Contactá al anunciante

CRESTALE PROPIEDADES S.A.