Av Pavon 4100 , Piso 2

USD 325.000

Venta en Boedo, Capital Federal

USD 325.000

  • PH

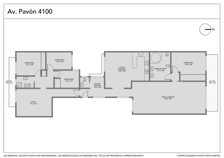
  • 167 m² Cubierta

  • 4 dormitorios

  • 36 años

  • 2 baños

  • 5 ambientes

  • 1 toilettes

  • Bueno

  • 17 m² Descubierta

Av Pavón 4149 2°

PH de 5 ambientes de 184 metros cuadrados propios, que ademas cuenta con piscina, jardín con parrilla, horno de barro, asador, SUM, terraza y lavadero compartido con una sola unidad.

Gran piso de casi 200 metros cuadrados que cuenta con entrada principal y de servicio, enorme living comedor 45 metros con salida a balcón corrido con orientación norte y vista al jardín y piscina que solamente son compartidos con una unidad más. Cocina independiente con comedor diario de generosas dimensiones. Gran dormitorio principal con baño completo con doble bacha e hidromasaje, hall distribuidor con toilette de recepción, living íntimo, baño completo y 3 cómodos dormitorios, uno con salida al balcón corrido que da al frente.

La unidad se encuentra en un segundo piso por escalera, es muy amplia y luminosa, y si bien hay que reacondicionar algunos de sus ambientes, la propiedad fue refaccionada por completa en el año 1990 y con materiales de primera calidad.

En el terreno hay 2 unidades y cuenta con los siguientes amenities:
- Piscina de 12 x 4,5 metros marca Skelpools.
- Jardín con sector de parrilla, horno de barro y asador.
- SUM equipado.
- Terraza de casi 200 metros cuadrados.
- Lavadero.

Gastos unidad:
ABL: $ 30.000.-
AySA: $ 30.000.-
MetroGas: Según consumo
Edesur: Según consumo

Gastos espacios comunes:
ABL: $ 40.000.- ($ 20.000.- cada unidad).
AySA: $ 160.000.- ($ 80.000.- cada unidad).
MetroGas: $ 5.000.- ($ 2.500.- cada unidad).
Edesur: $ 3.000.- ($ 1.500.- cada unidad).

Toda la información del aviso, incluyendo medidas, precio, impuestos, servicios, etc. son estimativos, sujetos a modificación y no vinculantes, según lo dispuesto en el art. 973, Cód. Civ. y Com.

- KP479618 - KPT020216 -
- Publicado usando KiteProp CRM Inmobiliario

Ubicación

Boedo, Capital Federal

Características

  • Cant. Ambientes: 5

  • Cant. Dormitorios: 4

  • Antiguedad: 36

  • Estado: Bueno

  • Cant. Toilettes: 1

  • Cant. Plantas: 2

  • Apto Crédito

  • Tipo de operación: Venta

  • Precio: USD 325.000

  • Sup. Cubierta: 167 m2

  • Sup. Descubierta: 17 m2

  • Sup. Total: 184 m2

Código de aviso: 21KP479618

Contactá al anunciante

Hugo Moreno Saucedo Familia Inmobiliaria®