Imprimir

Av. Independencia 2602

(LEP-LE5-384)
Excelente esquina en Av. Independencia y Saavedra.
¡ÚLTIMAS UNIDADES DISPONIBLES!.

Obra avanzada.

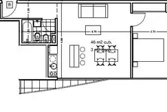
Contará con una fachada innovadora llena de diseño, con amplios ventanales, un importante hall de entrada y un Local comercial. Unidades estudios - 1 - 1/2 y 2 AMB.

- AMENITIES: SUM (Salón de usos múltiples), SOLÁRIUM, PARRILLA y LAUNDRY.

Te invitamos a conocer una obra terminada de la constructora para que veas como son.

Si queres déjanos tus datos en esta publicación y te contactamos a la brevedad, para ayudarte a buscar la propiedad que necesitas!!.

Instagram: lepore.sancristobal

LEPORE SAN CRISTOBAL. LEPORE PROPIEDADES ******** ********. LEPORE Propiedades S.A. CUIT : ********-9. C.U.C.I.C.B.A. Matrícula Nº 931 (Caballito, Villa Crespo, San Cristóbal). AVISO LEGAL: Las descripciones arquitectónicas y funcionales, valores de expensas, impuestos y servicios, fotos y medidas de este inmueble son aproximados. Los datos fueron proporcionados por el propietario y pueden no estar actualizados a la hora de la visualización de este aviso por lo cual pueden arrojar inexactitudes y discordancias con las que surgen de los las facturas, títulos y planos legales del inmueble. El interesado deberá realizar las verificaciones respectivas previamente a la realización de cualquier operación, requiriendo por sí o sus profesionales las copias necesarias de la documentación que corresponda.

Unidades disponibles

Monoambientes desde USD 72.000 hasta USD 84.000

Superficie: desde 36,00 m2 hasta 42,00 m2

2 unidades disponibles

2 unidades disponibles

Unidad
Sup.Total
Sup.Cubierta
Baños
Disposición
Precio
4° A
42,00 m2
39,00 m2
1
Frente
USD 84.000
4° E
36,00 m2
33,00 m2
Frente
USD 72.000

1 dormitorio desde USD 84.000

Superficie: desde 42,00 m2

1 unidades disponibles

1 unidades disponibles

Unidad
Sup.Total
Sup.Cubierta
Baños
Disposición
Precio
4° A
42,00 m2
39,00 m2
1
Frente
USD 84.000

Locales desde USD 510.000

Superficie: desde 207,00 m2

1 unidades disponibles

1 unidades disponibles

Unidad
Sup.Total
Sup.Cubierta
Cant.Baños
Precio
PB°
207,00 m2
207,00 m2
2
USD 510.000

Ubicación del emprendimiento

Av. Independencia 2600

Código de aviso: BB95698502

Contactá al anunciante

LEPORE PROPIEDADES S.A.

¡Consulta enviada!
¡Consulta enviada!

Contactá al anunciante

Al enviar estás aceptando los términos y condiciones

Error. Intenta de nuevo en unos minutos

¡Consulta enviada!
¡Consulta enviada!

Emprendimientos similares

Ver más emprendimientos similares