Imprimir

CARLOS CALVO 3233

(LEP-LE4-467)
Carlos Calvo 3233 Torre de 15 pisos cerca de la Avenida Boedo.
Es un desarrollo íntegramente de la constructora CRIBA SA en asociación con el estudio Urgell-Penedo-Urgell, ambas firmas de importante prestigio en Argentina y Uruguay.El proyecto está localizado en el tradicional barrio de Boedo, una de las zonas mejor conectadas de la Ciudad de Buenos Aires, con rápido acceso al centro y a la zona Sur de la Ciudad. Estación Gral. Urquiza (Subte E) a 2 cuadras y Humberto 1º (Subte H) a 6 cuadras. Subida a la Autopista 25 de Mayo (acceso por Jujuy o Boedo) a menos de 5 minutos. Nueva Plaza Boedo a la vuelta de la esquina, centros comerciales y gastronómicos de Avenidas Boedo, San Juan, Jujuy e Independencia a pocas cuadras.
Colegios, hospitales y centros comunales en un radio de 200 metros.

Superficie de viviendas: 6.200 m2 en 114 unidades desde monoambientes hasta departamentos con tres dormitorios.
Todas las unidades contarán con preinstalación para lavarropas y aire acondicionado.
Cocheras: 60 cocheras en subsuelo con rampa y bauleras.

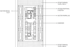
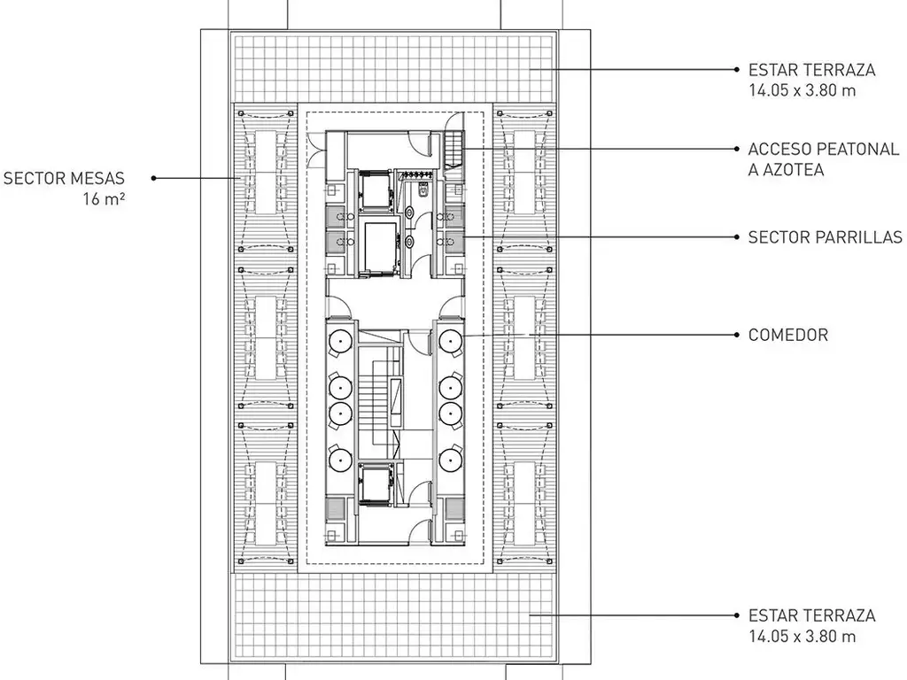
Amenities: parque con plaza de juegos para niños , piscina , SUM y gimnasio en PB con vista al jardín.

Estado del terreno: en posesión y escriturado a nombre de CRIBA SA.

LEPORE VILLA CRESPO. LEPORE PROPIEDADES ******** ********/********. LEPORE Propiedades S.A. CUIT : ********-9. C.U.C.I.C.B.A. Matrícula Nº 931 (Sucursales Caballito - Palermo - Centro). AVISO LEGAL: Las descripciones arquitectónicas y funcionales, valores de expensas, impuestos y servicios, fotos y medidas de este inmueble son aproximados. Los datos fueron proporcionados por el propietario y pueden no estar actualizados a la hora de la visualización de este aviso por lo cual pueden arrojar inexactitudes y discordancias con las que surgen de los las facturas, títulos y planos legales del inmueble. El interesado deberá realizar las verificaciones respectivas previamente a la realización de cualquier operación, requiriendo por sí o sus profesionales las copias necesarias de la documentación que corresponda. Venta supeditada al cumplimiento por parte del propietario de los requisitos de la resolución general Nº 2371 de la AFIP (pedido de COTI).

Unidades disponibles

2 dormitorios desde USD 163.800

Superficie: desde 65,00 m2

1 unidades disponibles

1 unidades disponibles

Unidad
Sup.Total
Sup.Cubierta
Baños
Disposición
Precio
1° 08
65,00 m2
60,00 m2
1
Lateral
USD 163.800

Ubicación del emprendimiento

CARLOS CALVO 3200

Código de aviso: BB95325029

Contactá al anunciante

LEPORE PROPIEDADES S.A.

¡Consulta enviada!
¡Consulta enviada!

Contactá al anunciante

Al enviar estás aceptando los términos y condiciones

Error. Intenta de nuevo en unos minutos

¡Consulta enviada!
¡Consulta enviada!

Emprendimientos similares

Ver más emprendimientos similares