Características del emprendimiento

  • Pisos en Edificio: 4
  • Departamentos: 9

Freire 1526

Fecha finalización: Febrero 2025

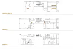
Proyecto Freire cuenta con las siguientes tipologías:

- Planta Baja con 2 cocheras y un amplio 4 ambientes con patio privado.
- Contrafrente compuesto por departamentos monoambientes, 2 ambientes y un duplex 2 ambientes con terraza privada.
- El frente compuesto por dos 3 ambientes y un amplio duplex 4 ambientes aterrazado.
- Terraza compartida en azotea con parrilla.

Terminaciones y Calidades Constructivas:

- Revestimiento plastico texturado
- Detalle de hormigón visto
- Barandas de vidrio
- Detalles en wpc
- Parrillas individuales
- Estacionamientos de bicicletas
- Cielorraso de hormigón visto
- Mesadas de silestone
- Porcellanatto gris rectificados
- Revoques interiores de yeso



Nota: La información gráfica y escrita provistas en el presente aviso es a título estimativo y no forma parte de ningún tipo de documentación contractual. Las medidas y superficies definitivas surgirán del título de propiedad del inmueble referido. Asimismo, los importes de impuestos, tasas, servicios y expensas están sujetos a verificación. El valor del inmueble indicado en el presente puede ser modificado sin previo aviso. Operación supeditada a que el propietario cumplimente con la R.G. N° 2371/07 COTI. | CABA Ley 5859 - Art. 4: Para los casos de alquiler de vivienda, el monto máximo de comisión que se le puede requerir a los propietarios será el equivalente al cuatro con quince centésimos por ciento (4,15%) del valor total del respectivo contrato.

Ubicación del emprendimiento

Freire 1500

  • Construye: Hanok
  • Comercializa: Iribarren Propiedades

Código de aviso: 268869-6262376-BAJA-2025-05-26 12:45:50

La siguiente propiedad no se encuentra disponible. Si deseas continuar tu búsqueda hacé click aquí

Emprendimientos similares

Ver más emprendimientos similares