-
Departamento
-
99 m² Cubierta
-
3 dormitorios
-
8 años
-
2 baños
-
4 ambientes
-
1 cocheras
-
Excelente
-
Interno
-
Noroeste
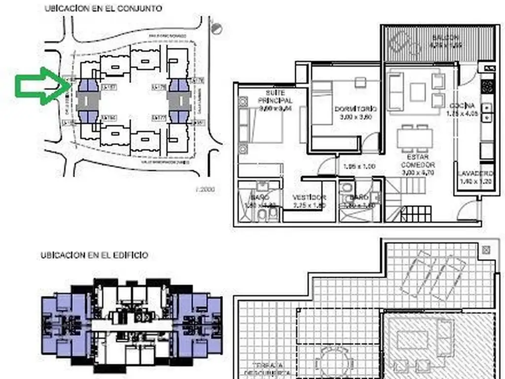
Espectacular dúplex 4 amb + coch en Vilanova Haedo, Moron
Espectacular dúplex - a estrenar - de 4 ambientes Vilanova Haedo. Villa Sarmiento, Morón.
Ubicado en el Complejo VILANOVA HAEDO bajo el concepto Barrio Cerrado Urbano.
Tipología en obra: B-11 Dúplex. Es un departamento tipo dúplex, en 3er. piso más terraza, con vista hacia la calle.
Tiene dos dormitorios, uno de ellos en suite en su planta baja y en la planta alta (dúplex) con acceso por escalera privada, otro ambiente como para utilizar como dormitorio/playroom o quincho.
Todo súper luminoso, con grandes ventanales y una vista espectacular.Los pisos son de parket de Patagonia Floring en el living y el comedor con la cocina integrada.
Posee: Baño principal, Toilette,Lavadero, espacio para lava-vajillas,Cocina y horno eléctrico con anafe vitrocerámico Longvie, Campana extractora de acero inoxidable, Terraza con Parrilla.
El precio incluye una cochera.
El complejo posee los mejores amenities, tales como piscina semi-olímpica de 6 x 25 mts, Solarium, Sendas para caminar, Laundry, Cocheras, Bauleras, Vestuarios con baños sauna, Baños para personas con movilidad reducida, Gym, SUM con cocina completa preparada para catering externos, Sala para niños y Microcine.
Lo que caracteriza y refuerza el concepto de estos condominios es su seguridad con personal las 24 horas y monitoreo por cámaras de CCTV. Control de acceso personalizado hacia la zona de cocheras.
La ubicación es de excelencia, ya que está a 150 mts. de la autopista Acceso Oeste, con acceso inmediato a ambas direcciones, lo que determina una llegada al centro de la ciudad en muy pocos minutos, de la misma manera, la cercanía al Aeropuerto de El Palomar y al Camino del Buen Ayre.
Está a 4 cuadras de la Av. Presidente Perón (ex Gaona), y a 5 cuadras del Centro comercial Al Oeste Shopping/Showcase Cinemas, también muy cercanos a las estaciones de tren de Ramos Mejía y de Haedo.
Si nunca te imaginaste viviendo en Vilanova Haedo; contactanos para hacer una visita y ya lo podras empezar a soñar; Seguridad, Amenities y Estilo de vida
Excelente oportunidad, contactanos cuanto antes!
Absoluta reserva.
German TAVELLA inmuebles
Ubicación
Villa Sarmiento, Moron, G.B.A. Zona Oeste
Características
-
Cant. Ambientes: 4
-
Cant. Dormitorios: 3
-
Cant. Baños: 2
-
Cant. Cocheras: 1
-
Estado: Excelente
-
Antiguedad: 8
-
Disposición: Interno
-
Orientación: NO
Datos básicos
-
Tipo de Unidad: Departamento
-
Tipo de operación: Venta
-
Precio: USD 270.000
Superficie
-
Sup. Cubierta: 99 m2
-
Sup. Descubierta: 56 m2
-
Sup. Total: 163 m2
Ambientes del departamento
- Balcón
- Cocina
- Lavadero
- Living comedor
- Suite
- Terraza
Instalaciones del departamento
- Caldera individual
- Instalación parrilla
- Solarium
- Pavimento
Servicios del departamento
- Agua corriente
- Vigilancia
Caracteristicas del edificio
-
Cant. Pisos: 2
Servicios del edificio
- Cocina
- Vigilancia
Instalaciones del edificio
- Caldera
- Gimnasio
- Grupo electrógeno
- Laundry
- Pileta
- Salón de fiestas
- Sauna
- Parrilla
- Solarium
Código de aviso: TAV-TAV-6637-763
Propiedades Similares
-
USD 195.000
+ $ 30000 expensas
Norteamerica 600 2°
- 78 m² Cubierta
- 2 dormitorios
- 3 años
-
USD 274.000
+ $ 490000 expensas
Armenia 900
- 89 m² Cubierta
- 3 dormitorios
- 3 años
-
USD 325.000
CASTELLI, Mayor Pedro 400
- 102 m² Cubierta
- 3 dormitorios
- A Estrenar
-
USD 350.000
+ $ 350000 expensas
Norteamérica 672
- 170 m² Cubierta
- 3 dormitorios
- 8 años