Miñones al 1800

USD 213.500

Venta en Belgrano Chico, Belgrano

USD 213.500

  • Departamento

    Departamento

  • 60 m² Cubierta

    60 m² cubie.

  • 1 dormitorio

    1 dorm.

  • 1 baño

    1 baño

  • 2 ambientes

    2 ambientes

  • Frente

    Frente

  • Apto profesi.

    Apto profesi.

Departamento en Construcción en Belgrano Chico

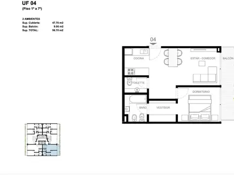
DUPLEX DE 2 AMBIENTES de gran tamaño en Construcción ubicado en el PRIMER PISO FRENTE en BELGRANO CHICO. El Edificio contará con 10 unidades, todas con balcón aterrazado y parrillas propias, (PB + 4 pisos y un local comercial que se ubica en la planta baja). 6 cocheras en subsuelo.
OBRA INICIADA: OCTUBRE 2025
FECHA ESTIMADA FINALIZACION DE OBRA: AGOSTO 2027 (20 MESES DE OBRA)
ANTICIPO 40% y Financiación hasta en 20 cuotas actualizables por CAC.
El departamento es APTO PROFESIONAL y se entrega con:
- Piso prefinished de madera natural Patagonia o similar

- Griferías FV o similar

- Artefactos Ferrum o similar

- Frentes de placard

- Mesada y alzada de Silestone o similar + mueble bajomesada y alacena

- Horno y anafe

- Aire acondicionado frío-calor

- Sistema de agua caliente central

- Carpintería exterior de aluminio con DVH

- Instalación para lavarropas o lavavajillas

- Cielorraso de hormigón visto

- Barandas de balcón de vidrio
El Edificio contará con SUM, parrillas, pileta y Solarium y con las siguientes terminaciones de calidad:
- Hall de acceso con revestimientos premium

- Espacios comunes con mobiliario y equipamiento de diseño
- Paisajismo y riego automático

- Sector para seguridad en planta baja

- Instalación de cámaras y control de acceso digital
- Cañería vacía para alarma

- Iluminación LED

- Ascensor electromecánico de última generación



Corredor Responsable: Christian Foster CUCICBA 7703 y CMCPSI 7112

Todas las medidas son aproximadas y las definitivas surgirán de la escritura traslativa de dominio. El edificio no cuenta con accesibilidad para personas con movilidad reducida (Ley 5115).

Para los casos de alquiler de vivienda en la Ciudad Autónoma de Buenos Aires, el monto máximo de comisión que se le puede requerir a los propietarios será el equivalente al cuatro con quince centésimos por ciento (4,15%) del valor total del respectivo contrato. Se encuentra prohibido cobrar a los inquilinos que sean personas físicas comisiones inmobiliarias y gastos de gestoría de informes.

Ubicación

Belgrano, Capital Federal

Características

  • Cant. Ambientes: 2

  • Cant. Dormitorios: 1

  • Cant. Baños: 1

  • Disposición: Frente

  • Apto Profesional

  • Tipo de operación: Venta

  • Precio: USD 213.500

  • Sup. Cubierta: 60 m2

  • Sup. Total: 60 m2

  • Balcón
  • Baño
  • Cocina
  • Dormitorio
  • Living comedor
  • Toilette
  • Agua corriente
  • Cable
  • Electricidad
  • Agua corriente
  • Electricidad
  • Internet
  • Video cable
  • Antiguedad: -1

  • Agua corriente
  • Cocina
  • Electricidad
  • Internet
  • Video cable
  • Pileta

Código de aviso: PRO-1728094

Contactá al anunciante

Christian Foster Real Estate