(1) (1)
  • Belgrano

Operación

Casa

Precio

Buscar solo avisos en moneda:

Dorm | 5+ amb.

Dormitorios

  • 1
  • 2
  • 3
  • 4
  • 5+

Ambientes

  • Mono.
  • 2
  • 3
  • 4
  • 5+

Más filtros (1) Más filtros

Dormitorios

  • 1
  • 2
  • 3
  • 4
  • 5+

Ambientes

  • Mono.
  • 2
  • 3
  • 4
  • 5+

Características

Superficie total

Cocheras

Baños

Antiguedad

  • Indistinto
  • A estrenar
  • Hasta 5 años
  • Hasta 10 años
  • Hasta 20 años
  • Hasta 30 años
  • Más de 30 años

Nombre de calle y altura

Expensas

$

Tipo de urbanización

Plantas

Servicios

Tipo de casa

Tipos de ambientes

Tipo de anunciante

134 Casas en Belgrano de 5 o más ambientes

1/50
Visto

1.222

USD 1.390.000

Juramento 3800

Casa en Venta en Belgrano R, Belgrano

Belga Inmobiliaria SA
  • 293 m² cubie.
  • 3 dorm.
  • 55 años

CASA - VENTA - 7 AMBIENTES - JARDÍN - COCHERA - BELGRANO R

Casa - venta - 7 ambientes - jardín - cochera - belgrano r planta baja: ingreso por hall - living en l con vista al frente y comedor semi integrado con salida a patio interno - hall de distribución de triple circulación y salida a jardín - baño completo con bañera - cocina con comedor diario y family, con acceso a patio interno, jardín y a dependencia de primer piso - jardín con pileta, cuarto de herramientas y baño exterior con ducha - parrilla techada - cocheras cubierta y descubierta - galería primer piso: ingreso por escalera de hall: suite con vista a jardín - baño completo en suite - dormitorio con escritorio conectados por puerta corrediza con vista al jardín y placard - toilette con ducha ingresando por escalera de zona family: dependencia de servicio con armario/ posible escritorio - lavadero - terraza detalles: - calefacciones: estufa a gas tiro balanceado, estufa a gas sin tiraje y chimenea a leña - calefacción por aire central surrey a habilitar - 3 aire acondicionado split - agua caliente por termotanque - cocina con conexión a lavavajilla - alarma interna y externa - techos de losa transitable - persiana barrio enrollable de madera - pisos de madera pinotea tarugado - sistema de riego por aspersión manual superficie segun mapa de la ciudad: - cubierto: 293.00m2 - frente: 17,15m2 - fondo:40,65m2 - total: 697m2 gastos: - aysa: $92.270 (junio 2025) - abl: $301.000 (mayo 2025) ubicación: juramento al 3835 (entre estomba y dr. Rómulo s. Naón). Hermosa zona residencial ubicada en el barrio de belgrano, con cercanía a av. Melian y av. Olazábal; hospital gral. De agudos dr. Ignacio pirovano. A 5 cuadras de estación coghlan y a 7 de estación belgrano r. Visitas sólo acompañados por personal de la firma belga inmobiliaria s.A. Mat. 5111 - cucicba - martín gonzalo gallegos mat. 8347 - cucicba - lucas jooris mat. 6528 - cmcpsi - martín gonzalo gallegos toda la información y medidas provistas son aproximadas, deberán ratificarse con la documentación pertinente y no compromete contractualmente a nuestra empresa. Los gastos (expensas, abl, etc) expresados, refieren a la última información recabada y deberán confirmarse al día de la fecha. Las fotografías son no vinculantes ni contractuales.

Contactar
1/47
Visto

1.200

USD 690.000

Aguilar 2000

Casa en Venta en Belgrano, Capital Federal

Mel Propiedades
  • 233 m² cubie.
  • 4 dorm.
  • 40 años

Casa con Jardín, Terraza y Garage - Belgrano

[Mel-13251] original casa de estilo en zona de embajadas. La presente casa se ubica con retiro de la línea municipal, lo que habilita una hermosa recepción que se concreta a través un jardín que flanquea el ingreso a la propiedad. Es destacable el hermoso ambiente que posee el inmueble en su contrafrente, con árboles altos y muy silencioso. La cuadra es de las mejores de la zona. La propiedad se distribuye en dos plantas con espacios ventilados y cómodos. En planta baja todos los pisos son de madera, los cuales están en muy estado. Living comedor, con estar. Toilette de recepción. Entrepiso con ventilación cruzada. Cocina independiente con comedor diario y salida al patio del contrafrente. Además, dependencia de servicio con su respectivo baño. En planta alta, también con pisos de madera, se llega a un hall distribuidor que conecta con una hermosa terraza en "l" y hermosas vistas. Se logran 3 dormitorios con 2 baños, y también una escalera a un 4to dormitorio en suite tipo playroom. Cabe destacar que todas las aberturas son de madera. Hay garage con lavadero en el subsuelo. Propiedad única. Aph (afectación a patrimonio histórico) servicios: cloacas, gas otros servicios: balcón terraza mel, 50 años concretando sueños nota importante/relevante: las descripciones, fotos, medidas del inmueble, precios, valores de expensas, impuestos y servicios son aproximados y meramente orientativos, y no obligan contractualmente a mel propiedades srl ni resultan vinculantes. Matriculados: julia mel matricula nº 52 maría eva parada matricula nº 251 raúl mel matricula nº 883

Contactar
1/35
Visto

1.100

USD 1.380.000

La Pampa 3600

Casa en Venta en Belgrano R, Belgrano

REMAX Premium II
  • 511 m² cubie.
  • 5 dorm.
  • 50 años

Casa Venta 10 amb Jardín Pileta 8,66x51 Belgrano R

Corredor responsable: ariel champanier cucicba 4330 / andrea berre cmcpsi 6763 - contacto: luca rosso casa en venta en pleno belgrano r, sobre la calle la pampa al 3600. Construida sobre un lote de 8.66 x 51 metros de fondo, cuenta con mas de 500 metros cubiertos distribuidos en pb, 1° piso y 2° piso. Paso a detallar planta por planta: pb: -jardín delantero -cochera pasante con capacidad para 4 o 5 autos -hall de ingreso -living comedor -toilette recibidor. -Comedor diario -gran cocina comedor refaccionada hace poco tiempo con salida al jardín. -Jardín con pileta y parrilla, con un verde hermoso y arboleda. Importante esto: tiene el espacio para colocar ascensor y que llegue a todas las plantas, actualmente está el espacio listo para colocarlo. Super importante: la propiedad tiene hecho todos los caños de agua y cables de luz a nuevo. Pasamos al 1° piso: - 2 dormitorios - baño completo con hidro - dependencia. En el 1° piso tenemos una parte que está en obra a terminar y cuenta con una dependencia de servicio, baño completo, dormitorio principal gigante, con vestidor y otro baño. Esto tiene salida al balcón con vista al jardín trasero. (Para poder entender mejor la distribución, la publicación cuenta con un plano de cada planta) consultar cualquier duda igualmente. Pasamos al 2°piso: - 1 dormitorio en suite - balcón al frente - cocina -baño completo con hidro -gran sala de estar/living de mas de 50 metros cuadrados con balcón cualquier duda o consulta, estamos a disposición para ayudarlo. Posibilidad de tomar propiedad en parte de pago, a consideración y aprobación del propietario. Rau s.R.L. No ejerce el corretaje inmobiliario. El presente sitio web es una plataforma en donde cada oficina inmobiliaria independiente que contrata los servicios re/max puede publicar las propiedades a su cargo. Cada oficina es de propiedad y gestión independiente, por lo que rau s.R.L. No interviene en los datos de la publicación, en la operación inmobiliaria, ni en la confección y/o firma del boleto de compraventa y/o escritura y/o contrato de alquiler. En cumplimiento de las leyes vigentes que regulan el corretaje inmobiliario, ley nacional 25.028, ley 22.802 de lealtad comercial, ley 24.240 de defensa al consumidor, las normas del código civil y comercial de la nación y constitucionales, los agentes/gestores no ejercen el corretaje inmobiliario. Todas las operaciones inmobiliarias son objeto de intermediación y conclusión por parte del corredor público inmobiliario colegiado a cargo de la publicación, cuyos datos se exhiben en la presente. La presente publicación describe las características esenciales del inmueble, debiéndose consultar al corredor público inmobiliario responsable de la operación por la eventual actualización de las medidas, descripciones arquitectónicas y funcionales, valores de expensas, servicios, impuestos, precios y demás información, cuyos valores son aproximados. El inmueble no es accesible para personas con discapacidades físicas. Comprá la casa que querés! No la que podés. Accedé a un préstamo por hasta el 30% del valor de esta propiedad. Simulá tu cuota en lendar

Contactar
1/35
Visto

1.100

USD 1.090.000

Teodoro Garcia 2000

Casa en Venta en Belgrano, Capital Federal

Mel Propiedades
  • 362 m² cubie.
  • 6 dorm.
  • 30 años

Exclusiva Casa 6 ambientes, en venta | Belgrano

[Mel-13056] exclusiva residencia en venta en el corazón de belgrano, en una elegante zona de embajadas. Esta imponente propiedad, desarrollada en tres plantas, combina diseño arquitectónico de alto nivel, confort funcional y seguridad integral. Cuenta con cinco dormitorios, una dependencia que puede funcionar como un sexto dormitorio, y seis baños completos, ofreciendo una solución ideal para quienes buscan espacio y calidad en una ubicación privilegiada. En planta baja, se destacan el living con chimenea; ideal para momentos de descanso y reuniones. El comedor diario es espacioso, perfecto para cenas familiares, y cuenta con una cocina funcional con comedor integrado con acceso directo al patio. Por otro lado dispone además de un toilette de recepción, un sótano con respiradero para uso flexible; proporcionando un espacio extra para almacenamiento o una posible bodega, y cochera cubierta con ingreso independiente para un vehículo grande. El entrepiso incluye un dormitorio cómodo, perfecto como espacio privado adicional o para huéspedes. En el primer piso se encuentra la suite principal con vestidor y baño privado, una segunda suite también con baño, y dos dormitorios secundarios con acceso a un balcón compartido y baño completo compartido. El segundo piso ofrece una suite con salida a un amplio balcón terraza y un área flexible que puede destinarse a gimnasio, escritorio o segunda dependencia. La propiedad posee patio propio con capacidad para estacionar hasta dos vehículos grandes, un diferencial notable en la ciudad. Además, cuenta con seguridad perimetral y monitoreo, brindando tranquilidad y privacidad a sus habitantes. Esta casa es una verdadera joya en belgrano, ideal para embajadas o familias que buscan una combinación de espacio, elegancia, y seguridad en una de las mejores ubicaciones de la ciudad. Servicios: cloacas, gas otros servicios: parque, reciclado, vivienda multifamiliar, balcón terraza, alarma, jardín trasero, jardín delantero mel, 50 años concretando sueños nota importante/relevante: las descripciones, fotos, medidas del inmueble, precios, valores de expensas, impuestos y servicios son aproximados y meramente orientativos, y no obligan contractualmente a mel propiedades srl ni resultan vinculantes. Matriculados: julia mel matricula nº 52 maría eva parada matricula nº 251 raúl mel matricula nº 883

Contactar
1/30
Visto

1.051

USD 720.000

TRONADOR 2200

Casa en Venta en Belgrano R, Belgrano

LAO LUCHETTI Negocios Inmobiliarios
  • 220 m² cubie.
  • 4 dorm.
  • 60 años

VENTA! Lindisima Casa RECICLADA con Jardin y Pileta! BELGRANO R

Venta! Casa de estilo colonial reciclada · jardín, galería y pileta · belgrano r casa de estilo colonial reciclada, integrando detalles originales de la época con intervenciones modernas y funcionales. Ubicada en excelente zona de belgrano r, entorno residencial muy solicitado.. Desarrollada en 2 plantas, distribuida en 5 ambientes + galería + jardín con parrilla y pileta. Estado general excelente, lista para ingresar! Todos los ambientes son externos, lo que garantiza luminosidad permanente. Distribuciónplanta baja hall de recepción living al frente ycomedor con salida al jardín! Amplia cocina equipada con muebles completos (alacena y bajo mesada) y barra tipo desayunador. Gran comedor diario independiente con salida al jardín. 1 toilette dependencia de servicio exterior con baño (instalación preparada; hoy anulado). Lavadero independiente (externo) galería, jardín, parrilla y pileta. Cochera descubierta baulera planta alta suite principal con vestidor y otros 3 dormitorios amplios, muy luminosos y con excelentes placares. 1 baño completo adicional pequeña terraza y posibilidad de generar un ambiente extra en la azotea detalles y equipamiento:fachada revestida en tarquini -calefacción mediante equipos split f/c -agua caliente por calefón / termotanque -mesada de cocina silestone -aberturas de madera y alumino con dvh -pisos de viraró, porcelanato símil madera y granito en cocina -techo de tejas. Observación comercial lao luchetti: la propiedad combina el encanto del estilo colonial con las comodidades actuales, ofreciendo una planta funcional y ambientes amplios en un entorno residencial muy valorado.El jardín con pileta, la galería y la luminosidad general de la casa constituyen atributos altamente demandados en la zona. Consultanos para más información o coordinar una visita. Lao luchetti - negocios inmobiliarios. Nota importante/relevante: toda la información y las medidas proveídas son sólo estimativas y deberán corroborarse con la documentación oportuna y no compromete contractualmente a nuestra compañia. Los gastos indicados (expensas, abl) se refieren a la última información obtenida y deberán ratificarse. Las imágenes publicadas son meramente ilustrativas, no vinculantes y no contractuales.

Contactar
1/46
Visto

1.004

USD 1.500.000

Delgado al 1400

Casa en Venta en Belgrano R, Belgrano

Belga Inmobiliaria SA
  • 694 m² cubie.
  • 5 dorm.
  • 25 años

CASA - VENTA - 8 AMB - SUITE - 4 COCHERAS - JARDIN - PISCINA - BELGRANO R

Hermosa casa - venta - 8 amb - master suite - 4 cocheras - jardin - piscina - parrilla - belgrano r -obra diseñada por arq. Mario roberto álvarez planta baja hall de recepción - sala de estar con vista al frente (posible 6to dormitorio) - escritorio (posible 7mo dormitorio) - toilette de recepción - baño completo - amplio living con salida al jardín - comedor diario con cocina integrada - cocina con salida a patio interno que conecta diversos ambientes de la planta baja - galería que comunica con el jardín - jardín de importantes dimensiones, con piscina, parrilla y cuarto de herramientas con baño completo primer piso master suite con vestidor, baño con sauna, ducha escocesa e hidromasaje con ventilación natural - salida a balcón aterrazado con vista al jardín - suite con vista al frente y balcón - distribución con espacio de guardado - vestidor - dormitorio con doble circulación (posible family room) - baño completo con ante baño - 2 dormitorios con placard al frente segundo piso playroom - toilette - área de servicio compuesta por lavadero, terraza y dependencia subsuelo cocheras - bodega detalles - antiguedad: 25 años - calefacción central - aire acondicionado frio/calor - caldera - anafe a gas - 2 hornos electricos - instalación para lavavajillas - techos de teja y losa - parrilla - horno de ladrillos - piscina - cochera cubierta para 4 autos - portón automático - alarma y cámaras de seguridad medidas segun mapa de la ciudad superficie total : 627.00m2 superficie cubierta : 694.00m2 frente : 9.19m fondo : 68.23m gastos - abl: $444.420 - aysa: $118.500 ubicación delgado al 1400 (entre virrey avilés y zarraga). En el barrio de belgrano r, excelente ubicación cercana a importantes colegios y clubes deportivos. A 1 cuadras de av. Forest, av. Elcano y de av. De los incas. Visitar sólo acompañado por personal de la firma. Belga inmobiliaria s.A. Mat. 5111 - cucicba - martín gonzalo gallegos mat. 8347 - cucicba - lucas jooris mat. 6528 - cmcpsi - martín gonzalo gallegos toda la información y medidas provistas son aproximadas, deberán ratificarse con la documentación pertinente y no compromete contractualmente a nuestra empresa. Los gastos (expensas, abl, etc) expresados, refieren a la última información recabada y deberán confirmarse al día de la fecha. Las fotografías son no vinculantes ni contractuales.

Contactar
1/17
Visto

855

USD 3.200.000

Mariscal Antonio Sucre al 3200

Casa en Venta en Belgrano, Capital Federal

LAURA FARIAS PROPIEDADES
  • 1.336 m² cubie.
  • 26 dorm.
  • 100 años

CASONA en Belgrano R - Oportunidad unica

Imponente casona en el corazón de belgrano ideal institucional descubrí esta propiedad única en una de las zonas más exclusivas de la ciudad, a metros de la estación belgrano r. La propiedad cuenta con: - 26 dormitorios - 18 baños - cochera para 2 autos - subsuelo, despensa y lavadero - salas de usos múltiples - amplio jardín arbolado - detalles de categoría y mármol en sus terminaciones una casona de gran porte, ideal para embajadas, consulados, instituciones educativas o geriátricos. Su diseño señorial, los espacios amplios y su ubicación estratégica la convierten en una oportunidad única. -Ubicación privilegiada: en el corazón del barrio de belgrano, rodeada de tranquilidad, verde y excelente conectividad. Consultanos para más información o agendar una visita. Accesible (ley 5115) cucicba 8113 / csm 2471 "para los casos de alquiler de vivienda, el monto máximo de comisión que se le puede requerir a los propietarios será el equivalente al cuatro con quince centésimos por ciento (4,15%) del valor total del respectivo contrato. Se encuentra prohibido cobrar a los inquilinos que sean personas físicas comisiones inmobiliarias y gastos de gestoría de informes". Ley 5859 art. 5 "las descripciones arquitectónicas y funcionales, valores de expensas, impuestos y servicios, fotos y medidas de los inmueble son aproximados. Los datos fueron proporcionados por el propietario y pueden no estar actualizados a la hora de la visualización de este aviso por lo cual pueden arrojar inexactitudes y discordancias con las que surgen de los las facturas, títulos y planos legales del inmueble. El interesado deberá realizar las verificaciones respectivas previamente a la realización de cualquier operación, requiriendo por sí o sus profesionales las copias necesarias de la documentación que corresponda. "

Contactar
1/50
Visto

601

USD 1.300.000

BLANCO ENCALADA 3900

Casa en Venta en Belgrano R, Belgrano

ARIS PROPIEDADES
  • 405 m² cubie.
  • 3 dorm.
  • 4 años

Espectacular casa de diseño con gran fondo

Espectacular casa de diseño con gran fondo ecológico venta de casa 5 ambientes en belgrano r, capital federal hermosa casa de diseño, sobre un lote único de 8,73 x 54 la casa consta de 3 plantas, con entrada peatonal, garage para 2 autos y toilette. La amplia y moderna cocina-comedor diario, iluminada por el jardín lateral, se conecta con un living con vistas al parque y salida a la galería techada. El frondoso jardín cuenta con piscina natural que se purifica con plantas y no utiliza cloro. Al fondo del terreno está el amplio quincho, con parrilla y baño. Sobre el quincho, se ubica una de las 3 terrazas verdes de la casa. También desde el jardín se accede a la cava, de dimensiones generosas (apta para otros usos también) y lugar de guardado para más de 500 botellas. En el primer piso se encuentra un gran living íntimo, con salida a la terraza verde de ese nivel, el dormitorio principal, con baño en suite y vestidor, y otro baño completo. El segundo piso cuenta con dos dormitorios con placares, un baño completo y salida a la terraza verde de ese nivel. La casa está equipada con aire acondicionado central (frío-calor), losa radiante por caldera dual (a gas) y agua caliente por termotanque solar. El riego, automatizado, aprovecha el agua de lluvia, que se almacena en un tanque dispuesto para tal fin. Tanto el parque como la piscina biológica fueron diseñados por un reconocido paisajista. La ubicación es estratégica, a pasos de las av. Naon, monroe y olazabal; con cercanía al doho y los mejores colegios de belgrano r. Consultanos para coordinar una visita y recibir más detalles.Martillero daniel risman cucicba 5391 aviso legal: la ficha, la gráfica de planos y las fotos del presente inmueble son facilitadas por aris propiedades al solo efecto de otorgar una rápida visualización del inmueble. Todas las medidas son meramente descriptivas y esquemáticas. Las mismas han sido computadas con medidor ultrasónico de distancias, por lo cual se deja expresamente aclarado que pueden existir discordancias con las medidas exactas que surgen de la realidad y/o de la escritura y/o de los planos del inmueble.

Contactar
1/27
Visto

508

USD 760.000

ENRIQUE MARTINEZ 2100

Casa en Venta en Belgrano R, Belgrano

LAO LUCHETTI Negocios Inmobiliarios
  • 281 m² cubie.
  • 5 dorm.
  • 35 años

VENTA! Chalet con Jardin! Excelente ubicación de BELGRANO R!

Venta de chalet clásico de 6 ambientes + escritorio, playroom y jardín con parrilla! Excelente ubicación en el corazón de belgrano r encantador chalet de sólida construcción con frente de ladrillo a la vista, de aproximadamente 35 años de antigüedad, ubicado en una de las zonas residenciales más codiciadas de belgrano r. Desarrollada en 3 plantas, con una distribución funcional, buena luminosidad natural en todos sus ambientes y espacios generosos ideales para la vida familiar! Distribución y ambientes - hall de recepción. - Living al frente. - Comedor principal con salida al jardín. - Amplia cocina comedor diario, equipada con mobiliario completo (alacena y bajo mesada). - 1 suite principal con vestidor y estar privado y otros3 dormitorios adicionales de buenas dimensiones (algunos con placard). - 2 baños completos ( 1 en suite), 1 toilette de recepción (pb) y 1 baño de servicio. - Playroom y 2 escritorios, con posibilidad de unificarlos y generar un espacio amplio multifunción + patio de sol y patio de sombra. Ambos con reja de seguridad. - Dependencia de servicio con baño. - Galeria. - Jardín con parrilla, ideal para reuniones al aire libre. - Altillo tipo baulera. - 1 cochera cubierta + espacio para 1 auto descubierto. - Instalacion para aa central en planta de dormitorios, - sistema de seguridad - deposito de agua elevado y cisterna de acopio en pb opcional de reserva detalles y equipamiento - vigilancia en la esquina (garita pfa) -techo de tejas -pisos de madera de anchico en los ambientes principales -moquette sobre carpeta en dormitorios -carpinterías interiores de cedro y viraro -calefacción por radiadores mediante caldera -agua caliente mediante termotanque -hogar a leña en recepción y dormitorio principal -espacio previsto para lavavajillas -aire acondicionado split frío/calor. Conclusión: una propiedad con carácter, potencial y excelente ubicación, perfecta para quienes buscan combinar calidez, comodidad y estilo clásico, con la posibilidad de actualizar y personalizar algunos ambientes! Nota importante/relevante: toda la información y las medidas proveídas son sólo estimativas y deberán corroborarse con la documentación oportuna y no compromete contractualmente a nuestra compañia. Los gastos indicados (expensas, abl) se refieren a la última información obtenida y deberán ratificarse. Las imágenes publicadas son meramente ilustrativas, no vinculantes y no contractuales.

Contactar
1/43
Visto

507

USD 520.000

Zarraga 3383

Casa en Venta en Belgrano R, Belgrano

J BELLATTI NEGOCIOS INMOBILIARIOS
  • 255 m² cubie.
  • 4 dorm.
  • 30 años

CASA EN VENTA EN BELGRANO "R" DE 5 AMB, COCHERA. 4 BAÑOS

Casa en venta en la calle zarraga 3383 - belgrano "r" 4 dorm c/dep, escr y playroom. Patio con parrilla. Garage. Desarrollada en 2 plantas. Son 300mts2 totales aproximadamente, 255 mts2 cubiertos, 33 mts2 de patio y 12 mts2 de terraza, distribuidos en: pb: hall de entrada. Toillette de recepción. Amplio living con hogar. Lindísimo comedor con amplio ventanal al patio. Escritorio en entrepiso y playroom con baño propio en otro nivel. Salida al patio desde el playroom y el comedor. Gran cocina separada con comedor diario, muebles completos (bajo mesada y alacena) y amplia mesada. Doble circulación. 1°p: 4 dormitorios. Principal en suite con hogar y gran vestidor y escritorio en entrepiso. 3 dormitorios más, 2 al frente y un 3ero al contrafrente con salida a amplia terraza con deck de madera, con vista abierta a pulmón de manzana. 2do baño completo con ventilación. Hermoso patio interno de 30mts2 con parrilla. Garaje para un auto. Dependencia de servicio con su baño. Lavadero. Agua caliente por termotanque. El 1° piso necesita refaccion x filtracion de agua. Consultas: karina / / jorge bellatti corredor inmobiliario mat: 4843. C.U.C.I.C.B.A nota: el inmueble no cuenta con accesibilidad para personas con movilidad reducida . Las imágenes en este anuncio publicadas son meramente ilustrativas y no poseen carácter contractual. Las medidas y sus menciones expresadas en el presente aviso son aproximadas y a título informativo. Las medidas originales surgirán de los respectivos planos y/o escritura del inmueble

Contactar
1/35
Visto

501

USD 849.000

Federico Lacroze 2100

Casa en Venta en Belgrano Barrancas, Belgrano

Mel Propiedades
  • 426 m² cubie.
  • 10 dorm.
  • 49 años

Casa Tudor con Jardín y Sótano en Lote - Belgrano

Importante casa inglesa de estilo tudor en estratégica ubicación de belgrano. En el límite con las cañitas y palermo. Casa con mas de 10 ambientes, 5 baños, 2 cocheras, parque, vegetación, dependencias de servicio y casa de caseros en dos plantas con sotano. Amplia diversidad de usos: ideal para vivienda familiar, diplomáticos / embajadas, gastronomía, instituciones educativas, centro de salud. La casa se desarrolla en un amplio terreno de 8,66m x 41,40m y conserva detalles arquitectónicos originales, como techos trabajados, molduras y pisos originales. La propiedad combina el encanto del estilo clásico con la funcionalidad moderna. En la planta baja, un hall recibidor te da la bienvenida, y desde allí accedes a un espacioso living con chimenea a leña. Luego continuamos al comedor que se caracteriza por su amplitud. También en esta planta, encontrarás un estudio con vista al frente, perfecto para oficina o espacio de lectura, y un baño toilette. Tanto los salones como los vestíbulos disponen de muy buena altura de techos, anchas paredes y excelentes detalles de categoría con revestimientos y ornamentos tales como pisos dameros de mármol, pisos de roble eslavonia, escaleras y zócalos de mármol, amplias puertas y ventanas en arco, de cedro, con vitreaux de época, paredes con arcadas, boiserie y refinados detalles ornamentales en yeso, techos con molduras pintadas al oro y luminarias de estilo. La cocina, ubicada hacia el fondo de la propiedad, es amplia y cuenta con acceso al sector de servicio en 1er piso el parque al fondo ofrece un agradable espacio al aire libre con diversa vegetación, ideal para disfrutar del entorno natural. Además, la propiedad cuenta con una casa de caseros en 2 plantas con sótano de gran tamaño que puede adaptarse para diferentes usos, como auditorio, gimnasio o salón de eventos. Este espacio incluye un sótano de mismas dimensiones. En el sector del parque contamos con un lavadero, un baño de servicio y la sala de calderas. La casa también cuenta con dos cocheras, una cubierta (actualmente local comercial con su baño) y otra descubierta en el porche de entrada, lo que agrega comodidad y seguridad. En la planta superior, se encuentran 4 dormitorios de generosas dimensiones. 2 de ellos orientados al frente con salida a terraza al frente y un quinto dormitorio que funciona como un estudio, un espacio versátil que puede utilizarse como oficina o sala de lectura, ideal para quienes buscan un rincón tranquilo dentro del hogar. En la segunda planta también cuenta con dos baños completos, de amplias dimensiones con artefactos originales, de estilo clásico. En esta misma planta se encuentra el sector de servicios, con su respectivo baño y lavadero. La ubicación es 100% estratégica, cercana a los principales accesos al ubicarse sobre una importante avenida federico lacroze y por su cercanía a otras tales como luis maria campos, av libertador, cabildo y olleros. Así mismo su accesibilidad peatonal, gracias a ubicarse a tres cuadras de la estación de subterraneos olleros de la línea d, a su proximidad a las estaciones de trenes colegiales y lisandro de la torre del ramal mitre y por la infinidad de líneas de colectivos que circulan por la zona. Turisticamente también tiene acceso estratégico por su cercanía al aeropuerto jorge newbery, y a 500 m del club de golf, el hipódromo, el parque tres de febrero, el mirador del lago de las regatas y el club alemán de equitación. Un kilómetro más retirado se encuentra el museo sívori y el planetario galileo galilei. La calificación de este factor es muy bueno. Mel, 50 años concretando sueños nota importante/relevante: las descripciones, fotos, medidas del inmueble, precios, valores de expensas, impuestos y servicios son aproximados y meramente orientativos, y no obligan contractualmente a mel propiedades srl ni resultan vinculantes. Matriculados: julia mel matricula nº 52 maría eva parada matricula nº 251 raúl mel matricula nº 883

Contactar
1/30
Visto

501

USD 800.000

Zapiola al 2100

Casa en Venta en Belgrano R, Belgrano

Belga Inmobiliaria SA
  • 297 m² cubie.
  • 4 dorm.
  • 100 años

EXCELENTE CASA DE ESTILO - VENTA - 6 AMB - SUITE - PATIO - PARRILLA - BELGRANO R

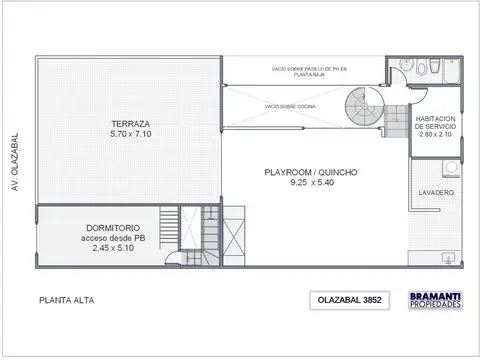
Excelente casa de estilo neoclásico - venta - 6 amb - suite - patio - parrilla - belgrano r hermosa casa de estilo neoclásico con una inmejorable ubicación en belgrano r planta baja: ingreso por jardín delantero con acceso a baulera en el lateral - hall con hogar - amplio living comedor con salida al patio - escritorio - cocina con comedor diario, 2 bachas y salida al patio - patio con parrilla - toilette de recepción - lavadero independiente con acceso a la dependencia primer piso: master suite con vestidor y vista al patio - suite con vista al patio - 2 dormitorios al frente con placard, 1 de ellos con balcón - baño completo - dependencia de servicio con baño, a la que se accede desde el lavadero detalles: - antiguedad: 100 años - estufas a gas de tiro balanceado - hogar en el hall - aire acondicionado (frío/calor en la cocina, frío en los ambientes) - termotanque a gas - horno y anafe a gas - pisos de pinotea superficies segun mapa de la ciudad: - terreno: 219,00m2 - cubierta: 297,00m2 - frente: 8,66m - fondo: 25,29m gastos: - abl: $176.482 (noviembre 2025) - edenor: $138.380 (julio 2025) ubicacion: zapiola al 2100 (entre juramento y mendoza). En el barrio de belgrano r, excelente zona residencial con importantes colegios y clubes deportivos, a 1 cuadra de av. Olazábal y a 2 cuadras de av. Crámer. Cercanía con la estación belgrano r del tren mitre. Visitar sólo acompañado por personal de la firma. Belga inmobiliaria s.A. Mat. 5111 - cucicba - martín gonzalo gallegos mat. 8347 - cucicba - lucas jooris mat. 6528 - cmcpsi - martín gonzalo gallegos toda la información y medidas provistas son aproximadas, deberán ratificarse con la documentación pertinente y no compromete contractualmente a nuestra empresa. Los gastos (expensas, abl, etc) expresados, refieren a la última información recabada y deberán confirmarse al día de la fecha. Las fotografías son no vinculantes ni contractuales.

Contactar
1/30
Visto

362

USD 1.250.000

DE LOS INCAS, AVDA. 3800

Casa en Venta en Belgrano R, Belgrano

LAO LUCHETTI Negocios Inmobiliarios
  • 500 m² cubie.
  • 6 dorm.
  • 30 años

VENTA! Casa 700m2 y gran Jardin con Pileta! BELGRANO R

Venta de casa de 7 ambientes con jardín y piscina! Ubicada en una zona residencial privilegiada del corredor belgrano r - villa ortúzar imponente chalet de sólida construcción. La propiedad fue reformada integralmente hace 26 años y se encuentra en excelente estado general. Se desarrolla en cuatro plantas, con orientación frente y contrafrente, lo que le otorga muy buena luminosidad y ventilación cruzada en todos sus ambientes. Su distribución funcional y su propuesta de confort la convierten en una opción ideal para quienes buscan categoría, amplitud y espacios de recreación al aire libre. Distribución por niveles: planta baja: acceso peatonal y vehicular. Amplio living-comedor con salida directa al jardín. Cocina-comedor diario independiente con mobiliario completo (alacena y bajo mesada). Toilette de recepción. Primera planta: conjunto de dormitorios y suites secundarios, todos de muy buenas dimensiones, con placares completos y excelente luminosidad. Segunda planta: exclusiva master suite con: amplio vestidor. 1 baño con jacuzzi, sauna seco y excelente luz natural. Patio privado de expansión. Tercera planta: dos grandes playrooms multifunción, ideales para espacio de juegos, oficina, home theater o estudio. Subsuelo: espacio social tipo pub inglés con barra y salida directa al jardín, ideal para reuniones y celebraciones privadas. Exterior: jardín de generosas dimensiones con excelente orientación. Piscina con solárium. Áreas de expansión, ideal para disfrutar del aire libre en entorno urbano. Características generales:pisos de granito pulido en áreas principales -parquet de madera maciza en dormitorios -cocina y baños en muy buen estado. Nota importante/relevante: toda la información y las medidas proveídas son sólo estimativas y deberán corroborarse con la documentación oportuna y no compromete contractualmente a nuestra compañia. Los gastos indicados (abl) se refieren a la última información obtenida y deberán ratificarse. Las imágenes publicadas son meramente ilustrativas, no vinculantes y no contractuales.

Contactar
1/24
Visto

361

USD 750.000

LA PAMPA 3100

Casa en Venta en Belgrano R, Belgrano

LAO LUCHETTI Negocios Inmobiliarios
  • 300 m² cubie.
  • 6 dorm.
  • 80 años

VENTA! PH tipo casa con Patio y Pileta! BELGRANO R

Venta de casa (ph) 5 ambientes con gran patio y pileta en belgrano r ph estilo chalet alpino suizo - belgrano r ubicación ideal! Situada estratégicamente en una de las zonas más exclusivas y residenciales de belgrano r. El entorno ofrece una excelente calidad de vida, con acceso inmediato a: importantes colegios de la zona. 4 cuadras del belgrano athletic club. 2 cuadras del polo comercial y gastronómico de plaza castelli. 1 cuadra de la estación de tren belgrano r (ramal mitre - retiro). Descripción general se trata de un ph tipo casa con entrada independiente al frente, desarrollado en 2 plantas + patio con pileta! La unidad mantiene un buen estado de conservación, manteniendo detalles originales de la época como carpinterías en madera y terminaciones de fachada que realzan su carácter arquitectónico. Planta baja living comedor principal. Cocina con comedor diario family con hogar a leña. Escritorio playroom toilette de recepción patio de 160 m² con piscina planta alta 1 master suite y otros4 dormitorios de amplias dimensiones. 2 baños completos (1 master suite). Dependencia de servicio con baño otros espacios altillo funcional sótano observaciones comerciales: un ph único en su estilo, con el encanto de un chalet clásico alpino, espacios amplios y patio propio con piscina. Su ubicación privilegiada en belgrano r lo convierte en una opción ideal para familias que buscan vivir con confort, en un entorno residencial arbolado, con excelente conectividad y cercanía a colegios, clubes y servicios importante: es un lote compuesto por 2 propiedades (ph) cada una con su entrada independiente. La presente venta corresponde a la unidad ubicada al frente sobre la calle la pampa. Nota importante/relevante: toda la información y las medidas proveídas son sólo estimativas y deberán corroborarse con la documentación oportuna y no compromete contractualmente a nuestra compañia. Los gastos indicados (expensas, abl) se refieren a la última información obtenida y deberán ratificarse. Las imágenes publicadas son meramente ilustrativas, no vinculantes y no contractuales.

Contactar
1/28
Visto

350

USD 750.000

La Pampa 2200

Casa en Venta en Belgrano, Capital Federal

GODOY CUALLE PROPIEDADES
  • 290 m² cubie.
  • 6 dorm.
  • 50 años

CASA DE 7 AMBIENTES CON LOCAL A LA CALLE

: Castillo en pleno corazón de belgrano en un lote de 101 m2 (7 x 14.50 aprox) tenemos una construcción de epoca de excelente calidad la casa cuenta con un patio de aire luz que atraviesa todas las plantas de 2.55 x 1.90 siendo el lugar diseñado originalmente para colocar un ascensor la casa ha tenido modificaciones a lo largo de su existencia, las cuales no impiden con pequeños gestos volverla a su estado original de una casa desde la planta baja hasta la tercer planta actualmente la planta baja cuenta con un acceso privado, a traves de un hall de entrada (2.36 x 1.56) que nos lleva a un estar ( 4.45 x 2.95) donde comienza la escalera de excelente calidad que nos lleva a las plantas superores. Completando la planta baja tenemos un local con acceso desde la calle de 80 m2 de excelente espacialidad y calidad, gracias a sus techos altos (4.00 m de altura) el primer piso tiene un ambiente integrado de 53 m2 compuestos por un espacio que da al frente y el resto del ambiente que tiene ventilación a un patio interno (lugar que es para que pase el futuro ascensor) y a un espacio de aire y luz al contrafrente, la altura de esta planta es de 4.5 m de altura en la parte del contrafrente y 3.85 metros de altura en la parte del frente, donde hay un balcon a la calle (2 x 0.8). Al final del ambiente tenemos accediendo por una escalera un hall de distribución para acceder a una habitacion (3.4 x 3) con un baño en suitte (2.25 x 1.45) en el segundo piso accedemos a un estar (4.03 x 2.2), comunicado con las dos habitaciones que dan al frente (3.64 x 3.4) y (3.6 x 3.30) que tienen salida a un balcon (7x1) esta planta cuenta en el medio con una cocina (2.75 x 1.05) y dos baños compartimentados (2.05 x 1.15) y (2.05 x 1.3) al contrafrente tenemos dos habitaciones mas, una en suitte (3.36 x 3) mas el baño (1.66 x 1.57) y la otra habitación (3.64 x 3.40) y una salida a un patio (3.14 x 2.51) donde tenemos el acceso a través de una escalera a la terraza de toda la superficie = 83 m2 referencia a tener en cuenta : si un departamento de 4 ambientres en la zona esta por arriba de los u$s 800.000, el valor de esta casa de 290 m2 cubiertos mas 100 descubierto es una verdadera oportunidad

Contactar
1/26
Visto

201

USD 750.000

LA PAMPA 3600

Casa en Venta en Belgrano R, Belgrano

LAO LUCHETTI Negocios Inmobiliarios
  • 300 m² cubie.
  • 4 dorm.
  • 40 años

Muy linda Casa de Estilo! EXCELENTE UBICACION DE BELGRANO R!

Venta de casa 5 ambientes con jardín/patio en belgrano r ubicada en inmejorable zona de belgrano r, sobre la pampa entre washington y enrique martínez! Casa de estilo con frente de ladrillo visto. Muy buenas carpinterías, mantiene detalles de estilo! Reciclada en 1994 y una nueva parte edificada en 2005. Living y comedor independientes! Desarrollada en 3 plantas (planta baja - planta alta y subsuelo) sobre excelente pulmón verde! Planta baja: hall de recepción - toilette - living - amplia cocina comedor - diario con isla tipo desayunador y gran cantidad de muebles (alto y bajo mesada) - cochera cubierta. Planta alta: suite principal con vestidor - 3 dormitorios (1 chico) - 2 baños completos (1 suite). Uno de los dormitorios con terraza propia. Subsuelo: dependencia de servicio con baño - lavadero - ambiente con salida al patio. Detalles: portón automatizado - techo de teja negra - aire frio por ductos -termotanques sherman. Nota importante/relevante: toda la información y las medidas proveídas son sólo estimativas y deberán corroborarse con la documentación oportuna y no compromete contractualmente a nuestra compañía. Los gastos indicados (expensas, abl) se refieren a la última información obtenida y deberán ratificarse. Las imágenes publicadas son meramente ilustrativas, no vinculantes y no contractuales.

Contactar
1/14
Visto

200

Consultar precio

Blanco Encalada 1300

Casa en Venta en Belgrano Chico, Belgrano

SPL PROPIEDADES
  • 950 m² cubie.
  • 7 dorm.
  • 3 años

Casa - 7Amb JARDIN PISCINA COCHERA

Exclusiva residencia en el corazon de belgrano chico. Se escuchan ofertas razonables y posibilidad de tomar m2 construidos nuevos. Actualmente esta rentada consultar por esto renovate. Vive donde te mereces! Caracteristicas: casa dinamica, funcional, con aire y sinfonia de campo. Todas las aberturas tienen doble vidrio ermeticos, brindando un entorno paradisiaco entre vistas, a destacados verdes de paisajismo natural. Con majestuosa luz natural, un silencio sublime y el diseño inspirado, en convertir un espacio arquitectonico en un calido hogar. Son 950 m2 distribuidos en tres plantas. Piscina 20x3, jardin parquizado, quincho, baño y baulera. Moderno equipamiento de cocina con artefactos de última generación. Isla para, hasta 10 comensales. Sum/ sala de juegos en segunda planta, con vista panorámica al jardín, más parrilla con extraordinario sistema de tiraje, + horno pizzero. Toilette, pb. Importante terraza al frente con, plantaciones de jazmines. Todos los pisos son de porcelanato - techos de hormigón a la vista. Aa central. Lavadero aparte, con sobre mesada y muebles bajo mesada, funcional y espacioso calefacción por losa radiante. 2 calderas. Ubicación a tan solo metros de av. Libertador, zona de polo gastronómico, cultural, educativo. Agenda tu visita martillero y corredor responsable: soledad ponce de león. Mat 7242 cucicba información adicional:tipo de techo: losa. Tipo de piso: porcelanato. Tipo de vista: vista ciudad. Tipo de pendiente: plana. . Observaciones: estas superficies, medidas y expensas son aproximadas y no resultan vinculantes las reales son las que surgen del título de propiedad y recibo de expensas que serán suministrados por el propietario. El valor indicado de expensas esta sujeto a variación. El precio del inmueble puede ser modificado sin previo aviso. Fotos de carácter no contractual. Los montos especificados de expensas responden a una declaración del propietario el día que fue visitada la propiedad por nuestro personal, habitualmente el mismo no esta actualizado. Verificar el monto actualizado previo al alquiler/compra de la propiedad. La presente oferta de venta está condicionada a la obtención del coti por parte del propietario (resol. Afip 2371. Servicios: cloacas, gas otros servicios: parque, balcón terraza, alarma, jardín trasero

Contactar