-
Casa
Casa
-
280 m² Cubierta
280 m² cubie.
-
3 dormitorios
3 dorm.
-
A Estrenar
A Estrenar
-
2 baños
2 baños
-
7 ambientes
7 ambientes
-
278 m² Terreno
278 m² terren.
VENTA | PERMUTA - Casa con piscina, quincho, parrilla y tres patios - Pichincha, Rosario.
Descripción:
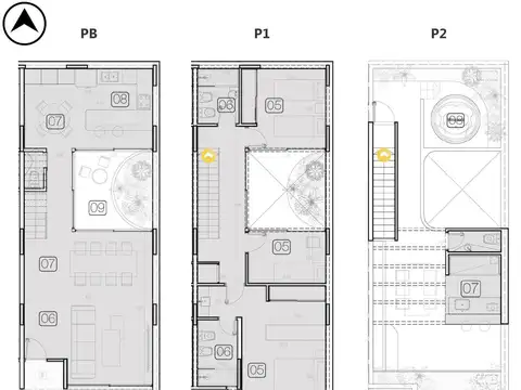
- Recibidor
- Amplio despacho con biblioteca
- 3 Patios
- Cocina con desayunador
- Living-comedor muy amplio y luminoso
- Quincho y estar con acceso al patio con piscina y solarium, y al patio con parrilla
- Dos baños completos
- Habitación en la planta baja
- Dos habitaciones amplias en la segunda planta con vistas a patios internos
- Amplia terraza con impermeabilización, en perfectas condiciones
Ubicación: en uno de los barrios más emblemáticos y requeridos de Rosario, esta hermosa casa señorial ofrece una experiencia de vida única y exclusiva. Con 280 metros cuadrados aproximados de superficie, esta propiedad está en excelentes condiciones y lista para ser habitada, se emplaza sobre dos lotes, por lo que cuenta con ingreso por calle Tucuman y por calle Pueyrredon.
Características Técnicas:
- Superficie: 280 metros cuadrados (emplazada sobre dos lotes: uno por calle Tucuman y otro por calle Pueyrredon)
- Estado: Excelentes condiciones
- Listo para habitar: Sí
- Ambientes: Escritorio, living-comedor, cocina-comedor, quincho, estar, 3 habitaciones, 2 baños, 3 patios, solarium y piscina, parrilla, terraza, sótano.
Ideal para Familias: esta propiedad es perfecta para familias, dado que ofrece distintos ambientes para que todos encuentren comodidad e independencia.
Las medidas y superficies expuestas son estimativas y a corroborar con sus respectivos planos y títulos.
Ubicación
Pichincha, Rosario, Departamento de Rosario, Santa Fe
Características
-
Cant. Baños: 2
-
Cant. Ambientes: 7
-
Cant. Dormitorios: 3
-
Cant. Plantas: 2
Datos básicos
-
Tipo de operación: Venta
-
Precio: USD 480.000
Superficie
-
Sup. Cubierta: 280 m2
-
Sup. Terreno: 278 m2
-
Sup. Total: 280 m2
Ambientes de la casa
- Balcón
- Baño
- Comedor
- Comedor diario
- Dormitorio
- Estudio
- Living
- Living comedor
- Terraza
Instalaciones de la casa
- Agua cloaca
- Agua corriente
- Electricidad
- Gas natural
- Pileta
Servicios de la casa
- Agua corriente
- Electricidad
- Gas natural
- Teléfono
Código de aviso: PRO-1458120
Propiedades Similares
-
USD 368.220
Santa Fe y Pueyrredón
- 128 m² Cubierta
- 3 dormitorios
-
USD 368.467
Santa Fe y Pueyrredón
- 128 m² Cubierta
- 3 dormitorios
-
USD 395.000
JUJUY Y RODRIGUEZ
- 200 m² Cubierta
- 4 dormitorios
- 18 años
-
USD 390.000
ROSARIO - Santiago 440
- 170 m² Cubierta
- 4 dormitorios
- 40 años