-
Casa
Casa
Propiedad apto instituciones-Excelente Ubicación
Padran Propiedades Vende: Propiedad en P.H desarrollada en terreno de 8 x20, en dos plantas en moderno estilo minimalista, con 206.372 m2 cubiertos y 42,64 m2 descubiertos, recién pintada interior y exterior en impecable estado de conservación. Frente sobre importante avenida céntrica con alto flujo de circulación.
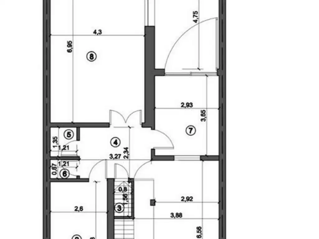
PLANTA BAJA: importante sala de acceso, recepción y espera.
Oficina de Secretaria. Privado : tipo Loft de 50 m2 aprox, con zona para evaluación y zona de trabajo. Toilette de uso privado. Kitchenette. Baulera. Garage privado con acceso directo a zona privada.
PLANTA ALTA: importante sala de recepción y espera.
Cuatro consultorios independientes con iluminación natural. Baño completo con doble acceso.
PLANTA BAJA: importante sala de acceso, recepción y espera.
Oficina de Secretaria. Privado : tipo Loft de 50 m2 aprox, con zona para evaluación y zona de trabajo. Toilette de uso privado. Kitchenette. Baulera. Garage privado con acceso directo a zona privada.
PLANTA ALTA: importante sala de recepción y espera.
Cuatro consultorios independientes con iluminación natural. Baño completo con doble acceso.
Datos básicos
-
Tipo de Unidad: Casa
-
Tipo de operación: Venta
Instalaciones de la casa
- Agua cloaca
- Electricidad
- Gas natural
Código de aviso: 5H9C_33